Bartley Ridge: 40 Units for Sale
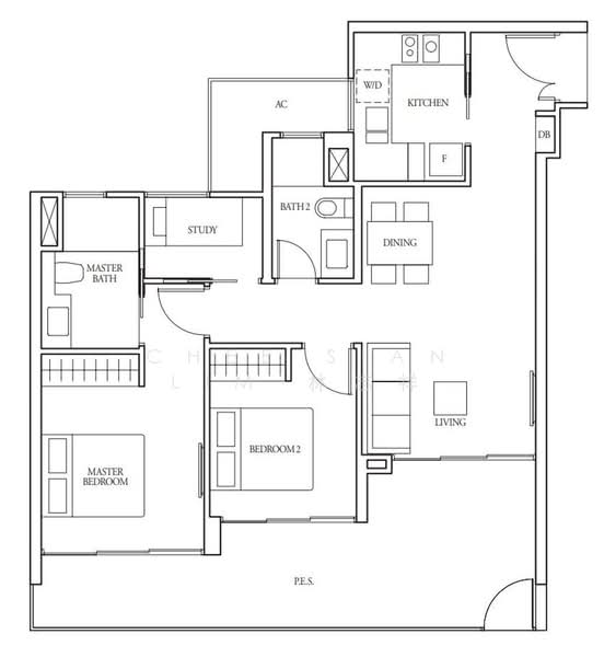
Bartley Ridge is a 99-year leasehold condominium located at Mount Vernon Road, Singapore 368055, in District 13. This district encompasses Macpherson, Potong Pasir, Bartley, and Mount Vernon. The location places the development within the city fringe, offering a balance between central access and residential calm. Completed in 2016, Bartley Ridge was developed by Mount V Development Pte Ltd. The condominium comprises 868 residential units, offering a wide range of layouts to suit different lifestyle needs. From compact one-bedroom homes to spacious four-bedroom units, the development caters to singles, couples, and families. One of Bartley Ridge's main strengths is its location in District 13. This area sits near the city centre but maintains a residential setting. Residents enjoy convenient access to key areas such as the Central Business District (CBD) and Orchard Road, while still returning home to a quieter environment. Another highlight is the orientation of the blocks. The layout has been planned to reduce exposure to heavy road noise and minimise direct western sun where possible. This supports a more comfortable indoor setting, especially during warmer afternoons. Residents have access to shopping, dining, and daily needs within a short distance. At the same time, nearby green spaces and landed housing estates enhance the overall living environment. The combination of location, transport access, thoughtful layout, and nearby amenities forms the core appeal of Bartley Ridge. Bartley Ridge enjoys direct access to public transport. It is located right next to Bartley MRT Station (CC12) on the Circle Line. This line connects to various parts of Singapore, including interchange stations that lead to other major train lines. Travelling to the Central Business District (CBD) or Orchard Road takes around 25 minutes by MRT, depending on the route. For drivers, the development is well-connected to major expressways. These include the Central Expressway (CTE), Kallang Paya Lebar Expressway (KPE), and Pan Island Expressway (PIE). The Bartley Tampines Viaduct also provides an additional route towards the eastern part of Singapore. These road links allow residents to travel across the island with relative ease. Bartley Ridge sits on a sizeable land plot along Mount Vernon Road in District 13. The development rises to approximately 18 storeys, depending on the block. The site layout has been arranged to optimise space, airflow, and natural light. Bartley Ridge Condominium 13 868 residential units Bartley Ridge has been planned to provide a complete range of facilities within the development. The aim is to create a living space where residents can relax, exercise, and gather with neighbours without leaving the compound. Facilities include: Basketball court Barbecue area Basement car park Clubhouse Drop off point Gymnasium room Lap pool Lift lobby Main entrance Multi-purpose hall Pavilion Putting green 24 hours security The wide range of facilities allows Bartley Ridge to function as a self-contained residential environment. Families living at Bartley Ridge have access to several choice schools in the surrounding area. These include: Bartley Secondary School Maris Stella High School MapleBear Rochdale The presence of these schools within a short distance provides convenience for families with children of different ages. Residents of Bartley Ridge can find a variety of dining options nearby. Daebak Korean Restaurant @ Tai Seng Xiao Yu Cun Seafood Restaurant Super Thai by Soi Aroy In addition to these, there are coffee shops, casual eateries, and food courts within the neighbourhood. Several clinics are located within a short distance from Bartley Ridge. These include: Healthlink Medical Clinic & Surgery 1 Aljunied Medical J Medical Clinic These clinics provide general medical services and basic healthcare needs. Daily essentials are easily available at several supermarkets in the surrounding area. Sheng Siong Prime Supermarket Parisha Mart These outlets provide a range of daily necessities at different price points. Blocks are placed to allow internal views towards pools and landscaped areas. Communal facilities are spread across the compound, ensuring that different sections of the development have access to shared spaces. The architectural style reflects modern condominium design in Singapore. Clean lines, neutral tones, and open spaces define the overall look. The integration of greenery within the compound helps soften the built environment and supports a more relaxed atmosphere. One-bedroom units from 441 to 635 sq ft Two-bedroom units from 721 to 764 sq ft Two-bedroom plus study units from 829 to 990 sq ft Three-bedroom units from 1,033 to 1,259 sq ft Four-bedroom units from 1,302 to 1,464 sq ft Four-bedroom dual-key units from 1,550 to 1,658 sq ft The layouts focus on efficient space use. The absence of bay windows and large household shelters means more usable living area within each unit. Mount V Development Pte Ltd developed Bartley Ridge. The company was set up for this project and forms part of a wider group involved in property development. The developer worked with professional teams including architects, engineers, and contractors to deliver the project. The result is a large-scale condominium with a wide range of facilities and unit types in District 13. Developments under established groups often involve structured planning and coordinated execution. This supports timely completion and adherence to design plans. Bartley Ridge is located in a residential neighbourhood with several other condominium developments. These nearby projects contribute to a vibrant community. Oasis Garden Bartley Vue Botanique at Bartley The presence of multiple residential projects in the area reflects ongoing interest in District 13 as a housing location. Shared access to transport and amenities benefits the wider neighbourhood. Bartley Ridge offers a city-fringe address in District 13, with strong transport links and a wide range of facilities. The development provides 868 units across various layouts, catering to singles, couples, and families. With landscaped grounds, sports facilities, and communal spaces, residents have access to both activity and relaxation within the compound. For those considering a home in District 13, Bartley Ridge presents a practical option with balanced features and connectivity. For more details on available units and current listings, visit the "Bartley Ridge"sale or rent page.
DeveloperMount V Development Pte Ltd
Explore PropertyGuru
Recent market search behaviour suggests the project remains on the radar of local property seekers, drawing on 30 days of PropertyGuru search activity in Macpherson / Potong Pasir. The project remains one of the more visible names in recent search data, capturing 7.01% of district queries.
Most-searched Units: 3-BedroomPopular preferences: Maidsroom, Gym, Tennis Court
Pricing by Unit Types:
- 1-Bedroom Units:
- Avg Asking Price: S$ 894K
- Avg PSF: S$ 1,846 psf (3.1% lower compared to Macpherson / Potong Pasir average of S$ 1,905 psf)
- Available Units: 7
- 2-Bedroom Units:
- Avg Asking Price: S$ 1.78M
- Avg PSF: S$ 2,069 psf (23.74% higher compared to Macpherson / Potong Pasir average of S$ 1,672 psf)
- Available Units: 6
- 3-Bedroom Units:
- Avg Asking Price: S$ 2.53M
- Avg PSF: S$ 2,082 psf (35.65% higher compared to Macpherson / Potong Pasir average of S$ 1,535 psf)
- Available Units: 14
- 4-Bedroom Units:
- Avg Asking Price: S$ 3.45M
- Avg PSF: S$ 2,057 psf (16.19% higher compared to Macpherson / Potong Pasir average of S$ 1,770 psf)
- Available Units: 2
- BARTLEY MRT STATION (260m, 3 mins) — Direct access to the Circle Line provides a smooth commute to major hubs like the CBD and Orchard Road in about 25 minutes.
- AFT UPP PAYA LEBAR RD (60m, 1 min) — This stop is just steps away, offering a very quick way to catch local buses for short trips around the area.
- BEF UPP PAYA LEBAR RD (142m, 1-2 mins) — Another nearby option that gives residents more flexibility for their daily bus travel.
- SDM CHILDCARE CENTRE (BARTLEY) PTE LTD (265m, 3-4 mins) — A very convenient childcare option for parents who need a reliable place for their little ones close to home.
- RAMAKRISHNA MISSION SARADA KINDERGARTEN (413m, 4-5 mins) — This well-established kindergarten is within easy walking distance for families with young children.
- BARTLEY SECONDARY SCHOOL (584m, 7-8 mins) — Having a secondary school so close by makes the morning school run much simpler for older students.
- KONG KIAN CLINIC (507m, 6-7 mins) — A handy local clinic for residents to visit for general check-ups or minor health matters.
- LOTUS MEDICAL CLINIC (634m, 7-8 mins) — Provides additional medical services within a short walk from the development.
- TAI SENG CLINIC (700m, 8-9 mins) — Another nearby healthcare option that adds to the convenience of living in this neighbourhood.
- FAIRPRICE (1231m, 14-15 mins) — This well-known supermarket is the go-to spot for picking up fresh groceries and daily household essentials.
- YIAH YU CUN SEAFOOD RESTAURANT (476m, 5-6 mins) — A great local spot for families to enjoy a seafood dinner without having to travel far.
- NENE CHICKEN (563m, 6-7 mins) — A popular choice for a quick, casual meal or a tasty snack nearby.
- FIRESTONE BAKERY (622m, 7-8 mins) — Perfect for residents who want to grab fresh bread or pastries on their way home.
Bartley Ridge demonstrates a robust market profile characterized by significant capital appreciation and high transaction volume.
- PSF Appreciation: S$1,750.5 psf → S$2,024 psf over recent years (+15.62%) from 2023 - 2026.
- Expected Rental Yield: At 2.97%, this reflects a moderate return for property owners.
- Transactions: 83 rental transactions in the last 6 months and 17 sale transactions in the last 12 months, indicating brisk rental activity and strong sale activity.
- PG Pulse Insight: With a +15.62% PSF growth and brisk rental activity, Bartley Ridge remains a highly liquid asset with a moderate rental return of 2.97%.
Published date: May 25, 2026


























