Sky Vue
Bishan Street 14
S$ 1,750,000
2
Beds
2
Baths
807
sqft (floor)
S$ 2,169
psf (floor)
540 m (6 mins) from NS17/CC15 Bishan MRT
About this property
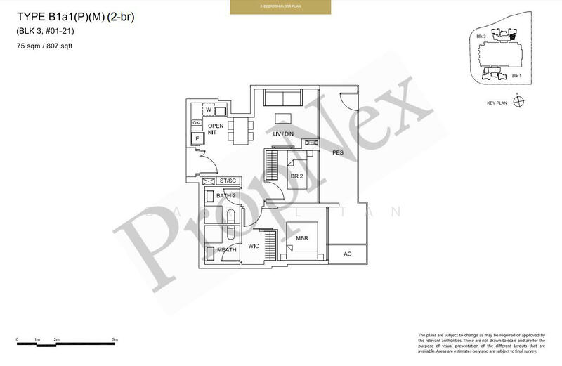
Biggest sized 2BR at Sky Vue, East Facing zero west Sun!
- Property Size: Approx 75 SQM / 807 SQFT
- Ground floor unit!
- Special high ceiling unit because its ground floor unit!
- Very bright and windy unit
- East Facing zero west sun
- Corner privacy unit
- Quiet and Serene Living Environment
- Zero Odd Shape maximises usable living space
- Greenery facing unit!
- Unlimited potential use for balcony space (Ziptrak)
- Balcony space can utilise as 2nd dining area, study area, relaxing area
- Amenities
MRT:
a) Bishan Interchange [330m] Red North South and Yellow Circle Line
Shopping Mall:
a) Junction 8 [280m]
Groceries:
a) Fairprice Finest [240m] at Junction 8
Primary One Registration:
a) Kuo Chuan Presbyterian Primary [580m]
b) Catholic High School (Primary Section) [700m]
c) Townsville Primary School [920m]
Call Gabriel Tan @ +6***** Now !!!
Amenities
Air conditioner
Balcony
Covered car parking
Security guard
Common facilities
24 hours security
Drop off point
Gymnasium room
Karaoke
Affordability
Tell us your monthly income and expenses to see if this home fits your budget.
Sky Vue
Sky VueSky Vue is a residential development located on the city fringes in District 20. Its 694 units, made up of 1, 2 and 3 bed apartments as well as 8 penthouses, are spread across two 37 storey towers. Its large number of facilities – including a 50 metre lap pool, gym, tennis court, sky lounge and karaoke lounge are split over the ground, 7th and 37th floors. It is Sky Vue’s location that is its biggest advantage however. It is a 3-minute walk from Bishan Interchange on the North South and Circle Lines, meaning a commute into the city or a shopping trip along Orchard is just 10 to minutes by train. By car it’s even quicker. Junction 8 is also 3 minutes’ walk away from Sky Vue and offers a good choice of retail and dining options including cinema.CapitaLand is one of Asia’s main real estate companies headquartered and listed in the country. Its diversified global real estate portfolio includes integrated developments, shopping malls, serviced residences, offices and homes. Their main markets include Singapore and China with Indonesia, Malaysia and Vietnam being potential new growth markets.Sky Vue – Unique Selling PointsIt is the location that is the biggest draw for Sky Vue, and in particular its close proximity to an MRT (and hence the CBD and Orchard), as well as local eateries, retail options and a cinema. Bishan Interchange on the North South and Circle Lines is just 3 minutes away from Sky Vue on foot, meaning a commute into the city is a quick and pain free experience. Drivers can also get into the CBD and Orchard in just over 10 minutes, assuming good conditions. Junction 8 mall is also 3 minutes’ walk from the development. Sky Vue itself is a very good looking project boasting a large number of facilities across three different levels.Sky Vue – AccessibilitySky Vue is superbly located in terms of accessibility. It is a 3-minute walk to Bishan MRT Interchange, which is on the North South and Circle Lines. From there it is just 10 minutes into Orchard, and not much longer into the CBD. Drivers will also be able to get into both Orchard and the CBD in a little over 10 minutes in good conditions, with major arterial roads such as Braddell Road, Upper Thomson Road and Marymount Road all within easy reach, as are the PIE and CTE.Closer to home, Junction 8, a shopping mall with a cinema and more than 170 retail outlets and eateries is just 3 minutes’ walk from Sky Vue.Sky Vue - Amenities & AttractionsDining near Sky Vue:Mata ThaiDin Tai FungManhattan Fish MarketAmbushPrata Wala RestaurantShopping near Sky Vue:Junction 8AMK HubThomson PlazaAng Mo Kio HubNEXSin Ming PlazamyVillage at Serangoon GardenSchools and Education near Sky Vue:Kuo Chuan Presbyterian Secondary SchoolKuo Chuan Presbyterian Primary SchoolTownsville Primary SchoolCatholic High School.Sky Vue - Project informationSky Vue is a residential development located on Bishan Street 15. It consists of two 37 storey towers, with 5 levels of podium parking, and 1 of basement parking. Along with its neighbour Sky Habitat, they tower over the neighbourhood.There are 694 units within Sky Vue, made up of 1, 2 and 3 bed units (the 2 bed coming with a suite option) as well as 8 penthouses. The large number of facilities are located on the ground, 7th and 37th floors. These include a spa pool, leisure pool, children’s splash pool, gymnasium, steam room, karaoke/screening room and tennis court on the ground floor and a 50-metre lap pool and function rooms on the 7th floor. The 37th floor of Sky Vue hosts a sky lounge and sky gym.Project Name: Sky VueAddress: Bishan Street 15Site area: Approx. 129,136 sqftTenure: 99 yearsDistrict: 20Configuration: 694 unitsUnit types:120 x 1-bedroom units (484 – 592 sqft)200 x 2-bedroom units (678 – 850 sqft)192 x 2-bedroom suite units (797 – 915 sqft)174 x 3-bedroom units (1,141 – 1,259 sqft)8 x penthouse units (1,744 – 1,905 sqft)Maintenance fees: Approx. $265 – $424Parking lots:694 normal lots6 handicap lotsExpected TOP: October 2017Expected legal completion: October 2020Sky Vue - Historical DataAs of November 2015, the number of caveated transactions at Sky Vue stood at 516. Prices for those sales ranged from $676K to $3.427M with just over 75% coming in at $1.5M or below. With regards to the median prices for Sky Vue, from that data, the figures are $1,522 psf for the 1 bedders, $1,474 psf and $1,324 psf for the2 bed and 2 bed suits respectively, $1,394.5 psf for the 3 bed units and $1,710.5 psf for the penthouses.Sky Vue - Related ProjectsThe following projects are by the same developer as Sky Vue:d’LeedonMarine BlueCairnhill NineThe InterlaceSky Vue - Nearby ProjectsThe following developments are in the same neighbourhood as Sky Vue:Sky HabitatClover by the ParkSeasons ViewMarymount View
View project details








