First Avenue
First Avenue
S$ 11,000,000
Negotiable6
Beds
6
Baths
5,183
sqft (land)
S$ 2,122
psf (land)
1 km (12 mins) from DT7 Sixth Avenue MRT
About this property
Rare Freehold Corner Detached in Prime D10, Near School For Sale!
Rare Freehold Corner Detached in Prime D10 | 1KM to Raffles Girls' Primary
Spacious 3.5-storey detached home in sought-after Bukit Timah (D10) with 6 bedrooms, 6 bathrooms, private pool & parking for 3 cars. Sitting on a generous 5,183sqft freehold land, this home is ideal for multi-generational living. Just 10mins walk to Sixth Avenue MRT & within 1KM of Raffles Girls' Primary. Surrounded by top schools, shopping & nature spots.
Unit Details:
* D10
* Freehold
* 3.5 Storey Detached House
* Land Size: 5,183 sqft
* Est Built-up: 4,800 sqft
* Land Plot Width: 14.4m-20.6m
* Land Plot Depth: 18.4m-24.4m
* 6 Bedrooms + 1 Helper Room, 6 Bathrooms
* Swimming Pool
* Park up to 3 cars
* Gate Facing: South-east
* Great for Multi-Generational Living
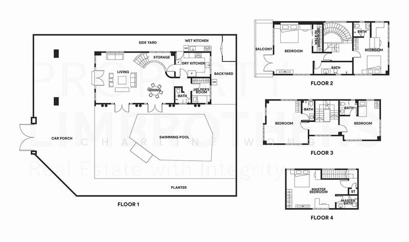
Floor Plan Configuration:
L1: Car Porch, Swimming Pool, Living & Dining Area, Dry & Wet Kitchen, Granny Room, Helper’s Room, Common Bathroom
L2: 2 Bedrooms with Ensuite Bathrooms
L3: 2 Bedrooms with Ensuite Bathrooms
Attic: 1 Bedroom with Ensuite Bathroom
Transports:
Sixth Avenue MRT (DT7) | 0.45KM
Tan Kah Kee MRT (DT8) | 0.89KM
Malls:
Coronation Shopping Plaza | 1.2KM
King’s Arcade Shopping Centre | 1.31KM
Crown Centre | 1.36KM
Bukit Timah Plaza | 2.67KM
Groceries
CS Fresh @ Guthrie House | 0.58KM
Greenwood Fish Market | 0.7KM
FairPrice Finest @ Coronation Shopping Plaza | 1.2KM
Eateries:
Adam Food Centre | 1.6KM
Killiney Kopitiam @ Serene Centre | 1.63KM
Primary Schools:
Raffles Girls Primary | 0.64KM
Nanyang Primary | 1.12KM
Methodist Girls School | 1.97KM
Secondary Schools:
Nanyang Girls' High School | 0.23KM
National Junior College | 0.39KM
Hwa Chong Institution | 0.74KM
Recreations:
Botanic Garden | 2.25KM
MacRitchie Reservoir | 3.16KM
Bukit Timah Hill | 3.68KM
For viewing arrangements, kindly contact:
Melvin Lim @ 8.3.3.3.9.8.5.0
Charline Wong @ 9.0.4.6.2.1.8.8
PLB
Disclaimer: All information provided, including land size, built-up area, distances & property details are based on estimates & are subject to change.
Spacious 3.5-storey detached home in sought-after Bukit Timah (D10) with 6 bedrooms, 6 bathrooms, private pool & parking for 3 cars. Sitting on a generous 5,183sqft freehold land, this home is ideal for multi-generational living. Just 10mins walk to Sixth Avenue MRT & within 1KM of Raffles Girls' Primary. Surrounded by top schools, shopping & nature spots.
Unit Details:
* D10
* Freehold
* 3.5 Storey Detached House
* Land Size: 5,183 sqft
* Est Built-up: 4,800 sqft
* Land Plot Width: 14.4m-20.6m
* Land Plot Depth: 18.4m-24.4m
* 6 Bedrooms + 1 Helper Room, 6 Bathrooms
* Swimming Pool
* Park up to 3 cars
* Gate Facing: South-east
* Great for Multi-Generational Living
Floor Plan Configuration:
L1: Car Porch, Swimming Pool, Living & Dining Area, Dry & Wet Kitchen, Granny Room, Helper’s Room, Common Bathroom
L2: 2 Bedrooms with Ensuite Bathrooms
L3: 2 Bedrooms with Ensuite Bathrooms
Attic: 1 Bedroom with Ensuite Bathroom
Transports:
Sixth Avenue MRT (DT7) | 0.45KM
Tan Kah Kee MRT (DT8) | 0.89KM
Malls:
Coronation Shopping Plaza | 1.2KM
King’s Arcade Shopping Centre | 1.31KM
Crown Centre | 1.36KM
Bukit Timah Plaza | 2.67KM
Groceries
CS Fresh @ Guthrie House | 0.58KM
Greenwood Fish Market | 0.7KM
FairPrice Finest @ Coronation Shopping Plaza | 1.2KM
Eateries:
Adam Food Centre | 1.6KM
Killiney Kopitiam @ Serene Centre | 1.63KM
Primary Schools:
Raffles Girls Primary | 0.64KM
Nanyang Primary | 1.12KM
Methodist Girls School | 1.97KM
Secondary Schools:
Nanyang Girls' High School | 0.23KM
National Junior College | 0.39KM
Hwa Chong Institution | 0.74KM
Recreations:
Botanic Garden | 2.25KM
MacRitchie Reservoir | 3.16KM
Bukit Timah Hill | 3.68KM
For viewing arrangements, kindly contact:
Melvin Lim @ 8.3.3.3.9.8.5.0
Charline Wong @ 9.0.4.6.2.1.8.8
PLB
Disclaimer: All information provided, including land size, built-up area, distances & property details are based on estimates & are subject to change.
Affordability
Can I afford this property?
Tell us your monthly income and expenses to see if this home fits your budget.
Mortgage breakdown
Est. monthly repayment
 S$ 0 / mo
S$ 0 Principal
S$ 0 Interest
Upfront costs
Total downpayment
 S$ 0
Downpayment
S$ 0 Loan amount at 0% Loan-to-value
What’s your enquiry about?
FAQs
The sale price of this unit at First Avenue is S$ 11,000,000.
Current PSF at First Avenue is about S$ 2,122.32 psf.
The estimated loan repayment is S$ 32,255 / mo.
 First Avenue is located at First Avenue  Tanglin / Holland / Bukit Timah .
Floor size of this unit at First Avenue is 4,800 sqft.
Explore other options in and around Tanglin / Holland / Bukit Timah
Based on the property criteria, you might be interested on the following
Detached House For Sale
Nearest MRT Stations
What’s your enquiry about?























