Belgravia Ace - 7 Units for Sale
Map View
We’ve shown you all the matches
Almost there!
Refining your recommendations.
This may take a few seconds...
Belgravia Ace
100 Belgravia Drive 804238(D28) Seletar / Yio Chu Kang
Summary
Belgravia Ace
Read more
Project details
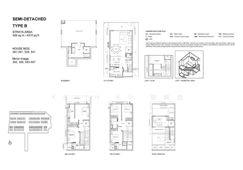
TypeSemi-Detached House
PriceS$ 5.3M - 5.7M
Completion year2025
TenureFreehold
No. of blocks2
No. of floors5
Total units107
Top facilities
Car park
DeveloperTong Eng Group
Explore PropertyGuru
Properties by ownership






























