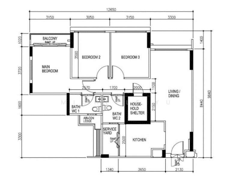
623A Punggol Central - 2 Units for Sale
Map View
We’ve shown you all the matches
Almost there!
Refining your recommendations.
This may take a few seconds...
623A Punggol Central
623A Punggol Central 821623(D19) Hougang / Punggol / Sengkang
Project details
TypeHDB
PriceS$ 578K - 750K
Completion year2012
Tenure99-year Leasehold
No. of blocks1
No. of floors18
Top facilities
Car park
DeveloperHousing & Development Board (HDB)
Explore PropertyGuru
Properties by ownership
Properties by furnishing
Properties by price per sqft.
Properties by year constructed












