289A Bukit Batok Street 25 - 7 Units for Sale
Map View
We’ve shown you all the matches
Almost there!
Refining your recommendations.
This may take a few seconds...
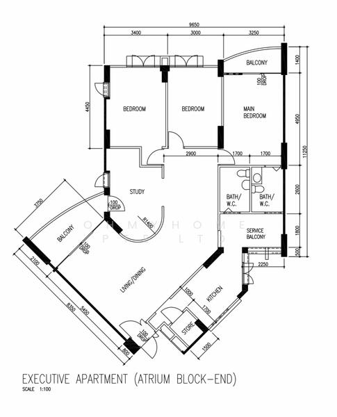
289A Bukit Batok Street 25
289A Bukit Batok Street 25 650289(D23) Dairy Farm / Bukit Panjang / Choa Chu Kang
Summary
289A Bukit Batok Street 25
Read more
Project details
TypeHDB
PriceS$ 820K - 970K
Completion year1996
Tenure99-year Leasehold
No. of blocks1
No. of floors16
DeveloperHousing & Development Board (HDB)
Explore PropertyGuru
Properties by ownership













