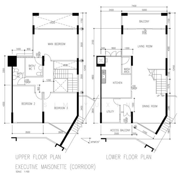
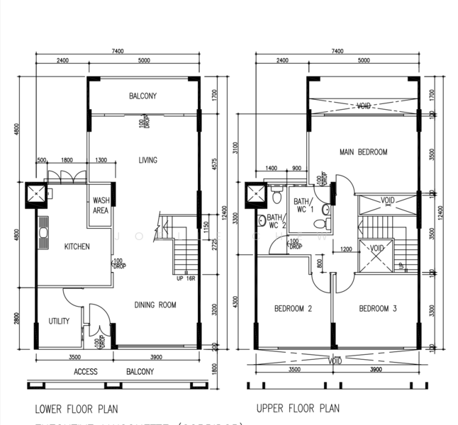
108 Jalan Rajah - 7 Units for Sale
Map View
We’ve shown you all the matches
Almost there!
Refining your recommendations.
This may take a few seconds...
108 Jalan Rajah
108 Jalan Rajah 320108(D12) Balestier / Toa Payoh
Summary
108 Jalan Rajah
Read more
Project details
TypeHDB
PriceS$ 969K - 1.3M
Completion year1983
Tenure99-year Leasehold
No. of blocks1
No. of floors11
DeveloperHousing & Development Board (HDB)
Explore PropertyGuru
Properties by ownership
























