105 Jalan Rajah - 1 Units for Sale
Map View
We’ve shown you all the matches
Almost there!
Refining your recommendations.
This may take a few seconds...
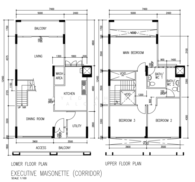
105 Jalan Rajah
105 Jalan Rajah 320105(D12) Balestier / Toa Payoh
Summary
105 Jalan Rajah
Read more
Project details
TypeHDB
PriceS$ 998K - 1.1M
Completion year1983
Tenure99-year Leasehold
No. of blocks1
No. of floors9
DeveloperHousing & Development Board (HDB)
Explore PropertyGuru
Properties by ownership
Properties by furnishing
Properties by price per sqft.
Properties by year constructed



















