104A Bidadari Park Drive - 35 Units for Sale
Map View
104A Bidadari Park Drive
104A Bidadari Park Drive 341104(D12) Balestier / Toa Payoh
Project details
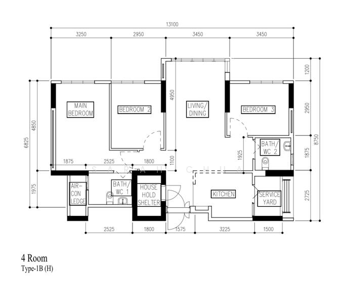
TypeHDB
PriceS$ 800K - 1.4M
Tenure99-year Leasehold
No. of blocks1
Top facilities
Car park
DeveloperHousing & Development Board (HDB)
Explore PropertyGuru
Properties by ownership








