The Stellar - 20 Units for Rent
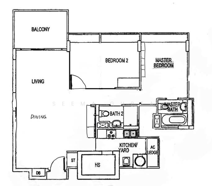
The Stellar is a freehold condominium building that is located at West Coast Road in District 5. It is a newly built low-rise condominium development. The project was completed in 2008 with a total of 162 units available for sale or rent. The condominium is located close to public transportation that allows residents to move easily from one place to another from the condominium. There are many shops and amenities close to the condominium which would ease the process for residents and they do not need to go far to find what they need. The project is developed by First Bedok Land Pte Ltd, a subsidiary of GuocoLand Ltd, a big property developer listed on Singapore Exchange and has built about 25 property projects in Singapore. - The Stellar is a beautiful condominium that has many charms to it. There are various facilities that residents can enjoy while living in The Stellar. Residents of The Stellar would not have to travel far to get their basic necessities as everything is close within their reach. Residents can enjoy the barbeque area, fitness corner, gymnasium room, playground, swimming pool, clubhouse function room, Jacuzzi and tennis courts. The condominium development comes equipped with 24 hours security system that ensures the safety of its residents at all times. There is a number of public transportation close to The Stellar that residents can make use of. The closest bus stops are located at Varsity Park, Clementi Road, West Coast Park, Waseda Shibuya Senior High School and Tentera Diraja Mque. For those with vehicles, the shopping district located at Orchard Road can be easily accessed via the Ayer Rajah Expressway or Tanglin Road in about 15 to 20 minutes. Supper StretchNana Nakkon Kitchen Thai FoodAl Amaan RestaurantXpress Makan AvenueFong Seng Nasi Lemak Genesis SchoolHouse On The Hill Montessori Pre SchoolKent Ridge Secondary SchoolThe Japanese SchoolWaseda Shibuya Senior High School West Coast Clinic & SurgeryHealthway Medical (West Coast)Family Life ClinicWestside Medical ClinicClementi Family & Aesthetic Clinic West Coast PlazaThe Clementi mallThe Star VistaIMMRochester Mall Cold Storage FusionopolisSheng ShiongFairPrice Dover Crescent The Stellar is a condominium development that is made up of a total of 162 units. There are 3 unit types available with various layouts that residents can browse through. The sizes for the units range between 947 square feet to 2, 271 square feet. The layouts for the units in The Stellar aim to provide residents with homes that is comfortable for working adults, couples or families looking to own a spacious and manageable condominium unit. The sale price for the units ranges between S$ 1,650,000 to S$ 2,100,000. Project Name: The StellarType: CondominiumDistrict: 05Configuration: 162 residential units Unit Types:2 bedrooms (947 sqft 1,055 sqft)3 bedrooms (1,313 sqft 2,207 sqft)4 bedrooms (2,217 sqft) The following are projects that have been developed First Bedok Land Pte Ltd, a subsidiary of GuocoLand Ltd, the developer of The Stellar: Martin ModernLeedon ResidenceNathan Place The following developments are in the same neighborhood as The Stellar:Parc ClematisParc RivieraKent Ridge Hill ResidencesWhistler GrandThe RochesterOne-North Residences
DeveloperFirst Bedok Land Pte Ltd






















