Clover By The Park - 8 Units for Rent
Refining your recommendations.
This may take a few seconds...
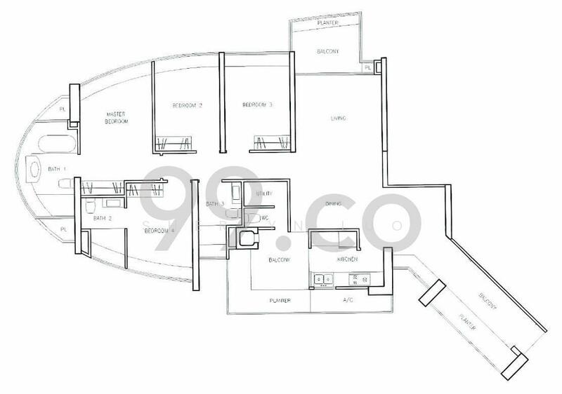
Clover By The Park, a 99-year leasehold condominium located at Bishan Street 25, Singapore 573973, in District 20. The condominium development sits within the Ang Mo Kio, Bishan, and Thomson area, a mature estate known for its balanced mix of housing, green spaces, and daily amenities. Completed in 2012, this high-rise project was developed by Sim Lian (Bishan) Pte Ltd and comprises 616 residential units. The project consists of two 39-storey towers that rise above the surrounding neighbourhood. Its tall structure allows many units to enjoy open views of the skyline and nearby greenery. One of the main highlights of Clover By The Park is its location beside Bishan-Ang Mo Kio Park. This well-known park spans a wide area and features open lawns, walking paths, cycling tracks, and water features. Morning walks, evening jogs, and simple family time outdoors become part of daily life. The development is also positioned within a central part of Singapore. District 20 connects easily to many key areas, including the Central Business District (CBD) and Orchard Road. This location allows residents to travel to work, shopping areas, and lifestyle hubs without long travel times. Clover By The Park benefits from good public transport access. Residents can reach Bishan MRT station (CC15/NS17), which serves both the North South Line and the Circle Line. This interchange station allows smooth travel to many parts of Singapore. The North South Line connects directly to the city centre, while the Circle Line links to various residential and commercial districts. Another nearby station is Teck Ghee MRT Station (CR12) on the Cross Island Line. This adds another transport option for residents and improves connectivity within the region. Expressways such as the Central Expressway (CTE) and the Pan Island Expressway (PIE) are easily accessible. These roads connect to Orchard Road, the Central Business District (CBD), and other parts of the island. The road network around Bishan supports smooth travel during daily commutes. Clover By The Park occupies a prominent site along Bishan Street 25. The two 39-storey towers stand tall within the development, forming a clear skyline feature in the area. The layout separates the residential blocks from the facility areas, allowing both privacy and shared spaces. Clover By The Park Condominium 20 616 residential units Clover By The Park is planned with a range of facilities that support relaxation, exercise, and social time. The development includes: Barbecue area Clubhouse Gymnasium room Lap pool Playground Tennis courts These shared amenities encourage interaction among residents while still allowing personal privacy within each home. Families living in Clover By The Park have access to several choice schools within the Bishan area. Nearby options include: My First Skool at Blk 245 Bishan Catholic High School Whitley Secondary School These schools offer different levels of learning, from early childhood to secondary education. Residents of Clover By The Park can enjoy food options in the surrounding neighbourhood. Some nearby eateries include: Shun Heng Kimly Zi Char 284 Kway Chap These dining spots offer local dishes and casual meals. Access to healthcare services is another practical benefit of living in this area. Nearby clinics include: HMI OneCare Clinic Bishan Edgedale Medical Clinic 1 Bishan Medical Clinic These clinics provide general medical services and support daily healthcare needs. Daily grocery shopping is simple with several supermarkets in the area. These include: FairPrice Bishan Ang Mo Supermarket E-Xin Mart These stores offer fresh produce, household items, and daily essentials. Landscaped gardens and pathways are arranged around the base of the towers. The lap pool, playground, and tennis courts are placed within the compound, creating activity zones for different age groups. The basement car park helps keep the ground level open and less crowded. Three bedrooms from 1,216 sq ft to 2,207 sq ft Four bedrooms from 1,733 sq ft to 1,765 sq ft Five bedrooms from 2,530 sq ft to 3,498 sq ft The larger unit sizes reflect the development's family-focused nature. The penthouse homes offer even more space and elevated views of the park and the nearby neighbourhood. Sim Lian Group developed Clover By The Park through its subsidiary, Sim Lian (Bishan) Pte Ltd. Sim Lian Group is known in Singapore for developing residential and commercial properties across various districts. The developer has delivered various condominium and mixed-use projects over the years. Its focus on practical layouts and community facilities is evident in Clover By The Park. The spacious units and wide range of shared amenities reflect this approach. Other projects linked to the same developer include: Parc Vera A Treasure Trove Hillion Residences These developments add to the developer’s portfolio across Singapore and demonstrate its experience in handling large-scale residential projects. The Bishan and Thomson area includes several other residential developments, such as: JadeScape The Panorama Thomson Grand The presence of these nearby projects contributes to an active residential community within District 20. The area continues to attract families and working adults due to its central location and access to parks and transport links. Clover By The Park offers spacious homes in a central part of Singapore, next to one of the largest parks in the Bishan area. Its two tall towers, a wide range of facilities, and strong transport connections create a balanced living setting. Residents benefit from nearby choice schools, dining outlets, supermarkets, and clinics, all within a mature estate. The combination of park access, MRT connectivity, and generous unit sizes supports both comfort and convenience. Clover By The Park remains a notable residential option in District 20 for families and individuals seeking a well-located condominium. For more details and available listings, visit the Clover By The Park sale or rent page.
DeveloperSim Lian (Bishan) Pte Ltd



































