Uber 388
388 Upper East Coast Road
S$ 1,900,000
2
Beds
2
Baths
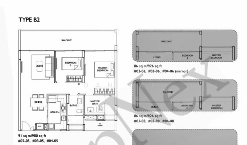
926
sqft (floor)
S$ 2,052
psf (floor)
520 m (6 mins) from TE29 Bayshore MRT
About this property
Freehold, Renovated, Near Bayshore MRT
Huge Size of 926 sqft !!!
Renovated and Move in Condition !!!
Kitchen able to be enclosed if you want !!!
Corner unit with Maximum Privacy !!!
Quiet Facing !!!
No Afternoon Sun !!!
Squarish and spacious Layout !!!
Rooms are very spacious !!!
ZipTrack Installed to Maximise Balcony Space !!!
Super Near Bayshore MRT !!!
Freehold at Leasehold Price !!!
Serious Sellers !!!
Within 1km to Temesak Primary School !!!
Contact me at 9***** for more information or to arrange an exclusive Viewing !!!
Amenities
Air conditioner
Balcony
Covered car parking
Security guard
Common facilities
Barbeque pits
Basement car park
Clubhouse
Function room
Affordability
Tell us your monthly income and expenses to see if this home fits your budget.
Uber 388

The Uber 388 is a condominium development project that is located in District 16 in Singapore. The Uber 388 offers freehold tenure to its tenants. One of the greatest advantage that the residents of Uber 388 can make use of is its extremely high accessibility. There is a lot of bus stop surrounding the development and two MRT stations that are within close proximity of the development. Furthermore, the Uber 388 is suitable for a growing family to live in because it is located close to a number of schools in the area. The Uber 388 development project was completed in the year of 2015 and it was developed by Caseldine Investment Pte Ltd. Caseldine Investment Pte Ltd is a private company limited by shares and they were incorporated in the year of 1996 in Singapore. Their principal business activity is real estate developers. However, their current operating status is dissolved. The Uber 388 provides basic condominium facilities to its residents. First of all, there is a swimming pool provided by the development for the residents who enjoy swimming during their free time. There is also a Jacuzzi for the residents to take some time off and relax in a nice water jet massage. Apart from this, there is a gymnasium room for the residents to help keep themselves in shape where as there is a playground for the children. There is also a BBQ area for the residents to have nice time of bonding with friends and families over some good old BBQ. In addition, the development provided a car park for the vehicle owners and the car park is located in the basement to protect them from the rain and sun. Last but not least, there is a clubhouse and a function room for other various activities. Having relatively high levels of accessibility is one of Uber 388’s strongest selling points as well. There is a lot of bus stations located within the vicinity of the development project and it is highly convenient for those who often uses the bus to travel around. The nearest bus stop is located before Sennett Road which is only about 110 metres and 1 minute of walking distance away from the development. There are 2 MRT stations that just within a short driving distance away from the development and those 2 MRT stations are the Bedok MRT station and the Tanah Merah MRT station. Hua Yu WeeKrug Dinner At Lucky HouseDelifrance Singapore – Upper East Coast Express CornerChing San Eating HouseNew Hawa Restaurant & Catering Service Chai Chee Secondary SchoolTemasek Secondary SchoolTemasek Primary SchoolRainbow Cove Pre-SchoolSingapore Hokkien Huay Kuan Pre-School newEcon – Top Choice SupermarketThe Essential CornerM.S MinimartPrime Supermarket The Uber 388 is a condominium development project that offers freehold tenure to its residents and it comprises a total number of 95 residential units spread across 5 floors. The development is located along Upper East Coast Road, 466477, East Coast (D15-16). The selling price for each unit in Uber 388 ranges from SGD730K to SGD2.08mil. Project Name: Uber 388District: 16Configuration: 95 residential units spread across 5 floors Unit types:1 bedroom and 1 bath2 bedrooms and 2 baths3 bedrooms and 3 baths4 bedrooms and 4 baths The following development projects are in the same neighbourhood as Uber 388:eCOGrandeur Park ResidencesUrban VistaThe GladesArchipelagoThe Bayshore
View project details























