Tree House
60 Chestnut Avenue
S$ 1,800,000
Starting From3
Beds
3
Baths
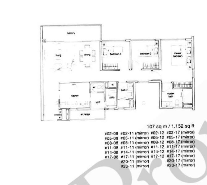
1,152
sqft (floor)
S$ 1,563
psf (floor)
1 km (12 mins) from BP8 Pending LRT
About this property
Super unblocked view!
Seller say MUST SELL‼️
High floor
Fully unblocked
Spacious 3 bedrooms
1152sqf
North-East facing
No afternoon sun!
Tranquil and serene
3 mins stroll to Dairy Farm Mall
Mins to Hillview and Bukit Panjang MRT
1km to Bukit Panjang Primary School and CHIJ Our Lady Queen of Peace
Call Shannen Ng @ 8***** now !
Amenities
Air conditioner
Air-conditioning
Balcony
Cooker hob/hood
Common facilities
24 hours security
Amphitheatre
Car park
Children's playground
Affordability
Tell us your monthly income and expenses to see if this home fits your budget.
Tree House

Tree House is a beautifully designed and a unique development located in 60 Chestnut Avenue, District 23, Singapore. The construction of this development was done by the famous CDL & Hong Leong Group, which is a very well reputed company in the field of construction. The development of this project was completed in the year 2014 and it offers all the facilities and features to its residents to make it a top development of the area. Tree House offers a lot of facilities and features that the residents of many new developments only dream of having. There is a lovely clubhouse in the development where the residents can spend some unforgettable time with their family and friends. Reflexology path is also available in the area. There is a multi purpose hall in the development which can be used on different occasions by the residents. The development company did not forget about the children and has developed a lovely children�s playground in the area where the children can enjoy while remaining in the development and without worrying the parents. The development also offers facilities like a jogging track, a fitness corner, tennis courts, a swimming pool and a great gymnasium equipped with modern exercising machines where the residents can work out while remaining in the development and enjoy healthy lifestyle. The development offers complete car parking facility for its residents. Most importantly, the development is equipped with latest security gadgets and provides 24 hour security to its residents to make sure that the residents are protected from any kind of external threats while they are in the development. Tree House was developed strategically keeping in mind the importance of accessibility of the location. The residents do not have to worry about moving to and from the location even if they do not have their own vehicles. Public transportation is also available in the locality making the area of the development even more attractive. The residents of the development can use the DT2 Cashew MRT Station, DT3 Hillview MRT Station and DT1 Bukit Panjang MRT Station to easily move to and from the location. The development is easily accessible and is connected via major roads and highways of the area from where the residents can reach any place in the city easily just by driving for a few minutes. The residents of the development can use the Bukit Timah Expressway and Dunearm Road to move to and from the location. Tree House is located in a great area and is surrounded by a variety of amenities. The residents do not have to worry about anything in the area because everything is easily available in the locality. It is considered to be a great place for those who love to do shopping because there are many famous shopping spots in the area. Few of the famous shopping spots near the development are namely Farm to Market, Champagne Bakery Snacks & Confectionery, Nila Traders Pte Ltd and Meng Kiat Supermarket from where the residents can shop for almost anything they want. Many great food points are also available in the locality where the residents can enjoy some fine quality dining facility with their family and friends. The residents can enjoy food at Char-Grill Bar, Golden Rooster Western Food, Xiang Lai Claypot Herbal Bak Kut The and Tian Ning Vegetarian. There are many great educational institutions in the area, providing top class educational institutions to the residents of the area. The residents of the development do not have to worry about the education of their children. Few of the famous educational institutions near the development are namely MY World @ Bukit Panjang, PCF Sparkletots Preschool, German European School Singapore and SBF Training & Consultancy (International) Pte Ltd. There are many medical clinics and hospitals in the area where the residents can go in case of any medical situation. MY World @ Bukit PanjangPCF Sparkletots PreschoolGerman European School SingaporeSBF Training & Consultancy (International) Pte LtdFarm to MarketChampagne Bakery Snacks & ConfectioneryNila Traders Pte LtdMeng Kiat SupermarketOther Shopping VenuesChar-Grill BarGolden Rooster Western FoodXiang Lai Claypot Herbal Bak Kut TheTian Ning Vegetarian Tree House is a beautiful condominium development and consists of 24 floors. The buyers have the option to select from different designs of the units. Project Name: Tree HouseDistrict: 23Configuration: 429 residential units Unit types for Tree House : 2 Bedrooms unit with a built up area ranging between 721 sf � 990 sf2 bedrooms + study unit with a built up area ranging between 807 sf � 1076 sf3 bedrooms units with a built up area ranging between 1152 sf � 1550 sf3 bedrooms unit with a built up area ranging between 1227 sf � 1636 sf4 bedrooms unit with a built up area ranging between 1410 sf � 1959 sfPenthouse with a built up area ranging between 1927 sf � 2917 sfThe development company of the Tree House has developed many famous projects in the country and has always focused on giving value back to the stakeholders of the development. The development company made sure that the Tree House becomes a landmark for future developments and attracts people from all over the city. The following developments are in the same neighbourhood as Tree House:Eco SanctuaryForesque ResidencesChestervaleThe SkywoodsGreen Hill Estate
View project details











