The Estuary @ Yishun
95 Yishun Avenue 1
S$ 1,588,888
Negotiable3
Beds
3
Baths
1,195
sqft (floor)
S$ 1,330
psf (floor)
700 m (8 mins) from NS14 Khatib MRT
About this property
The Estuary @ Yishun
Property Highlights
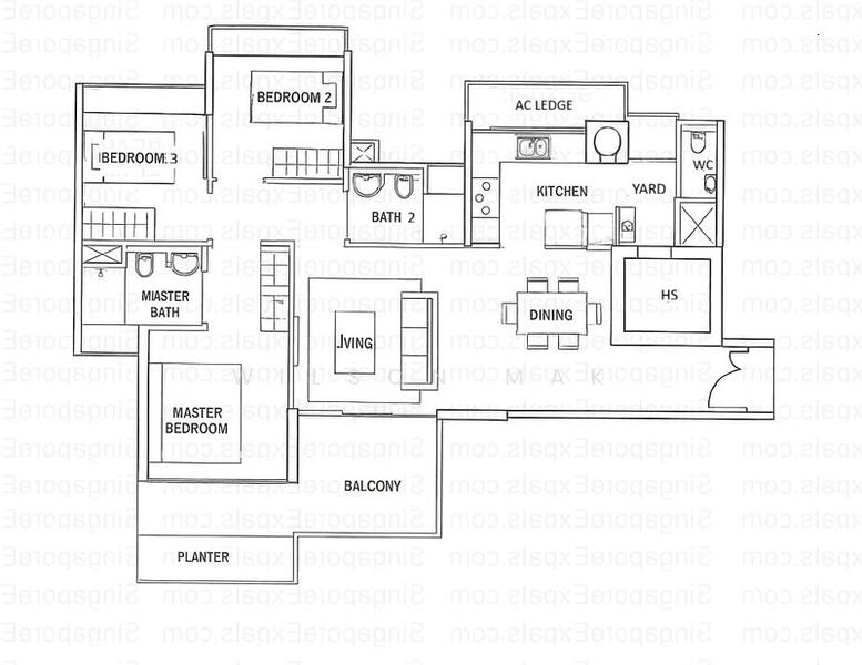
• Spacious, well-planned layout with no odd shapes — every room designed for maximum usability.
• Two large balconies: one off the living room, one off the master bedroom — both offering unblocked greenery.
• Main door facing North-East — enjoy bright natural light in the mornings without harsh afternoon sun.
• Master bedroom easily fits a king-sized bed study area.
• Second bedroom comfortably accommodates a queen-sized bed with storage.
• Third bedroom fits a double bed study table — perfect for kids or home office.
• Practical kitchen with service balcony, adding utility space for laundry & storage
. Direct buses to city, Suntec City and even airport.
. Unit is currently tenanted till March 2026. However, lease is flexible if buyer need the unit early.
Schools within 1 km
1. Naval Base Primary School
2. Peiying Primary School
Schools within 2 km
1. Jiemin Primary School
2. Northland Primary School
Amenities
Air-conditioning
Balcony
Cooker hob/hood
Intercom
Common facilities
Barbeque pits
Clubhouse
Fitness corner
Fun pool
Affordability
Tell us your monthly income and expenses to see if this home fits your budget.
The Estuary @ Yishun

The Estuary @ Yishun is a leasehold condominium development that is located at Yishun Avenue in District 27. It is a condominium project that was completed recently. The project was completed in 2013 with a total of 608 units available for sale or rent. The condominium development is located close to public transportation that allows residents to move easily from one place to another from the condominium. There are many shops and amenities close to the condominium development which would ease the process for residents and they do not need to go far to find what they need. The project was developed by MCL Land Pte Ltd, a large-scale property developer that has developed 28 property projects in Singapore. - The Estuary @ Yishun is a beautiful condominium development that has many charms to it. There are various facilities that residents can enjoy while living in The Estuary @ Yishun. Residents of The Estuary @ Yishun would not have to travel far to get their basic necessities as everything is close within their reach. Residents can enjoy the barbeque area, fitness corner, gymnasium room, multi-purpose hall, steam bath, clubhouse, fun pool, lap pool, playground tennis courts. There is a number of public transportation close to The Estuary @ Yishun that residents can make use of. The closest MRT station to The Estuary @ Yishun is Khatib MRT. The closest bus stops are located at Yishun Sports Hall, Orchid Park Condominium, Khatib Station and Naval Base Secondary School. For those with vehicles, the shopping district located at Orchard Road can be easily accessed via the Central Expressway and Lentor Avenue in 15 to 20 minutes. Long Jiang ChinosKamikaze Asian Tapas BarHops & BerriesBig Bitez SignatureQuench! Bistro & Bar Changchun Language School Khatib BranchNaval Base Secondary SchoolOrchid Park Secondary SchoolPeiying Primary SchoolSkylace Language School Yishun Branch Greenlink Medical ClinicApex Clinic & SurgeryUniversal Dental SurgeryJoy Clinic And SurgeryChua Clinic & Surgery Sheng Siong SupermarketMCP SupermarketGiant SupermarketFirst PriceFairPrice Yishun Ring Road The Estuary @ Yishun is a condominium development that is made up of a total of 608 units of 17-storey condominium buildings. There are 4 types of unit available with various layouts that residents can browse through. The size for the unit ranges between 592 square feet to 1,528 square feet. The layouts for the units in The Estuary @ Yishun aim to provide residents with homes that is comfortable for working adults, couples or families looking to own a spacious and manageable condominium unit. The sale price for the units ranges between S$ 600, 000 to S$ 1,499,888. The rental price for the units ranges between S$ 800 S$ 3,300. Project Name: The Estuary @ YishunType: CondominiumDistrict: 27Configuration: 608 residential units Unit Types:1 bedroom (592 sqft – 689 sqft)2 bedrooms (904 sqft – 1,098 sqft)3 bedrooms (1,119 sqft – 1,453 sqft)4 bedrooms (1,528 sqft) The following developments are in the same neighborhood as The Estuary @ Yishun:Lake GrandeMargaret VilleMera Springs The following developments are in the same neighborhood as The Estuary @ Yishun:Skies MiltoniaThe Estuary @ YishunNorth Park ResidencesOrchid Park CondominiumThe CanopyMiltonia Residences
View project details


























