Sky Eden @ Bedok
1 Bedok Central
S$ 2,288,000
Negotiable3
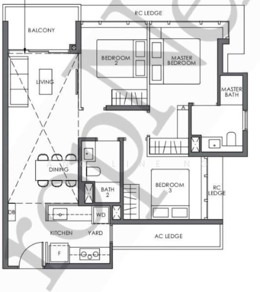
Beds
2
Baths
893
sqft
S$ 2,562
psf
390 m (5 mins) from EW5 Bedok MRT
About this property
Super cheap , super cheap, Sky Eden Bedok
Just top, brand new
Rare condo at bedok central
*mins walk to Bedok MRT
*Squarish layout
* Good capital gain, high rental yield
*convenient to coffeeshop, NTUC groceries,
Banks .
*High floor unblock view
*Quiet
*mins to singpapore expo, changi business park
Suite for families and couple
Asking : $2,288000
Amenities
Air-conditioning
Balcony
Bombshelter
City view
Common facilities
24 hours security
Aircon facilities
Barbeque pits
Basement car park
Affordability
Tell us your monthly income and expenses to see if this home fits your budget.
Sky Eden @ Bedok

Sky Eden Bedok is a new mixed-use development located in Bedok Central in District 16 (D16). Taking over the former Bedok Point Mall, the redeveloped project will feature 12 commercial units downstairs and residential units upstairs. Sky Eden offers residents unparalleled convenience with its strategic location. Situated in the heart of Bedok Central, the development is a 3-minutes’ walk to the Bedok MRT Station (EW5) on the East-West line. With the MRT station being just a stone’s throw away, residents can easily switch to the Circle Line (CCL) at Paya Lebar (EW8/CC9), and the Downtown Line (DTL) at Bugis (EW12/DT14). Furthermore, for parents with school-going children, Sky Eden is also within proximity to prestigious schools such as Red Swastika School and Fengshan Primary School. In addition to amenities like Bedok Mall, the development is also surrounded by rejuvenating green spaces such as the Bedok Reservoir Park; perfect for spending time in nature after a day in the hustle and bustle of the city. One of Sky Eden’s key selling points is the highly connected transport network offered by its strategic location. In addition to being just a short 3-minutes’ walk away from Bedok MRT, the Integrated Transport Hub (ITH) is conveniently located within the nearby Bedok Mall. With more than 30 bus services at their doorstep, the residents can easily travel to areas such as Clementi, Orchard, Toa Payoh, and Jurong. Feeder bus services for short trips around Bedok are also available. For drivers, the Pan Island Expressway (PIE) and East Coast Parkway (ECP) are just a few minutes’ drive away. This takes residents to the Central Business District (CBD) and Orchard shopping belt in under 20 minutes. Moreover, Sky Eden is strategically located near key locations in the East such as the Paya Lebar Commercial Hub, Tampines Regional Hub, Changi Business Park, and Changi Aviation Park. Not only does this make commuting to work convenient for residents but can also potentially boost rental demands for the project. Infinity Lap Pool Sun Deck Spa Pool Kids’ Pool Kid’s Play Social Pavillion comprising BBQ Grill, Alfresco Dining, and Outdoor Lounge Social Clubhouse comprising Kitchenette, indoor dining, and private lounge. Gym Yoga deck Steam Room Reading Pod Function Lawn Garden Trail Community Farm Garden Co-Work Patio Co-Work Sanctuary (With Work Pods) Sky Garden Smart Homes System including smart IoT Gateway, Wifi Camera Doorbell, Aircon Control, Smart Home Control, Digital Lockset in all units. Smart community features such as Visitor Invite and Facilities Booking Primary, secondary, and tertiary educational institutions within a 5-km radius of Sky Eden include: Fengshan Primary School (1.2km) Yu Neng Primary School (1.6km) Red Swastika School (1.7km) Bedok Green Secondary School (1.8km) Anglican High School (2.1km) Anthony’s Canossian Primary School (2.1km) Anthony’s Canossian Secondary School (2.2km) Bedok View Secondary School (2.3km) Bedok South Secondary School (2.6km) Damai Secondary School (2.8km) Opera Estate Primary School (3km) Temasek Secondary School (3km) Victoria School (3.2km) Singapore University of Technology and Design (SUTD)(4.3km) For parents with younger children, preschools, infant care and kindergarten are also within a 3-km radius from Sky Eden: MindChamps Preschool @ Bedon (2.5km) Rainbow Cove Preschool @ Upper East Coast (2.6km) Singapore Hokkien Huay Kuan Preschool (2.9km) Good Shepherd Convent Kindergarten (2.7km) Little Paddington Preschool (3km) Rainbow Cove Preschool @ Sennett (3.1km) Nearby healthcare facilities include: Central 24-hr Clinic (Bedok) AcuMed Medical Group Bedok Central Clinic Adding on to the convenience of residing in Sky Eden, residents get access to other nearby malls and shops such as: Bedok Mall Bedok Interchange Hawker Centre Djitsun Mall Sheng Shiong Bedok, FairPrice Bedok Central, and Bedok Hawker Centre are all located near the precinct, so residents get to enjoy quick options to stock up on daily necessities and to grab quick meals. Those who are open to venturing a little further out of the Sky Eden Bedok neighbourhood can take a short drive to check out other F&B options and popular cafes in Simpang Bedok, Siglap, Katong, and East Coast Park. Chempaka Development Pte Ltd is a subsidiary of Frasers Property Limited, a reputable developer with decades of experience in building and property development. To date, Frasers Property has developed more than 21,000 homes, 13 shopping malls, and 7 commercial projects in Singapore. Notable projects under them include Riviere Condominium, 8 @ Woodleigh, and 8@Mount Sophia. Sky Eden Bedok has already been launched for viewing and sale since September 2022. To book a showflat viewing and learn more about floor plans and selling prices, potential buyers can contact Sky Eden's official development team or listed agents. Sky Eden’s highly convenient location in the East of Singapore makes it a popular project amongst prospective homeowners and investors. This 99-year leasehold mix-use development with 12 commercial units and 158 residential units of two - to four-bedroom apartments sits on a site with a land area of approximately 44,526 sq ft. With a plot ratio of 3.5, the development is divided into core regions comprising the North and South residential tower, active zone, passive zone, quiet zone, and the sky garden. For a relatively smaller sized mix-use development project, Sky Eden Bedok presents an arguably wide range of facilities too. For those who wish to secure picturesque views of East Coast Park and the Bedok Skyline, be sure to opt for units on higher floors from the 12th storey and above. As a relatively well-developed mature estate, Bedok spots a wide selection of existing amenities ranging from a reservoir and parks to neighbourhood centres with plenty of eateries, retail stores, and healthcare facilities. Nonetheless, URA has upcoming plans to further boost Bedok to make it a more “liveable and pleasant housing environment”. Proposed new developments include: 4km long Outdoor Play Corridor for more seamless access to and fro Bedok Reservoir Park and East Coast Park. New 60-hectare Bayshore precinct in Bedok South; an upcoming lifestyle waterfront residential estate surrounded by lush greenery with walking and cycling paths. Future ITH at Bedok South Station Furthermore, the completion of the Thomson-East Coast Line (TEL) running through Bedok South (TE30) and Bayshore (TE29) in 2025 and 2024 respectively will provide residents with more public transport options. Further increasing connectivity between Bayshore, Bedok South and the upcoming ITH at Bedok South station, the TEL will further boost the investment potential of Sky Eden. Sky Eden is a mixed-use development housing 158 residential units and 12 commercial stores in a single 17-storey block. Units come in a mix of 2 to 4-bedroom configurations. As the first residential project launched in Bedok Town Centre after a decade, Sky Eden Bedok sold 75% of units on its launch day. The development’s Outside Central Region (OCR) location is strategically chosen to appeal to HDB upgraders who are driven by rising HDB resale prices and narrowing price gaps between public and private properties. Demand for properties like Sky Eden is further exacerbated by the strong demand for private non-landed houses from HDB upgraders and first-time home buyers amidst a lack of new supply in the OCR. The property is worth consideration given its accessible location in a mature estate. Strategically located within proximity to employment hubs in Changi and Paya Lebar, rentability and rental yield of Sky Eden has been proven strong by similar newer launches in the area. Check out Sky Eden Bedok and available Sky Eden listings for sale or rent on PropertyGuru Singapore.
View project details























