Parc Esta
912 Sims Avenue
S$ 1,250,000
Negotiable1
Bed
1
Bath
517
sqft
S$ 2,417.79
psf
370 m (5 mins) from EW7 Eunos MRT
About this property
High Floor with unblock view
- Overlooking the surrounding
Near MRT Station
- 2 mins' walk to Eunos MRT (EW7) Station
Surrounded by amenities
- Wet Market, Food Centre, Coffeeshops, etc.
- 1 MRT station away from Paya Lebar Quarter.
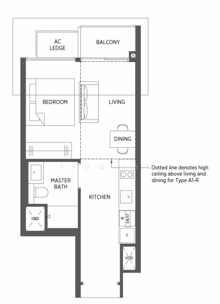
Living area
- Double ceiling in Living area that with potential to built Mezzanine floor
Amenities
Air conditioner
Balcony
Covered car parking
Security guard
Common facilities
Car park
Affordability
Tell us your monthly income and expenses to see if this home fits your budget.
Parc Esta

Parc Esta is a large-scale 99-year leasehold private condominium located along Sims Avenue within District 14 (Eunos/Geylang/Paya Lebar). Positioned at the eastern fringe of the city, the development benefits from a mature urban setting that combines strong public transport access with established residential and commercial infrastructure. Completed in 2022 by MCL Land (Everbright) Pte Ltd, Parc Esta comprises 1,399 residential units spread across nine 18-storey residential blocks. The project occupies an expansive land parcel of approximately 3.5 hectares (376,717 sq ft), which is notably large for a city-fringe development in this district. Beyond its residential components, the development also features five strata of commercial shops located within the estate, supporting limited day-to-day convenience. This level of rail access Parc Esta got is increasingly rare among significant private developments. It provides direct connectivity to the Central Business District (CBD), Paya Lebar Central, Jurong Lake District, and Changi Airport. The scale of the site allows for a fully gated estate with extensive internal landscaping, setting Parc Esta apart from smaller, higher-density city developments. A continuous 200-metre-plus garden and waterscape spine runs through the project, creating visual openness and separation between residential blocks. Most residential stacks are oriented along a north-south axis, reducing direct west sun exposure, a practical planning consideration that enhances long-term liveability rather than short-term visual appeal. These planning and connectivity advantages position Parc Esta as a large-scale, transport-led development where thoughtful design choices translate into tangible day-to-day comfort rather than headline-driven features. Parc Esta is located approximately two minutes’ walk from Eunos MRT Station (EW7), providing residents with fast and reliable access across Singapore’s east–west transport corridor. Bus services operating along Sims Avenue and Changi Road further supplement public transport options. For motorists, the development is well connected to major expressways, including the Pan Island Expressway (PIE) and Central Expressway (CTE). These routes enable efficient travel to key destinations, including the CBD, Orchard Road, Paya Lebar, Changi Business Park, and Changi Airport. The surrounding neighbourhood remains predominantly residential, with nearby sports facilities, parks, and community amenities contributing to a balanced urban environment. Parc Esta is thoughtfully equipped with an extensive suite of lifestyle facilities that cater to wellness, recreation, and social interaction, creating a balanced living environment for residents of all ages. Parc Esta Condominium 99-year Leasehold 14 2022 1,399 residential units 9 blocks, up to 18 storeys Facilities include: Body Massage Jets Foot Massage Jets Kids' Water Jets Grill & Dine Island Aqua Gym Outdoor Multi Gym 50m Lap pool Pool Pavilion Fitness Suite Parc Clubhouse Tennis Court Multipurpose Court Bars Steps Fitness Station Together, these facilities create a well-rounded residential environment that balances active living, leisure, and social interaction within a thoughtfully planned development. The Eunos and Paya Lebar area is served by a wide range of educational institutions across different levels: Geylang Methodist School (Primary) Kong Hwa School Broadrick Secondary School This breadth of educational options supports both local and expatriate households without reliance on long-distance travel. The surrounding Geylang area is known for its concentration of traditional eateries, casual restaurants, and hawker-style dining: Eunos Crescent Market and Food Centre OK Chicken Rice & Humul Laksa (Eunos) Loving Nature Fortunate Coffee Cafe SG This environment prioritises everyday affordability and variety rather than curated lifestyle dining. Residents also benefit from access to a range of nearby medical centres that cater to everyday healthcare needs and primary medical services: EC Family Clinic SingHealth Polyclinics - Eunos Healthwise Medical Clinic & Surgery Together, these facilities ensure reliable and convenient healthcare access within the surrounding neighbourhood. Daily shopping needs are well supported by a selection of nearby supermarkets and retail hubs within the surrounding area: FairPrice Xpress FairPrice Eunos Crescent Joo Chiat Complex Collectively, these options provide residents with convenient access to everyday essentials. Parc Esta occupies a large rectangular site along Sims Avenue, allowing for precise block spacing and internal landscaping. The nine residential blocks are arranged to maximise airflow and views while maintaining privacy between units. One-Bedroom: 420 - 624 sqft Two-Bedroom: 581 - 1,023 sqft Three-Bedroom: 904 - 1,119 sqft Four-Bedroom: 1,119 - 1,410 sqft Five-Bedroom: 1,399 - 1,604 sqft Selected larger units include additional features such as private lift access and study spaces. Parc Esta is developed by MCL Land (Everbright) Pte Ltd, a well-established developer with a strong focus on mid - to large-scale residential projects in Singapore. The Company regularly develops city-fringe and suburban properties with a focus on efficient, practical layouts, an adequate supply of amenities, and prices aligned with market value. If you are looking at purchasing properties from the same developer, you may want to check out these similar developments in terms of location and design: Leedon Green Piccadilly Grand Margaret Ville These alternatives provide additional reference points for evaluating design, scale, and lifestyle offerings within the broader residential market. The residential community of Parc Esta is situated among many established and new homes, both private and public, which give it a good neighbourhood character: Sims Urban Oasis TRE Residences The Geranium Collectively, these surrounding developments contribute to a well-established residential setting that reinforces Parc Esta’s neighbourhood appeal. Parc Esta is a large private condominium located near an MRT station (subway) in the East of Singapore. It has excellent transport links, a large size, and many facilities, but is not exclusive or boutique. Parc Esta is one of the more complete residential buildings for families that need to travel frequently, have good neighbourhood facilities and want to live there for many years in the future. Explore available sales and rental listings at Parc Esta to find a home that aligns with your space needs, lifestyle priorities, and long-term living plans. There are also commercial units in Parc Esta for sale and rental.
View project details

























