Marina Bay Residences
18 Marina Boulevard
S$ 7,814,400
Negotiable4
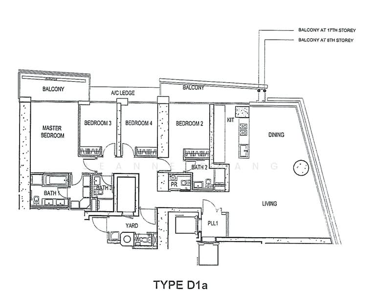
Beds
4
Baths
2,368
sqft
S$ 3,300
psf
180 m (2 mins) from DT17 Downtown MRT
About this property
Panaromic Bay and Sea View unit!
Full Marina bay view overlooking occasion fire works and Singapore Flyer
Very spacious living area to fit in good size furniture
Modern spacious 4 bedroom with full bay view
Spacious open concept kitchen
Minutes to Raffles Place MRT, Marina Bay MRT, MBFC etc
Linked Shopping Mall right below your Premise
Amenities
Air-conditioning
Balcony
Cooker hob/hood
Corner unit
Common facilities
Gymnasium room
Jacuzzi
Lap pool
Lounge
Affordability
Tell us your monthly income and expenses to see if this home fits your budget.
Marina Bay Residences
Marina Bay Residences is a 99-year leasehold private condominium located along Marina Boulevard within District 01, Singapore’s prime downtown core. Positioned directly within the Marina Bay Financial Centre precinct, the development forms part of Singapore’s earliest residential offerings integrated into the city’s financial district. Completed in 2010 by Keppel Land Ltd, Marina Bay Residences was developed by Keppel Land in partnership with Cheung Kong Holdings and Hongkong Land. The project comprises 428 residential units housed within a high-rise tower rising above a commercial podium, reflecting its role as a vertical residential component within a predominantly commercial zone. The project features apartment layouts ranging from one-bedroom to four-bedroom configurations as well as a limited number of penthouse units located on the upper floors. Its waterfront orientation along Marina Bay provides unobstructed views of the bay, the surrounding skyline, and downtown core landmarks. Marina Bay Residences derives its primary appeal from its direct integration with Singapore’s central business and financial district. Few residential developments offer comparable proximity to Grade A office towers, financial institutions, and corporate headquarters within walking distance. The waterfront frontage along Marina Bay provides long-term visual value, particularly for higher-floor units with views towards Marina Bay Sands and the downtown skyline. This positioning supports sustained rental demand from professionals and expatriates working within the Central Business District (CBD). Unlike resort-style or suburban developments, Marina Bay Residences prioritises location efficiency and urban accessibility over land-intensive recreational features. This functional planning approach aligns with its target resident profile rather than a lifestyle-led branding approach. Marina Bay Residences benefits from multi-line MRT connectivity within close walking distance. Residents have access to the Downtown MRT Station (DT17) on the Downtown Line as well as the Bayfront MRT Station (CE1/DT16), which connects the Circle Line and Downtown Line. This connectivity enables direct rail access to key areas such as Orchard Road, Bugis, Chinatown, and the wider Central Region. Pedestrian linkways further integrate the development with surrounding offices, retail podiums, and waterfront promenades. For drivers, Marina Boulevard provides immediate access to the downtown road network, supporting efficient travel within the city centre and towards major arterial routes. Facilities at Marina Bay Residences are designed to support high-rise urban living rather than extensive recreational programming. The residential tower is positioned above a shared podium structure, integrating residential use into a mixed-use urban environment. Marina Bay Residences Condominium 99-year Leasehold 01 2010 428 residential units The main facilities in the development Vine Pavilion Pool Deck Reflecting Pool Long Meadow Lap Pool Jacuzzi Children’s Pool Gym Function Room Zen Garden Tea Deck Lounge Play Area Spa Garden Water Garden Sunset Lounge Reading Terrace Tea Room KTV Rooms The facilities complement the development’s location-driven appeal rather than serving as its primary draw. The location is supported by access to several educational institutions within the surrounding districts, offering schooling options that are reachable from the development: River Valley Primary School School of the Arts (SOTA) Cantonment Primary School As such, Marina Bay Residences tends to appeal more strongly to professional households than to families with younger children. Residents have direct access to dining, retail, and entertainment offerings within Marina Bay Sands, Marina One, and surrounding hotel developments: LAVO Italian Restaurant And Rooftop Bar Blossom Restaurant JUMBO Signatures These venues provide residents with convenient access to everyday dining and premium lifestyle experiences, all within walking distance of the development. Healthcare services are readily accessible from Marina Bay Residences due to its central location: Raffles Medical Fullerton Health @ Ocean Financial Centre Singapore General Hospital All these are reachable within a short drive or direct public transport route, ensuring comprehensive medical coverage. Daily necessities are available at supermarkets and convenience stores located in nearby commercial developments. Cold Storage - Marina One Jason's Deli Marina Bay Sands FairPrice Chinatown Point These retail offerings cater primarily to working professionals and city centre residents seeking convenience. Marina Bay Residences occupies a vertically planned site along Marina Boulevard, reflecting land optimisation within the downtown core. One bedroom: 710 - 743 sq ft Two bedrooms: 1,055 - 1,227 sq ft Three bedrooms: 1,636 - 2,379 sq ft Four bedrooms: 2,368 - 4,435 sq ft Five bedrooms: 4,489 sq ft Overall, the development’s vertical integration, limited unit count, and well-defined unit mix underscore its positioning as a premium residential offering within Singapore’s downtown core. Keppel Land developed Marina Bay Residences in partnership with Cheung Kong Holdings and Hong Kong Land. Keppel Land is a major Singapore-based Build-Develop-Manage company with many large-scale residential and mixed-use developments throughout Singapore and Asia. The development strategy, location strategy and long-term positioning of Marina Bay Residences all reflect the combined experience of the consortium. Buyers considering Marina Bay Residences may also review other developments associated with the same developer or consortium, including: Reflections at Keppel Bay These projects provide comparative benchmarks across different districts. Marina Bay Residences is located within a tightly clustered residential enclave in Marina Bay. Nearby developments include: The Sail @ Marina Bay Marina Bay Suites Marina One Residences Together, these projects form the core residential supply within Singapore’s downtown waterfront district. Marina Bay Residences appeals to buyers and tenants seeking immediate access to Singapore’s financial core and a fully integrated downtown lifestyle. While Marina Bay Residences’ strengths lie in location, connectivity, and waterfront positioning, rather than estate size and recreational opportunities, it offers many established long-term rental options for those working near it as well as those who live in the CBD, making it one of the premier places to live within District 01. Explore available sales and rental listings at Marina Bay Residences to evaluate current pricing, unit availability, and layout options within Singapore’s downtown core.
View project details













