Eco Sanctuary
65 Chestnut Avenue
S$ 4,500 /mo
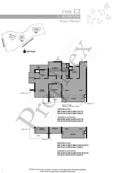
3
Beds
2
Baths
990
sqft (floor)
1 km (12 mins) from BP8 Pending LRT
Ready to move in Condominium
About this property
Full furnished beautiful 3-bedder whole unit for rent, open to student
* Ideal for families, working professionals and students
* Well-maintained unit in move-in condition
* Bedrooms equipped with super single bed (LL open for discussion)
* Fully air-conditioned bedrooms as well as living and dining areas
* Beautiful, open views enjoyed from the master bedroom,
common bedroom, kitchen, and balcony
* Efficient and practical layout that allows easy furniture placement
* Bright and breezy home with excellent ventilation and good privacy
* Full furnished with essential white goods including washer, hob, hood, and fridge
* Full condominium facilities such as clubhouse, gym, swimming pool, tennis courts, BBQ pits, and sky gardens with spa
* Surrounded by nature and conveniences including Chestnut Nature Park, Dairy Farm Mall, Bukit Panjang MRT, Hillview MRT, Pending LRT, and German European International School
* Available immediately (Preferably 2-year lease)
* Reasonable and friendly owner open to discussion
Contact Nicholas (Ah Chiu) for viewing appt now! Key on hand
Amenities
Air conditioner
Balcony
Bed
Covered car parking
Common facilities
Car park
Eco Sanctuary

Eco Sanctuary is a leasehold based condominium located in the upscale suburbs of 61-65 Chestnut Avenue in District 23. The building was developed in 2016 by the internationally acclaimed developer �SP Setia International (S) Pte Ltd�. With a 99-year leasehold and high land appropriation rate, the Eco Sanctuary @ Chestnut Avenue is one of the most coveted places in the region.Eco Sanctuary is embellished with eye-catching cascading planter wall and a water gateway that contributes to its charm. Various types of pool in the vicinity include a leisure pool, splash pool, jet pool and lap pool. For relaxation, residents can use the Sunning deck, bubbling water area, Island Club steam room, and meditation path. With the presence of Chrysalis Pavilion, Bird Swing Pavilion, Lotus Creek, Butterfly Trail, Bird Song Pavillion, Bio Pond, Lawn Bowl, Butterfly gate, Sunbird Walk and Dragonfly Path, you will wake up to a mesmerizing vista. Apart from that, there are in-house reading room, entertainment room, and function room to escalate your living experience.Eco Sanctuary resides close to the Petir Road and The Chestnut Avenue that efficiently connect to Bukit Timah Expressway and Bukit Panjang Road, allowing you to travel anywhere in the city.MRT stations close to ECO SANCTUARY:The building also lies within a 500 m distance from the followings;Cashew MRT StationHillview MRT StationThe Bukit Panjang MRT StationThe presence of these nearby stations will make it easier for you and your family to travel. Other modes of transport include Buses and taxis.Eco Sanctuary comes with a myriad of in-house facilities such as Children�s playground, tennis court, a multi-purpose court, a gymnasium, picnic lawn, covered car parking, Barbeque joint and a 24X7-security service. Attractive places such Night Safari Zoo, Singapore Zoo, Bonsai Garden, Treehouse Pavilion, Science Centre Singapore and Bukit Timah Nature Reserve located within a radius of 2km to 14.4 km from Eco Sanctuary Condominium.Nearby classy restaurants offering exotic cuisines are:Au Jardin Les Amis RestaurantKuro Kin RestaurantUlu Ulu Safari RestaurantRiders CafeTenryu Japanese DiningShopping Complex nearby the building includes:Beauty World CentreBukit Timah PlazaNex Shopping MallGreenridge Shopping CentreBukit Panjang PlazaPopular Schools located within a 3km radius from Eco Sanctuary Condominium are:St. Francis Methodist SchoolGerman European School SingaporeHollandse SchoolBukit Panjang Primary SchoolChij Our Lady Queen Of PeaceZhenghua Primary SchoolNow it boils down the fact that Eco Sanctuary can prove to be the perfect place for staying owing to its close presence to all types of schools, MRT stations, hospitals and shopping areas.Eco Sanctuary Condominium is a high-rise luxury condominium covering a residential capacity of 483 units. The building includes various types of built-up models, catering the needs of every buyer. The smallest unit starts with an area of 506 sqft that includes one bedroom and one bathroom. The area with 657 sqft comes with one bedroom and two bathrooms. Residential flats covering the size of 667 sqft and 700 sqft contains two bedrooms and two bathrooms. Properties with an area size of 732 sqft and 753 sqft come with both two bedrooms with two bathrooms and three bedrooms with two bathrooms. Residential flats covering a space of 775 sqft includes two bedrooms and two bathrooms. Both 980 sqft and 990 sqft flats come with three bedrooms and two bathrooms. Large units covering an area of 1141 sqft and 1163 sqft comes with three bedrooms and three bathrooms. For large families, the 1163 sqft model with four bedrooms and three bathrooms will be ideal. The units have been built on a strategy to make room for outside air and sunshine.Eco Sanctuary23 (Bukit Batok, Choa Chu Kang)483 apartment unitsOne Bedroom + One BathroomOne Bedroom + Two BathroomsTwo Bedrooms + Two BathroomsThree Bedrooms + Two BathroomsThree Bedrooms + Three BathroomsFour Bedrooms + Three BathroomsThe following developments are in the same neighbourhood as ECO SANCTUARYTree HouseForesque ResidencesChestervaleThe SkywoodsGreen Hill Estate
View project details




















