Kent Ridge Hill Residences: 7 Units for Sale
Refining your recommendations.
This may take a few seconds...
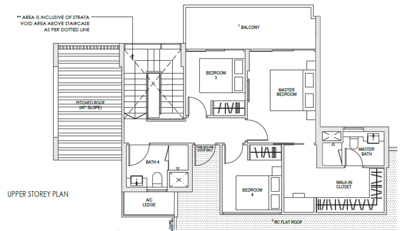
Kent Ridge Hill Residences is a 99-year leasehold condominium located along South Buona Vista Road in District 5, 118171, Singapore. The 320,000 sqft project site was previously occupied by Vista Park Apartments before being sold to Oxley Holdings Limited, the project’s current developer. Kent Ridge Hill Residences comprises 498 condominium units and 50 strata landed properties, totaling 548 residential units. The landed terraces and condominiums, spread across a series of 5-storey blocks, will be available in layouts ranging between 1 to 5-bedrooms, and is expected to be completed in 2024. Oxley Holdings Limited are a highly established, Singapore-based real estate developer with a diverse portfolio of residential, commercial, and industrial projects located across prime locations in Singapore and beyond. Their extensive portfolio includes over 60 completed projects to date in locations that span the globe, including but not limited to China, Indonesia, the United Kingdom, Cyprus, and Cambodia. The organization holds a reputation for maintaining a high standard of excellence and innovative, elegant designs reflected in their previous projects. Kent Ridge Hill Residences is located along the West Coast, serving as an attractive residential neighbourhood due to its peaceful and laidback atmosphere away from downtown Singapore. Various beautifully-landscaped parks dot the surrounding landscape, including Kent Ridge Park and West Coast Park. The residence is located close to several international schools and the National University of Singapore campus. A small but well-equipped number of malls are located in the vicinity, while cafes and restaurants of all types and cuisines can be found throughout the neighbourhood. Additionally, Kent Ridge Hill Residences offers a wide range of facilities, including a swimming pool and pool deck, tennis courts, jogging track, gymnasium, BBQ area, clubhouse, and function room. The compound will be gated and monitored by 24-hour security. Kent Ridge Hill Residences is located a 10-minute walk away from Pasir Panjang MRT station (Circle Line). Multiple bus stops can be found along South Buona Vista road and Pasir Panjang Road, around a 5-minute walk away and providing direct links to nearby train stations and the city centre. The residence is located just off the West Coast Highway, providing drivers with efficient access to the rest of the city. Drivers heading to the international business district can take South Buona Vista Road and expect to reach within approximately 15 minutes, or to the Orchard Road shopping district within 20 minutes via the Ayer Rajah Expressway (AYE). BarrelsRock n’ DropCurry Village International School Singapore (ISS)Global Indian International School Singapore (GIIS)Springwood High School Healthplus Family Clinic & SurgeryAlexandra HospitalNational University Hospital Viva Vista Shopping MallThe OasisAlexandra Retail Centre Kent Ridge Hill Residences is a 99-year leasehold condominium project. The project will consist of eleven blocks of low-rise 5-storey condominium blocks with around 480 condominium units, and an additional 50 units of strata landed terraces. Current estimated sales prices for this residence range between S$ 760,000 to S$ 3,1250,000, depending on unit layout and size. Project Name: Kent Ridge Hill ResidencesType: 99-year Leasehold CondominiumDistrict: 05 Unit Types:1-bedroom (474 - 646 sqft)2-bedroom (646 - 904 sqft)3-bedroom (883 - 1,442 sqft)4-bedroom Penthouse (1,518 - 1,927 sqft)5-bedroom Penthouse (1,776 - 1,787 sqft)Strata Landed 4-bedroom (1,830 sqft)Strata Landed 5-bedroom (2,067 sqft) The following projects are by the same developer as Kent Ridge Hill Residences:Mayfair GardensParkwood ResidencesThe Verandah Residences The following developments are in the same neighbourhood as Kent Ridge Hill Residences:Parc ClematisParc RivieraKent Ridge Hill ResidencesWhistler GrandThe RochesterOne-North Residences
DeveloperOxley Holdings Limited






















