Urban Lofts - 13 Units for Sale
Refining your recommendations.
This may take a few seconds...
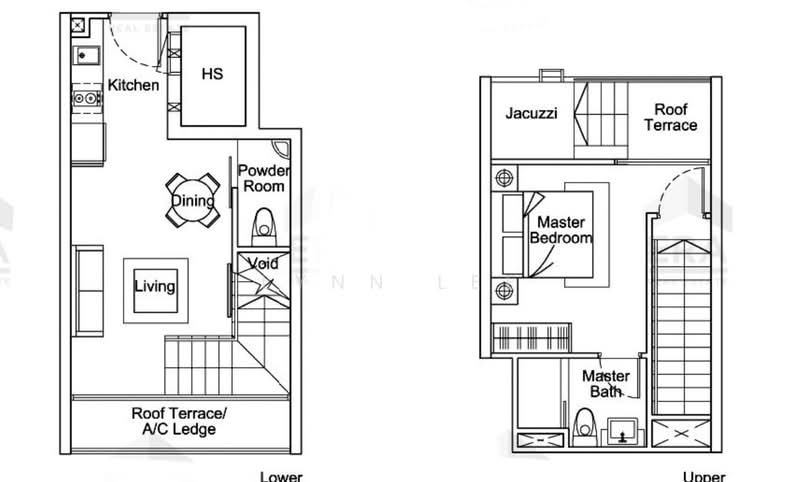
The Urban Lofts is a condominium development project that is located in District 8 in Singapore. The Urban Lofts offers freehold tenure to its tenants. One of the greatest advantage that the residents of Urban Lofts can make use of is its extremely high accessibility. There is a lot of bus stop surrounding the development and three MRT stations that are within close proximity of the development. Furthermore, the Urban Lofts is suitable for a growing family to live in because it is located close to a number of schools in the area. The Urban Lofts development project was completed quite recently in the year of 2011 and it was developed by Ascender Capital Pte Ltd. Ascender Capital Pte Ltd is an exempt private company limited by shares and they were incorporated in the year of 2007 in Singapore. Their principal business activity is other holding companies with real estate developers as their secondary activity. The Urban Lofts provides basic condominium facilities to its residents. First of all, the development provides a car park for the vehicle owners and the car park is located in the basement to protect them from the rain and sun. There is a swimming pool provided by the development for the residents who enjoy swimming during their free time. There is also a Jacuzzi for the residents to take some time off and take a nice, relaxing water jet massage. Apart from this, there is a pool deck for the residents to chill and relax. There is also a BBQ area for the residents to have nice time of bonding with friends and families over some good old BBQ. Last but not least, there is a gymnasium room available to help the residents keep themselves in shape. Having relatively high levels of accessibility is one of Urban Lofts’s strongest selling points as well. There is a lot of bus stations located within the vicinity of the development project and it is highly convenient for those who often uses the bus to travel around. The nearest bus stop is located at Kentish Lodge which is only about 260 metres and 3 minutes of walking distance away from the development. The nearest MRT station that is within walking distance from the development is the Farrer Park MRT Station which is located only about 250 metres and 3 minutes of walking distance away from the development. The second nearest MRT station is the Little India MRT station which is located only about 1.17 kilometres and 16 minutes of walking distance away from the development. Another MRT station that is also within walking distance is the Jalan Besar MRT station. As for vehicle owners, the Urban Lofts is accessible via some of the major roads and highways such as the CTE, Serangoon Road and Jalan Besar. A One RestaurantNg Ah Sio Bak Kut TehCopper ChimneyLam’s NoodleMOE Kindergarten @ Farrer ParkKhalsa KindergartenDayanand Anglo-Vedic SchoolLearning Tree Tuition CentrePoisson PharmaFarrer Park PharmacyLau Yau Shiong & Co Pte LtdChantel EnterprisesCity Square MallJalan Besar PlazaSaravana Stores Pte LtdDasie Bhai Mini Mart Pte LtdU Stars Supermarket @ 211Rowell Minimart The Urban Lofts is a condominium development project that offers freehold tenure to its residents and it comprises a total number of 50 residential units. The development is located along Serangoon Road, 218375, City & South West (D01-08). The selling price for each unit in Urban Lofts ranges from SGD850K to SGD1.5mil. Project Name: Urban LoftsDistrict: 8Configuration: 50 residential units Unit types:1 bedroom and 1 bath1 bedroom and 2 baths2 bedrooms and 1 bath2 bedrooms and 2 baths3 bedrooms and 2 baths The following development projects are in the same neighbourhood as Urban Lofts:CitylightsKerrisdaleCity Square ResidencesCavan SuitesForte SuitesCityscape at Farrer Park
DeveloperAscender Capital Pte Ltd











