Lynnsville 331 - 1 Units for Sale
Refining your recommendations.
This may take a few seconds...
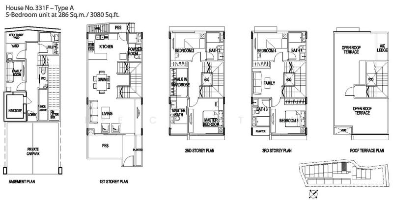
Completed in year 2009, Lynnsville 331 was developed in a freehold cluster house land and comprises of 19 exclusive units in District 5. Within the area are the National University of Singapore (NUS), calmness greenery of West Coast Park and more. A peaceful locale where one can have recreation on a shady afternoon is a place that everyone could be calling a home. These terraced houses have many amenities nearby. The educational hub which consists of National University and National University of Singapore are just located very closely. Spoil the day through a great deal of lifestyles avenues such as the Jambol Place Park, Transview Golf & Country Club, Kent Ridge Park etc. Kim Leong Development Pte Ltd is the developer for Lynnsville 331, it is a private company limited by share established in year 1983 in Singapore. its business activities include bank or financial holding companies with real estate developers. The extravagant residential property is a new staycation away from the noise of the city. It can be one of the homes where everyone can experience the feeling of being holiday whenever you are staying there. With the luxuries upon stepping into its stunning exterior, ready to be amze with how delightful the houses can be. Its lavish facilities are ready to accommodate one’s needs daily matching with the beautiful layout the structure presents. Upon staying in Lynnsville, ready yourself with laid back sessions with utmost comfort, the outside of the development is a series of attractive shopping malls, reputable institutions and exciting amusement sites to looking forward to. Located at the Pasir Panjang Road in District 5 near West Coast MRT Station, residents staying here can get away from buzz of city yet near to numerous amenities and work place that matters. Lynnsville 331 is accessible through the Kent Ridge , Haw Par Villa and One North MRT Stations. These MRT Stations are in the Circle line in Queenstown of Singapore. There are public transport that are also readily available to take residents to all around the island. Residents who has a vehicle can easily access to many places in Singapore through the West Coast Road, Pasir Panjang Road and the Ayer Rajah Expressway. VS CaféAmbrosial F & B (S) Pte. LtdReedz Café @ SP2Sin Thor Eunos MRT Bak Kut TheEight Immortals VegeratianPrive Grill @ The University ClubJu Shin Jung Korean Charcoal BBQBUSS - The Scholar Pearlbank KindergartenLittle Blessings KindergartenInnate MintessoriInstitute Of High Performance ComputingUnited World College of South East Asia (Dover)Dover Court Preparatory SchoolTanglin Trust SchoolFairfield Methodist School (Primary)New Town Primary SchoolPei Tong Primary School National University HospitalNuh Medical CentreFusion dentalUFIT One-NorthProfessional HypnotherapyBL Medical Associates Pte Ltd Viva Vista MallIcon@Pasir PanjangThe OasisSheng Siong This 3 storeys cluster terrace Housing development consists of 19 units. Lynnsville 331 is built on a freehold land with a built up of around 3,455 sqft. Each unit comprises with 2 wide car park lots. There are also facilities such as swimming pool, Spa room, Jacuzzi, function room, clubhouse, tennis court, bbq pits, children’s playground, and 24 hours security. Project Name: Lynnsville 331District: 5of Units: 19 unitsTenure: Freehold Unit types for Lynnsville 331:5 bedrooms (2,917 – 3,455 sqft) The following developments are in the same neighbourhood as Lynnsville 331:Parc ClematisParc RivieraKent Ridge Hill ResidencesWhistler GrandThe RochesterOne-North Residences
DeveloperKim Leong Development Pte Ltd

















