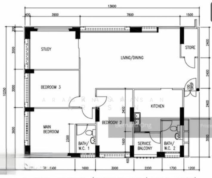
744 Pasir Ris Street 71 - 2 Units for Sale
Map View
We’ve shown you all the matches
Almost there!
Refining your recommendations.
This may take a few seconds...
744 Pasir Ris Street 71
744 Pasir Ris Street 71 510744(D18) Pasir Ris / Tampines
Summary
744 Pasir Ris Street 71
Read more
Project details
TypeHDB
PriceS$ 720K - 739K
Completion year1994
Tenure99-year Leasehold
No. of blocks1
No. of floors16
DeveloperHousing & Development Board (HDB)
Explore PropertyGuru
Properties by ownership























