692B Choa Chu Kang Crescent - 5 Units for Sale
Map View
We’ve shown you all the matches
Almost there!
Refining your recommendations.
This may take a few seconds...
692B Choa Chu Kang Crescent
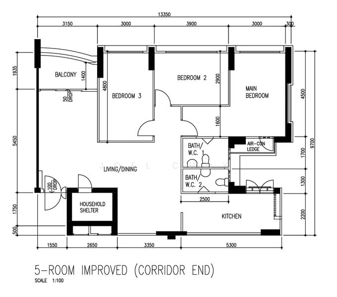
692B Choa Chu Kang Crescent 682692(D23) Dairy Farm / Bukit Panjang / Choa Chu Kang
Summary
692B Choa Chu Kang Crescent
Read more
Project details
TypeHDB
PriceS$ 518K - 600K
Completion year2001
Tenure99-year Leasehold
No. of blocks1
No. of floors24
DeveloperHousing & Development Board (HDB)
Explore PropertyGuru
Properties by ownership
























