688A Choa Chu Kang Drive - 3 Units for Sale
Map View
We’ve shown you all the matches
Almost there!
Refining your recommendations.
This may take a few seconds...
688A Choa Chu Kang Drive
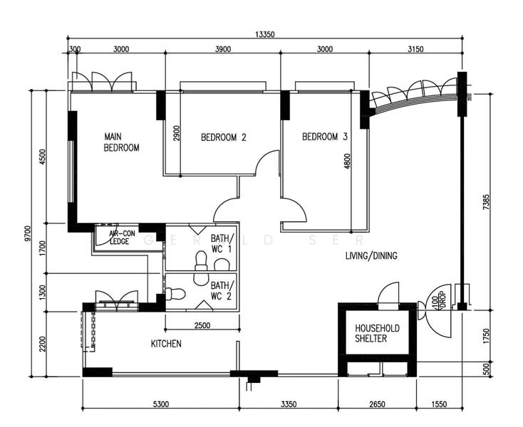
688A Choa Chu Kang Drive 681688(D23) Dairy Farm / Bukit Panjang / Choa Chu Kang
Summary
688A Choa Chu Kang Drive
Read more
Project details
TypeHDB
PriceS$ 615K - 650K
Completion year2000
Tenure99-year Leasehold
No. of blocks1
No. of floors20
DeveloperHousing & Development Board (HDB)
Explore PropertyGuru
Properties by ownership

















