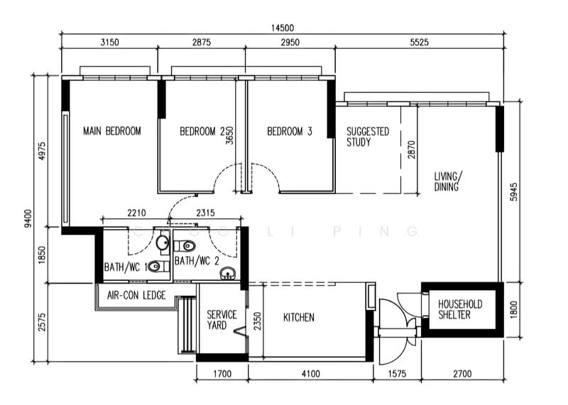
659A Punggol East - 1 Units for Sale
Map View
We’ve shown you all the matches
Almost there!
Refining your recommendations.
This may take a few seconds...
659A Punggol East
659A Punggol East 821659(D19) Hougang / Punggol / Sengkang
Project details
TypeHDB
Completion year2018
Tenure99-year Leasehold
No. of blocks1
Top facilities
Car park
DeveloperHousing & Development Board (HDB)
Explore PropertyGuru
Properties by ownership









