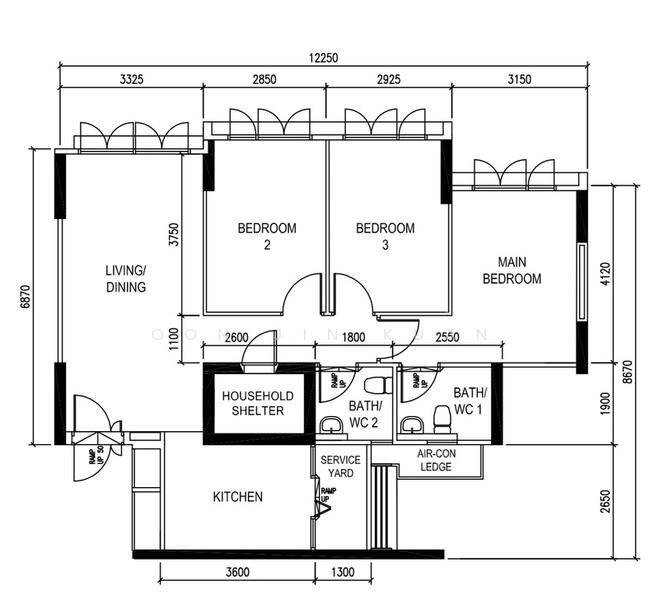
547A Segar Road - 9 Units for Sale
Map View
We’ve shown you all the matches
Almost there!
Refining your recommendations.
This may take a few seconds...
547A Segar Road
547A Segar Road 671547(D23) Dairy Farm / Bukit Panjang / Choa Chu Kang
Project details
TypeHDB
PriceS$ 628K - 750K
Completion year2014
Tenure99-year Leasehold
No. of blocks1
No. of floors17
Total units92
Top facilities
Car park
Multi-storey car park
DeveloperHousing & Development Board (HDB)
Explore PropertyGuru
Properties by ownership


















