468A Admiralty Drive - 1 Units for Sale
Map View
We’ve shown you all the matches
Almost there!
Refining your recommendations.
This may take a few seconds...
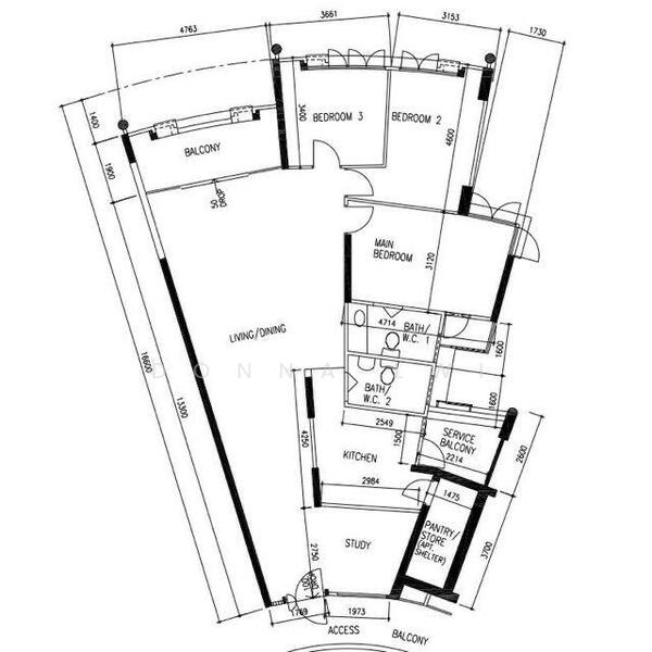
468A Admiralty Drive
468A Admiralty Drive 751468(D27) Sembawang / Yishun
Summary
468A Admiralty Drive
Read more
Project details
TypeHDB
PriceS$ 670K - 729K
Completion year1999
Tenure99-year Leasehold
No. of blocks1
No. of floors16
DeveloperHousing & Development Board (HDB)
Explore PropertyGuru
Properties by ownership
Properties by furnishing
Properties by price per sqft.
Properties by year constructed

















