431 Clementi Avenue 3 - 1 Units for Sale
Map View
We’ve shown you all the matches
Almost there!
Refining your recommendations.
This may take a few seconds...
431 Clementi Avenue 3
431 Clementi Avenue 3 120431(D05) Buona Vista / West Coast / Clementi New Town
Summary
431 Clementi Avenue 3
Read more
Project details
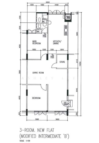
TypeHDB
PriceS$ 560K - 2.1M
Completion year1978
Tenure99-year Leasehold
No. of blocks1
No. of floors4
DeveloperHousing & Development Board (HDB)
Explore PropertyGuru
Properties by ownership





