23 Balam Road - 2 Units for Sale
Map View
We’ve shown you all the matches
Almost there!
Refining your recommendations.
This may take a few seconds...
23 Balam Road
23 Balam Road 370023(D13) Macpherson / Potong Pasir
Summary
23 Balam Road
Read more
Project details
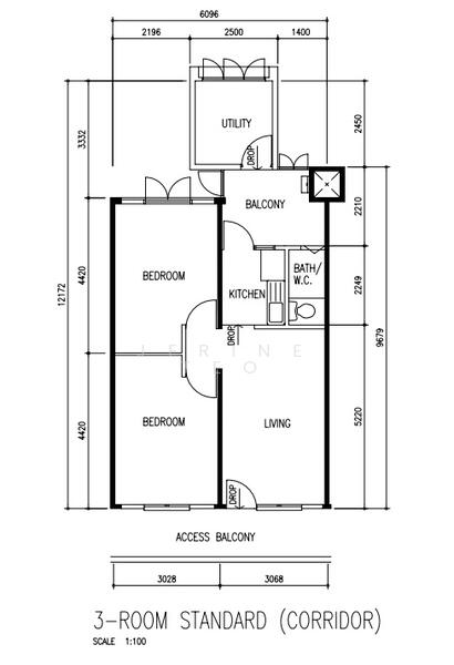
TypeHDB
Completion year1965
Tenure99-year Leasehold
No. of blocks1
No. of floors10
DeveloperHousing & Development Board (HDB)
Explore PropertyGuru
Properties by ownership













