169 Bukit Batok West Avenue 8 - 4 Units for Sale
Map View
We’ve shown you all the matches
Almost there!
Refining your recommendations.
This may take a few seconds...
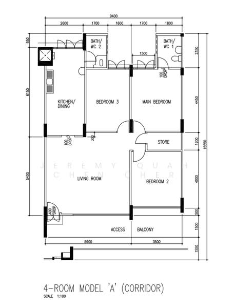
169 Bukit Batok West Avenue 8
169 Bukit Batok West Avenue 8 650169(D23) Dairy Farm / Bukit Panjang / Choa Chu Kang
Summary
169 Bukit Batok West Avenue 8
Read more
Project details
TypeHDB
PriceS$ 428K - 555K
Completion year1984
Tenure99-year Leasehold
No. of blocks1
No. of floors12
DeveloperHousing & Development Board (HDB)
Explore PropertyGuru
Properties by ownership























