Penrose - 13 Units for Rent
Refining your recommendations.
This may take a few seconds...
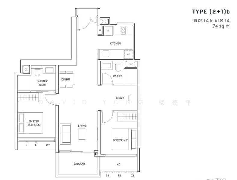
Penrose is a renowned condominium situated at 20 Sims Drive, Singapore 387395, in the highly sought-after District 14. This 99-year leasehold development, brought to life by NovaSims Development Pte Ltd, a joint venture between Hong Leong Holdings Limited and City Developments Limited (CDL), completed in 2025, comprises 566 residential units. It offers a diverse unit type, including one to four-bedroom apartments, catering to various residential preferences, including a swimming pool, gym, clubhouse, and children's play area. Further on, there will be a basement car park and other communal amenities.Penrose is located in District 14. This district is ideally placed for exposure to the Central Business District, major expressways, and other connectivity options. The condominium has world-class facilities such as swimming pools, fitness clubs, and Smart Home technology, enhancing the living conditions.In addition, proximity to Aljunied MRT station(EW9) (900 m)and being at the city's fringe gives it the required push. Penrose stands apart as one of its blends of luxury, modern life, comfort, and convenience. The integration of its surroundings with the building makes it suitable for families and sports enthusiasts since the Paya Lebar precinct, East Coast Park, and the Kallang Alive section easily access it. The design and the lovely colour scheme set it apart from other modern architectural masterpieces.Penrose is ideally located for unbeatable ease of access, providing easy access to public transport and major roads. The residents can easily access Aljunied MRT station(EW9) within a six minute walk. For those who drive, Penrose is well connected to major expressways, ensuring smooth commutes to key destinations such as the Central Business District.The average travel time to the city centre is about 10 minutes by car, which underlines its strategic location. This vibrancy of the neighbourhood adds to its appeal. Some attractions within its reach include East Coast Park, the Kallang Alive section, and several shopping centres like Paya Lebar Square and PLQ Mall.Penrose is designed to offer a range of facilities catering to diverse lifestyle needs in a holistic living environment. The development comprises:A swimming pool for relaxation and recreationA fully equipped gymnasiumA clubhouse for social gatheringsA children's play areaBBQ pits for outdoor diningA fitness corner for exercise enthusiastsA function room for eventsA games room for entertainmentA jet pool and lap pool for aquatic activitiesA library for quiet readingOutdoor dining spacesA pavilion and pool deckSecurity services for peace of mindA spa pavilion for relaxationCourt for playing tennisWater feature, also a waterfall, improving the sceneryThese facilities are carefully selected to encourage residents to unwind, get fit, and vandalise with fellow residents amidst quietness, as the lifestyle is aligned with nature.Families living in Penrose enjoy easy access to the following schools near their homes:James Cook University SingaporeGeylang Methodist School (Primary and Secondary)Kong Hwa SchoolThe medical facilities within reach are:Sims Drive Medical ClinicThe Family Clinic (Geylang)Parkway East HospitalThere is a variety of eateries around Penrose. These include:- Sims Vista Market & Food Centre- Haig Road Market & Cooked Food Centre- Old Airport Road Food CentreA small radius is covered by supermarkets, such as:Giant (Joo Chiat Complex)U Stars SupermarketPaya Lebar SquarePenrose owns an excellent location at 20 Sims Drive, District 14. The project, with a considerable site area, is architecturally outstanding and will reach a height of around 18 storeys. The design will flawlessly combine the feel of urban grace with the peacefulness of nature. Sleek facades and landscaping complement its contemporary character.: Penrose: Condominium: 14: 566 residential units Penrose features different unit types, such as one-bedroom, two-bedroom, three-bedroom, and four-bedroom apartments. These units are designed to maximise space and natural light while boasting modern kitchens and spacious living areas.Developed by NovaSims Development Pte Ltd, a collaboration between two leading real estate developers: Hong Leong Holdings Limited and City Developments Limited, or CDL. This partnership blends local expertise with international experience, ensuring the development maintains the highest luxury and construction quality standards. Hong Leong Holdings is renowned for its commitment to delivering innovative and high-quality residential projects in Singapore. At the same time, CDL's extensive global presence adds a wealth of knowledge in creating exceptional properties across diverse markets.Highly rated in terms of reliability and quality in the real estate industry, both Hong Leong Holdings and CDL guarantee that Penrose would be developed for sustainability to produce high-quality results, establishing it as an asset for value appreciation and attraction. Through this collaboration, Penrose would be a testament to excellent craftsmanship, and its residents, rather than being homebuyers, will be given a lifetime investment in a superior location with guaranteed quality and fine detailing.Other projects in the pipeline include:The JovellThe MeyeriseCoco PalmsOther prominent residential developments within the Penrose neighbourhood contribute to the community environment. These nearby projects include:Park Place Residences at PLQGuillemard EdgeKatong RegencyPenrose allows buyers to look for luxurious accommodation in the city-state of Singapore. The condominium is strategically located in District 14 to ensure easy access to major transport routes and key destinations, and its state-of-the-art amenities cater to every aspect of modern living. Leisure and wellness facilities for residents include swimming pools, a gym, and other features of Smart Home technology that aim to provide a comfortable, connected life. The well-designed units make the most of natural light and space, creating an inviting and stylish environment.Penrose is one of the top choices for discerning homebuyers, as it perfectly blends convenience, luxury, and modern living. It will surely be a sought-after address in Singapore for years to come.Discover the options for renting or buying at Penrose through the Penrose for Sale Page or Penrose for Rent listings.
DeveloperCDL & Hong Leong Group




















