Leedon Residence - 8 Units for Rent
Refining your recommendations.
This may take a few seconds...
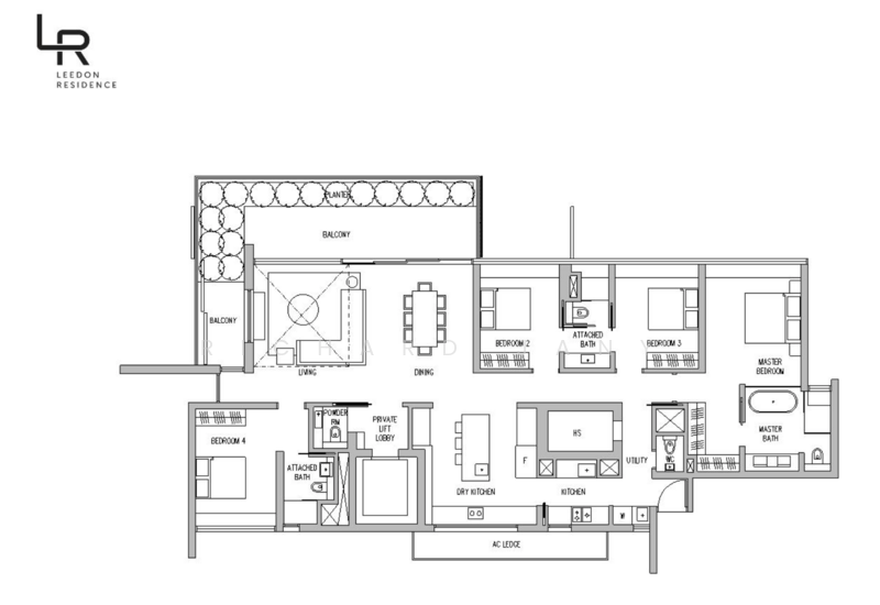
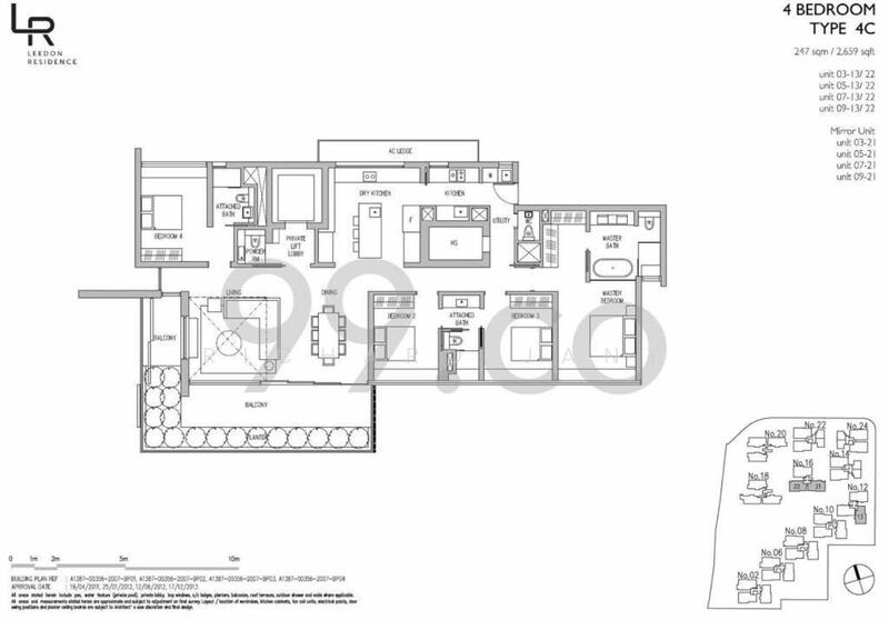
Leedon ResidenceSituated in District 10, on the doorstep of Holland Village, Leedon Residence is one of the biggest freehold developments in the region. Its 381 residential units are split over eleven 12 storey towers that overlook the Leedon Park Good Class Bungalow enclave. They have a wide range of options when it comes to unit type, with 2, 3, 4 and 5 bed apartments, plus 3, 4 and 5 bed garden suites, 3 and 4 bed sky suites and 2 different penthouse configurations. With Farrer Park a 5 minute walk away, giving access to Botanic Gardens, Holland Village and the City itself, Leedon Residence is also very convenient for commuters and foodies alike.Leedon Residence is developed by GuocoLand Limited (GuocoLand), who along with its subsidiaries, are primarily involved in property development, hotel operations, property management and property investment. They have an established property operation in their geographical markets of Singapore, Malaysia, China and Vietnam, comprising residential, commercial, retail developments and hospitality.Leedon Residence – Unique Selling PointsLeedon Residence has a lot going for it. First of all, it is one of the biggest freehold residential developments in the whole of District 10. Its location adjacent to the Leedon Park Good Class Bungalow enclave pays testimony to the area, and means that it is not surrounded by high rise blocks. Leedon Residence also received the BCA Green Mark GoldPlus Award for its energy effective features.Leedon Residence – AccessibilityThe nearest MRT to Leedon Residences is Farrer Road on the Circle Line which is about a 5 minute walk away. From there, Holland Village is 1 stop, with its wining and dining options, while in the other direction, also 1 stop away, is Botanic Garden MRT, giving access to the Downtown Line. Commuters can get to the CBD in less than half an hour. As well as Holland Village, Dempsey Hill is also only a short distance away, and gives many more dining options. For Leedon Residence residents who prefer to drive, Queensway is very close by, which leads on to Bukit Timah Road and the PIE and AYE. Orchard Road is a 5 minute drive away.Leedon Residence - Amenities & AttractionsDining near Leedon Residence:Mai ThaiSamy’s CurryJim ThompsonEl PatioShopping near Leedon Residence:Holland Road Shopping CentreCoronation PlazaOrchard RoadSchools and Education near Leedon Residence:St Margaret’s Secondary SchoolRaffles Girls Primary SchoolQueenstown Primary SchoolNational Junior CollegeLeedon Residence- Project informationLeedon Residence is a residential development located in District 10 along Leedon Heights near a Good Class Bungalow enclave. It is comprised of eleven 12 storey blocks and has 381 units in total. Those units come in many different configurations, from the familiar 2, 3, 4 and 5 bed options to the garden and sky suites and the penthouses. Facilities at Leedon Residence include a 50 metre lap pool, a 200 metre nature trail, tennis courts and gymnasium.Project Name: Leedon ResidenceAddress: Leedon HeightsSite area: Approx. 522,326 sqftTenure: FreeholdDistrict: 10Configuration: 381 unitsUnit types:2-bedroom units (1,044 sqft)3-bedroom units (2,088 – 2,131 sqft)3-bedroom + study units (2,088 sqft)4-bedroom units (2,486 – 2,669 sqft)5-bedroom units (4,704 sqft)Garden suites 3-bedroom + study units (3,789 – 4,047 sqft)Garden suites 4-bedroom units (3,401 – 5,285 sqft)Garden suites 5-bedroom units (6,566 – 8,051 sqft)Sky suites 3-bedroom + study units (3,283 sqft)Sky suites 4-bedroom units (3,617 – 3,767 sqft)Penthouse units (5,694 – 6,125 sqft)Penthouse w private lift units (7,007 – 7,718 sqft)Maintenance fees: Approx. $492 to $1,312Parking lots: Approx. 600 lotsTOP: 2015Expected legal completion: December 2019Leedon Residence - Historical DataBy February 2016, the number of caveated transactions for Leedon Residence stood at 223. The recorded transaction prices for those sales ranged from $2.19M to about $14.8M, with approximately 65 percent of the transactions coming in at approximately $5M or below. Just 7 sales at Leedon Residence were registered above the $8M mark.With regards to median prices for those figures, those for the 2 bed units were $2,287 psf, the 3 beds $1,918 psf and the 4 bed units were at $1,906 psf. The garden suites were at $1,675 psf, $1,646 psf and $1,524 psf for the 3, 4 and 5 bed suites respectively. Finally the median price for the penthouse with private lift was $2,085 psf.Leedon Residence - Related ProjectsThe following projects are by the same developer as Leedon Residence:Martin ModernThe QuartzAquarius By The ParkLeedon Residence - Nearby ProjectsThe following developments are in the same neighbourhood as Leedon Residence:Pollen & BleuCharming GardenSpanish Villaged'LeedonSommerville Grandeur
DeveloperGuocoland Group




















































