815B Choa Chu Kang Avenue 7 - 3 Units for Rent
Map View
We’ve shown you all the matches
Almost there!
Refining your recommendations.
This may take a few seconds...
815B Choa Chu Kang Avenue 7
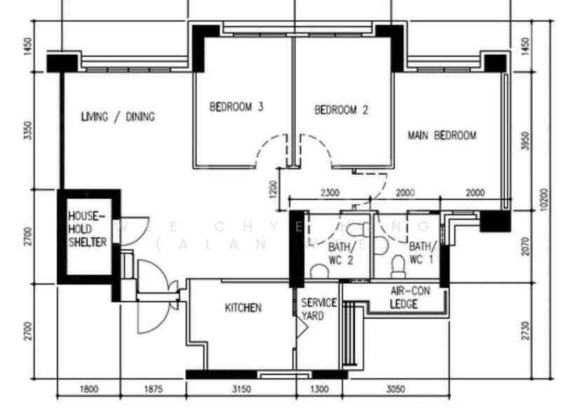
815B Choa Chu Kang Avenue 7 682815(D23) Dairy Farm / Bukit Panjang / Choa Chu Kang
Project details
TypeHDB
PriceS$ 650 - 800
Completion year2016
Tenure99-year Leasehold
No. of blocks1
No. of floors20
Top facilities
Car park
DeveloperHousing & Development Board (HDB)







