360 Woodlands Avenue 5
360 Woodlands Avenue 5
S$ 990,000
Starting From4
Beds
3
Baths
1,614
sqft
S$ 613.38
psf
480 m (6 mins) from NS9/TE2 Woodlands MRT
About this property
Rare Executive Maisonette150sqm for Sale!! Great for Rebuild and Reno!
**Do take note first 10 Photos are AI generated to give a better image. **
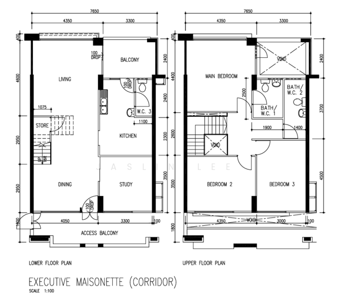
* 150sqm / 1614sqft, 4 bedroom / 3 bathroom
*2 Storeys with staircase
* One of the Newest Listing Rare Executive Masionette for SALE!
* Suitable for couple looking for extra space to work from home / Big family with kids
* Unit need major renovation as this is original condition by first owner.
* Huge living and dining hall for family activities
* Balcony space great for laundry drying
* Enclosed kitchen with storage cabinets
* All Bedrooms are spacious to fit a Queen Bed and a wardrobe and a study desk
* 2 Bathrooms located at Master Room, another at the upper level with the 2 common rooms
* 1 small WC bathroom located at the lower level
* Nearby amenities eg Causeway Point, Woods Square, Woodlands Civic Centre (Library, CPF Board), MacDonalds, Supermarkets, Woodlands Bus Interchange (Many Buses to all parts of Singapore).
* For Pure Selling (Extensions needed)
* Friendly owner willing to discuss
* 150sqm / 1614sqft, 4 bedroom / 3 bathroom
*2 Storeys with staircase
* One of the Newest Listing Rare Executive Masionette for SALE!
* Suitable for couple looking for extra space to work from home / Big family with kids
* Unit need major renovation as this is original condition by first owner.
* Huge living and dining hall for family activities
* Balcony space great for laundry drying
* Enclosed kitchen with storage cabinets
* All Bedrooms are spacious to fit a Queen Bed and a wardrobe and a study desk
* 2 Bathrooms located at Master Room, another at the upper level with the 2 common rooms
* 1 small WC bathroom located at the lower level
* Nearby amenities eg Causeway Point, Woods Square, Woodlands Civic Centre (Library, CPF Board), MacDonalds, Supermarkets, Woodlands Bus Interchange (Many Buses to all parts of Singapore).
* For Pure Selling (Extensions needed)
* Friendly owner willing to discuss
Amenities
Air conditioner
Affordability
Can I afford this property?
Tell us your monthly income and expenses to see if this home fits your budget.
Mortgage breakdown
Est. monthly repayment
S$ 0 / mo
S$ 0 Principal
S$ 0 Interest
Upfront costs
Total downpayment
S$ 0
Downpayment
S$ 0 Loan amount at 0% Loan-to-value
360 Woodlands Avenue 5

360 Woodlands Avenue 5
View project detailsFAQs
The sale price of this unit at 360 Woodlands Avenue 5 is S$ 990,000.
Current PSF at 360 Woodlands Avenue 5 is about S$ 613.38 psf.
The estimated loan repayment is S$ 2,953 / mo.
360 Woodlands Avenue 5 is located at 360 Woodlands Avenue 5 Admiralty / Woodlands North (D25-28).
Floor size of this unit at 360 Woodlands Avenue 5 is 1,614 sqft.
Explore other options in and around Admiralty / Woodlands
Based on the property criteria, you might be interested in the following
HDB Flat for Sale
Show MoreNearest MRT Stations

























