153C Bedok South Road
153C Bedok South Road
S$ 1,020,000
Negotiable3
Beds
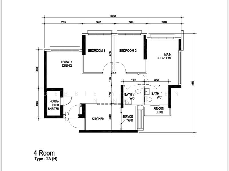
2
Baths
1,001
sqft
S$ 1,019
psf
650 m (8 mins) from TE30 Bedok South MRT
1.3 km (15 mins) from TE29 Bayshore MRT
About this property
New exclusive . Perfect home office!
sleek dark-toned. Sophisticated.
- facing greenery
- Maximised layout with dedicated work from home space
- Ample storage . Very well maintained.
- Move in condition
- Open concept functional kitchen
- Comes with a yard & bomb
No ethnic quota restriction
** Walking distance to supermarket and eateries !
** Seamless travelling with buses and Bedok south mrt less than 5 mins away !
Schools
** Temasek primary school
** Bedok green primary school
** Feng Shan primary school
** St Anthony’s canossian primary school
Don’t miss it !
Call me Debbie Yeo @ 9***** to view now
Amenities
Basic lights
Bedroom cabinets
Decorative lights
Dining table
Common facilities
Car park
Affordability
Tell us your monthly income and expenses to see if this home fits your budget.
153C Bedok South Road
153C Bedok South Road is an upcoming 99-year leasehold HDB flat in Bedok and one of the blocks in the Bedok South Horizon BTO. Living at Bedok South Horizon puts you among the private estates of Limau and East Coast where you get to enjoy privacy and tranquillity. In addition, 153C Bedok South Road is also located near to popular schools and the scenic East Coast Park (ECP). With the upcoming Bedok South MRT station on the Thomson-East Coast Line (TEL) set to begin operation by 2025, residents will enjoy improved accessibility to areas such as Marine Parade and the Central Area. To be completed by 2022, 153C Bedok South Road will be a relatively new development in the mature estate of Bedok. Entrance to the new Bedok South MRT station on the TEL is just next to Bedok South Horizon. Having an MRT station at your doorstep makes travelling highly convenient for residents at 153C Bedok South Road. Tanah Merah MRT station is also another MRT station in the neighbourhood of 153C Bedok South Road. The MRT station on the East-West Line (EWL) is just six bus stops away. 153C Bedok South Road is conveniently located near private preschools such as Sunflower Preschool, Alphabet Playhouse @ East Coast, Wharton Preschool East Coast Centre, and Star Tots Playgroup. Besides private preschools, there are also public preschools like PCF Sparkletots in the Bedok/East Coast area. There are several schools around Bedok South Horizon. One of them is Temasek Primary School, a popular school that is also affiliated with Temasek Secondary School just across the street from 153C Bedok South Road. Its location next to Temasek Primary School allows residents to apply for priority admission into the school. General practitioner clinics are located around Bedok South Horizon in the neighbourhood such as 58 New Upper Changi Road and Bedok Town Centre. Subsidised healthcare is also available at SingHealth Polyclinic, which is located in Heartbeat@Bedok. Bedok Mall and Bedok Point are two shopping malls that are closest to Bedok South Horizon. The two malls are located at Bedok Town Centre where you can also find many neighbourhood-level shops and supermarkets like Sheng Siong and NTUC FairPrice. Groceries and daily necessities are also available at neighbourhood-level shops located at the foot of blocks around 153C Bedok South Road.Several coffee shops and minimarts can be found at Bedok South Horizon and neighbouring blocks like 168 Bedok South Road and 69 Bedok South Avenue 3. 153C Bedok South Road is also 15 minutes away by foot from 58 New Upper Changi Market & Hawker Centre, a hawker centre with popular food stalls like 58 Minced Meat Mee and Bei Chuan Ting Fish Soup. The ECP is located close to 153C Bedok South Road and accessible via the Bedok Park Connector. The popular park is a spot not just for physical activities like cycling and jogging, but also a nice quiet place for a weekend getaway to chill and relax. Residents at 153C Bedok South Road can tap into the sports facilities available at neighbouring schools under SportsSG dual-use scheme. Schools such as Temasek Primary School, Temasek Secondary School, Bedok View Secondary School, and Bedok South Secondary School are under the scheme. The public can use school facilities for both outdoor and indoor sports like basketball, volleyball and badminton. Recreational activities like after-work workouts and facilities like gym and fitness studios are also available at Heartbeat@Bedok. Bedok South Horizon is just over 2km from Changi Business Park, an industrial park that is home to the technology arm of many multinational corporations such as IBM, Xilinx, Nestle, JP Morgan, Standard Chartered Bank, and DBS Bank. Apart from just being a tech hub, the Changi area is also a logistics hub. It is also home to multinational logistics firms like DB Schenker, SF Express, DHL, and U-Freight. 153C Bedok South Road at Bedok South Horizon has 117 units in total with a mix of 4-room (83 units) and 5-room (34 units) flats across 18 storeys.
View project details





