145 Bishan Street 11
145 Bishan Street 11
S$ 680,000
Negotiable3
Beds
2
Baths
904
sqft (floor)
S$ 752
psf (floor)
1.2 km (15 mins) from NS17/CC15 Bishan MRT
About this property
Rare High Floor No Extension! Best Facing & Layout! Near Bishan MRT!
Well-maintained 4-room HDB in the heart of Bishan, offering a practical layout, generous space, and everyday convenience in a highly desirable mature estate.
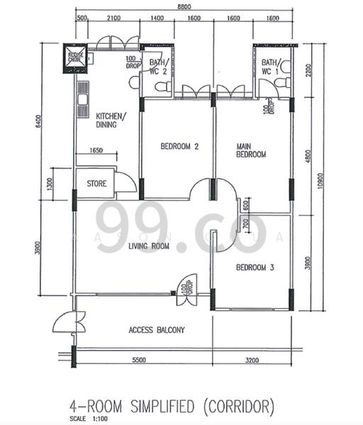
This home features a regular 904 sqft layout with a spacious living and dining area that’s easy to furnish and ideal for family living. Bedrooms are well-proportioned, bright, and functional. The unit is kept in good condition — move-in ready, with flexibility for buyers to renovate or personalise over time.
⸻
Home Highlights
4-Room HDB
Approx. 904 sqft of usable space
Regular, squarish layout
Bright & well-ventilated
Well maintained condition
99-year leasehold | TOP 1986
⸻
Excellent Connectivity
Walking distance to Bishan MRT (North-South & Circle Lines)
Easy access to major roads and expressways
Seamless commute to city and CBD
⸻
Schools Nearby
Guangyang Primary School
Guangyang Secondary School
Kuo Chuan Presbyterian Primary School
Kuo Chuan Presbyterian Secondary School
Close proximity to reputable schools — ideal for families
⸻
Amenities All Around
Bishan town centre, markets & coffeeshops nearby
Minutes to Junction 8
Daily conveniences, dining and retail at your doorstep
⸻
Ideal for families, upgraders, or buyers seeking space, connectivity, and long-term own-stay value in a prime central location.
Serious seller. Viewings by appointment only.
Contact now for an exclusive viewing.
This home features a regular 904 sqft layout with a spacious living and dining area that’s easy to furnish and ideal for family living. Bedrooms are well-proportioned, bright, and functional. The unit is kept in good condition — move-in ready, with flexibility for buyers to renovate or personalise over time.
⸻
Home Highlights
4-Room HDB
Approx. 904 sqft of usable space
Regular, squarish layout
Bright & well-ventilated
Well maintained condition
99-year leasehold | TOP 1986
⸻
Excellent Connectivity
Walking distance to Bishan MRT (North-South & Circle Lines)
Easy access to major roads and expressways
Seamless commute to city and CBD
⸻
Schools Nearby
Guangyang Primary School
Guangyang Secondary School
Kuo Chuan Presbyterian Primary School
Kuo Chuan Presbyterian Secondary School
Close proximity to reputable schools — ideal for families
⸻
Amenities All Around
Bishan town centre, markets & coffeeshops nearby
Minutes to Junction 8
Daily conveniences, dining and retail at your doorstep
⸻
Ideal for families, upgraders, or buyers seeking space, connectivity, and long-term own-stay value in a prime central location.
Serious seller. Viewings by appointment only.
Contact now for an exclusive viewing.
Amenities
Air conditioner
Storage
Affordability
Can I afford this property?
Tell us your monthly income and expenses to see if this home fits your budget.
Mortgage breakdown
Est. monthly repayment
S$ 0 / mo
S$ 0 Principal
S$ 0 Interest
Upfront costs
Total downpayment
S$ 0
Downpayment
S$ 0 Loan amount at 0% Loan-to-value
145 Bishan Street 11

145 Bishan Street 11
View project detailsFAQs
The sale price of this unit at 145 Bishan Street 11 is S$ 680,000.
Current PSF at 145 Bishan Street 11 is about S$ 752.21 psf.
The estimated loan repayment is S$ 2,028 / mo.
145 Bishan Street 11 is located at 145 Bishan Street 11 Ang Mo Kio / Bishan / Thomson Serangoon / Thomson (D19-20).
Floor size of this unit at 145 Bishan Street 11 is 904 sqft.
Explore other options in and around Ang Mo Kio / Bishan / Thomson
Based on the property criteria, you might be interested on the following
HDB Flat For Sale
Show MoreNearest MRT Stations
















