138A Yuan Ching Road
138A Yuan Ching Road
S$ 730,000
Negotiable3
Beds
2
Baths
958
sqft
S$ 762.00
psf
About this property
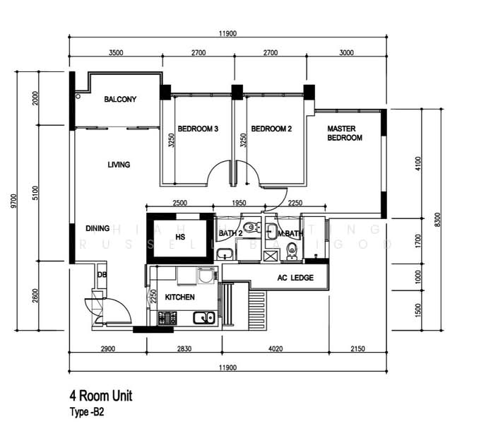
Move-In Ready 4-Room with Balcony, Spacious Layout
Well-maintained 4-room HDB with balcony, offering a functional and efficient layout ideal for comfortable everyday living. This unit is move-in ready with no extension required, making it perfect for buyers looking for a smooth and hassle-free completion.
The layout provides a spacious living and dining area, complemented by well-sized bedrooms and a practical flow throughout the home. The balcony adds an additional space to relax, unwind, or create your own cosy corner.
Located in a highly convenient neighbourhood, you are within walking distance to daily essentials and amenities:
• Sheng Siong (298m)
• FairPrice (497m)
• Taman Jurong Market & Food Centre (808m)
Families will also appreciate the proximity to schools:
• Yuvabharathi International School (179m)
• Jurong Secondary School (233m)
Enjoy easy access to public transport, major expressways, and nearby green spaces such as Jurong Lake Gardens.
Key Highlights:
•Extension required
• Functional and spacious layout
• Balcony for added lifestyle space
• Well-maintained condition
• Excellent connectivity and amenities nearby
A great option for first-time buyers, families, or upgraders looking for value, convenience, and a practical home.
Contact me today to arrange an exclusive viewing.
The layout provides a spacious living and dining area, complemented by well-sized bedrooms and a practical flow throughout the home. The balcony adds an additional space to relax, unwind, or create your own cosy corner.
Located in a highly convenient neighbourhood, you are within walking distance to daily essentials and amenities:
• Sheng Siong (298m)
• FairPrice (497m)
• Taman Jurong Market & Food Centre (808m)
Families will also appreciate the proximity to schools:
• Yuvabharathi International School (179m)
• Jurong Secondary School (233m)
Enjoy easy access to public transport, major expressways, and nearby green spaces such as Jurong Lake Gardens.
Key Highlights:
•Extension required
• Functional and spacious layout
• Balcony for added lifestyle space
• Well-maintained condition
• Excellent connectivity and amenities nearby
A great option for first-time buyers, families, or upgraders looking for value, convenience, and a practical home.
Contact me today to arrange an exclusive viewing.
Amenities
Air conditioner
Covered car parking
Common facilities
Car park
Affordability
Can I afford this property?
Tell us your monthly income and expenses to see if this home fits your budget.
Mortgage breakdown
Est. monthly repayment
S$ 0 / mo
S$ 0 Principal
S$ 0 Interest
Upfront costs
Total downpayment
S$ 0
Downpayment
S$ 0 Loan amount at 0% Loan-to-value
138A Yuan Ching Road
FAQs
The sale price of this unit at 138A Yuan Ching Road is S$ 730,000.
Current PSF at 138A Yuan Ching Road is about S$ 762.00 psf.
The estimated loan repayment is S$ 2,177 / mo.
138A Yuan Ching Road is located at 138A Yuan Ching Road Boon Lay / Jurong / Tuas West (D22-24).
Floor size of this unit at 138A Yuan Ching Road is 958 sqft.
Explore other options in and around Boon Lay / Jurong / Tuas
Based on the property criteria, you might be interested on the following
HDB Flat For Sale
Show MoreNearest MRT Stations






