11 Marsiling Drive
11 Marsiling Drive
S$ 568,000
Negotiable3
Beds
2
Baths
1,324
sqft
S$ 429
psf
1.4 km (17 mins) from NS8 Marsiling MRT
About this property
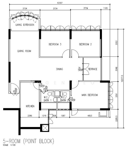
Rare spacious 5rm point block, airy and convenient. No Extension.
A rare opportunity to own a generously sized 5-room flat at an attractive price point. With a spacious 1,324 sqft layout, this unit offers significantly more living space compared to many newer flats — ideal for families who value comfort and functionality.
The unit is well-maintained and in move-in condition, allowing buyers to save on renovation costs and transition smoothly. The layout is practical and squarish, with a large living and dining area that can be easily configured to suit different lifestyle needs.
Located on a mid-floor, the unit enjoys a good balance of privacy and accessibility.
Key Features
Rare large size: 1,324 sqft
Spacious living and dining areas
Functional and efficient layout
Well-kept, move-in condition
No extension required
Mid-floor unit
Location & Convenience
Within ~10 minutes to Woodlands MRT
Direct bus access right at the doorstep
Close proximity to eateries, coffee shops, and daily amenities
Easy access to supermarkets and grocery options
Well-connected to Woodlands town centre
Suitability
Ideal for families looking for more living space
Suitable for buyers seeking value-for-money options
Good option for those prioritising space and affordability
Contact Logen 9***** for a viewing arrangement.
The unit is well-maintained and in move-in condition, allowing buyers to save on renovation costs and transition smoothly. The layout is practical and squarish, with a large living and dining area that can be easily configured to suit different lifestyle needs.
Located on a mid-floor, the unit enjoys a good balance of privacy and accessibility.
Key Features
Rare large size: 1,324 sqft
Spacious living and dining areas
Functional and efficient layout
Well-kept, move-in condition
No extension required
Mid-floor unit
Location & Convenience
Within ~10 minutes to Woodlands MRT
Direct bus access right at the doorstep
Close proximity to eateries, coffee shops, and daily amenities
Easy access to supermarkets and grocery options
Well-connected to Woodlands town centre
Suitability
Ideal for families looking for more living space
Suitable for buyers seeking value-for-money options
Good option for those prioritising space and affordability
Contact Logen 9***** for a viewing arrangement.
Affordability
Can I afford this property?
Tell us your monthly income and expenses to see if this home fits your budget.
Mortgage breakdown
Est. monthly repayment
S$ 0 / mo
S$ 0 Principal
S$ 0 Interest
Upfront costs
Total downpayment
S$ 0
Downpayment
S$ 0 Loan amount at 0% Loan-to-value
11 Marsiling Drive

11 Marsiling Drive
View project detailsFAQs
The sale price of this unit at 11 Marsiling Drive is S$ 568,000.
Current PSF at 11 Marsiling Drive is about S$ 429.00 psf.
The estimated loan repayment is S$ 1,761 / mo.
11 Marsiling Drive is located at 11 Marsiling Drive Admiralty / Woodlands North (D25-28).
Floor size of this unit at 11 Marsiling Drive is 1,324 sqft.
Explore other options in and around Admiralty / Woodlands
Based on the property criteria, you might be interested on the following
HDB Flat For Sale
Show MoreNearest MRT Stations

















