Watertown
69 Punggol Central
S$ 2,550,000
Negotiable3
Beds
2
Baths
1,119
sqft
S$ 2,279
psf
30 m (1 min) from NE17/PTC/CP4 Punggol MRT
About this property
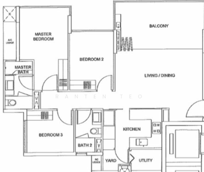
Premium Stack for Sale
- Total Bdrm : 3
- Size : 1119sf
- High floor
- Near Waterway Point
- Direct Water Sports Channel view
- Near Punggol (NE17) MRT & Bus-Interchange
- Spacious Balcony can be converted to Dining area
- Vacant possession
- Photos taken before move in
Direction:
- Living hall balcony : NW
- Kitchen : SW
- Main door : N
- Master/1st guest room : NE
- 2nd guest room : SW
Tips to access to the block:
- For driving, park at basement 3 in Floyer 1 (B63/65). Take lift up to 2nd floor from Floyer 1.
- From One Punggol, walk to Floyer 2, near Mr Coconut. I can pick you up from there for viewing
Common facilities
24 hours security
Barbeque pits
Car park
Clubhouse
Affordability
Tell us your monthly income and expenses to see if this home fits your budget.
Watertown

Watertown is a 99-year leasehold 99-year leasehold development located at 69-71 Punggol Central, Singapore 828754, in the vibrant District 19. The project is located in Punggol, offering a waterfront lifestyle while remaining close to modern urban conveniences. The condominium development is a collaboration between Far East Organisation, Frasers Centrepoint, and Sekisui House, completed in 2017. It comprises 1,001 residential units across multiple towers, an integrated shopping mall, Waterway Point, a basement car park, and communal amenities. Watertown provides a variety of unit types to suit different lifestyles, including Suites, two-bedroom apartments, and Sky Patio units. The design combines practical living with waterfront elegance, creating a home that blends modern city life with natural surroundings. Watertown has a reputation for its excellent location and diverse living styles. Its development provides residents with convenient access to the Punggol Waterway and surrounding parks, without having to travel far, even with easy access to the city. Key highlights include: Waterfront living with scenic views of Punggol Waterway. Integrated retail and dining options at Waterway Point. Modern facilities, including swimming pools, fitness clubs, and recreational spaces. Convenient access to main expressways and public transport. Eco-friendly living integrated with green spaces. With its blend of luxury, convenience, and eco-conscious design, Watertown provides a unique residential experience in Punggol. Watertown is designed for easy travel and access to amenities, making daily life practical and convenient. Punggol MRT Station (CP4) provides access to the North East Line, connecting residents to key areas across Singapore. Tampines Expressway (TPE) and Kallang-Paya Lebar Expressway (KPE) are nearby, offering smooth driving routes to the city and other regions. Residents can reach central locations, such as the Central Business District (CBD), quickly and efficiently. Punggol Regional Sports Centre and Punggol Waterway parks provide recreational spaces for families and individuals. Nearby retail options include the integrated Waterway Point mall, offering shopping, dining, and lifestyle services. The surrounding neighbourhood balances practical services with leisure activities, supporting both daily needs and relaxation. Watertown is located at 69-71 Punggol Central, occupying a substantial site area in District 19. The development comprises 14-storey towers and is designed to match the Punggol waterfront landscape. Watertown Condominium 99-year leasehold 19 992 residential units Watertown offers a comprehensive range of facilities designed to support wellness, recreation, and social interaction. Swimming Pools (Lap pool, Fun pool) BBQ Pits and Pavilion Areas Gymnasium and Fitness Corner Clubhouse and Function Room Playground and Landscaped Gardens Tennis Courts 24-Hour Security Parking and Drop-Off Points These amenities allow residents to be active, welcome guests, or simply unwind along the water. The introduction of green areas increases the quality of living. Families in Watertown have access to several choice educational centres, making it convenient for children and young learners. Nearby options include: My First Skool at Waterway Point Greenland Childcare @ Punggol PCF Sparkletots @ Punggol West Blk 308B These centres support early childhood education and enrichment, all within short travel distances. A variety of dining options surround Watertown, allowing residents to enjoy diverse cuisines without travelling far. Nearby dining establishments include: Sanook Kitchen (Waterway Point) Ajumma's (Waterway Point) Hototogisu Ramen (Waterway Point) The proximity to Waterway Point allows residents to easily explore additional cafes and restaurants, offering both casual and formal dining experiences. Healthcare services are conveniently located near Watertown, giving residents peace of mind. Nearby clinics include: Raffles Medical Minmed Clinic Etern Medical Clinic These clinics provide general health services and medical support within the neighbourhood. Daily shopping is made convenient with several supermarkets close to the development. Nearby options include: Li Li Cheng Supermarket FairPrice Finest SG Local Mart Residents can combine grocery trips with other errands or leisure activities in the area. The architecture is a blend of the urban and the natural, resulting in a neighbourhood where modern lifestyle and stunning views collide. It involves making living easy with new ideas. Watertown provides a range of layouts to meet various needs: One-bedroom units: 527 sq ft to 624 sq ft. Two-bedroom units: 807 sq ft to 958 sq ft. Three-bedroom units: 1,109 sq ft to 1,367 sq ft. Four-bedroom units: 1,539 sq ft to 1,550 sq ft. These units focus on maximising natural light, space efficiency, and comfort, catering to families, professionals, and individuals alike. Emerald Star Pte Ltd, a partnership between Far East Organisation, Frasers Centrepoint, and Sekisui House, developed Watertown. Far East Organisation is one of Singapore’s most prominent developers, known for quality residential and mixed-use projects. Frasers Centrepoint specialises in retail-integrated developments. Sekisui House brings innovative Japanese construction techniques. This association ensures that Watertown is a place with luxurious housing and quality of building, which combines local expertise and international concepts. Other notable developments by the same developers include: Alba Sky Eden @ Bedok Seaside Residences These projects share a focus on integrated living and well-planned facilities. Watertown belongs to an energetic Punggol neighbourhood, which is surrounded by many other residential developments that form a spirited community. Nearby projects include: A Treasure Trove Parc Centros Twin Waterfalls The area combines waterfront living with urban convenience, offering residents a balanced lifestyle. Watertown provides an exclusive living experience in the waterfront in Punggol. It possesses numerous amenities, a large shopping centre, and various kinds of units that are suitable for families, couples, and professionals. The development is designed in an eco-friendly way, with modern amenities, and is very well connected. This simplifies day-to-day living. Watertown is an excellent place to live in because of its good location, good surroundings and high growth prospects, where one can enjoy a quality and comfortable city life. Visit the Watertow nsale or rent page to explore available units and learn more about this waterfront development.
View project details


































