The Glades
12 Bedok Rise
S$ 1,828,000
Negotiable3
Beds
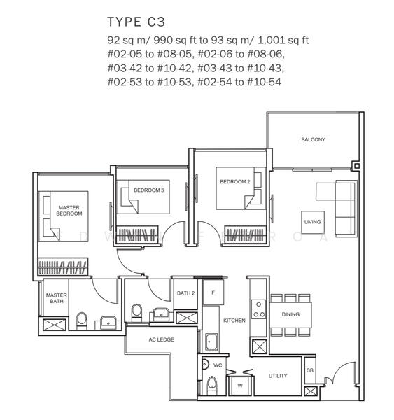
3
Baths
990
sqft (floor)
S$ 1,846
psf (floor)
580 m (7 mins) from EW4/CG Tanah Merah MRT
About this property
Priced to Sell Renovated well-maintained 3br (with utility) for sale!
- Owner Occupied since day 1
- Windy level 4 home
- North facing Premium unit
- Renovated with quality fittings and carpentry; well-maintained in a 'new' condition
- Zip-track fitted
- Little (or NO) renovation needed - move in with your luggage!
- Genuine Seller (and Agent to serve your needs)️
- Price negotiable
- Immediate upside once adjacent land plot is tendered!
- Standard Condo Facilities (pool, gym, tennis court etc) in this beautifully landscaped development
- 2 mins walk to revamped Tanah Merah MRT and stroll to various amenities / eateries nearby (including upcoming Sceneca Square shops for day to day conveniences)
- Nearby Schools:
St. Anthony’s Primary & Secondary
Temasek Primary & Secondary
Anglican High School
Bedok Green Primary School
Kindly call or drop a message to enquire about your exclusive viewing today!️
EDWIN FERROA ️ 8*****
Common facilities
24 hours security
Basement car park
Drop off point
Lift lobby
Affordability
Tell us your monthly income and expenses to see if this home fits your budget.
The Glades

The GladesThe Glades is a large and distinctive residential development located on the New Upper Changi Road in District 16. It has 726 units ranging from 1 and 2 bed SoHo units up to 4 bed double volume and dual key units as well as 16 penthouses. All units have ramp and lift access for easy wheelchair access. The Glades’ most notable features however are the 3 Sky Pods – huge tree like structures that light up at night. The Glades also has many facilities including a long and winding swimming pool. The location has a lot to commend it too. Though there are no amenities in the immediate vicinity, it sits next to Tanah Merah MRT Station giving easy access to both Changi, and Bedok.The Glades is jointly developed by Keppel Land Limited and China Vanke Co. Ltd.The Glades – Unique Selling PointsBoth in terms of the development itself and its location, The Glades is an outstanding place to live. It features 3 huge sky pods, akin to the Super Trees at Gardens By The Bay, which also light up at night. All of its 9 blocks are north/south facing and all have ramps and lifts for easy wheelchair access. There are a lot of different options when it comes to the unit types, and The Glades boasts a good amount of facilities, including a large swimming pool that meanders river-like through the property’s grounds. The Glades is located next door to Tanah Merah MRT Station on the East West Line, making travelling to Changi, Bedok and the City quick and straightforward.The Glades – AccessibilityThe nearest MRT station to The Glades is Tanah Merah on the East West line, which is situated right next door. From there it is two stops to Changi, and a straight run into the city in the other direction. Bedok is one stop away with its malls and dining options which makes the fact that there is precious little within 5 minutes’ walk of The Glades less of an issue. There is a bus stop opposite the station which goes to Marine Parade giving an even wider choice. The development is situated on New Upper Changi Road which runs all the way to Bugis Junction along Victoria Street and past the Esplanade on its way to Jurong. Both the PIE and ECP are easily accessed.The Glades - Amenities & AttractionsDining near The Glades:SpizeNew HawaIsushiChoon Heng Place Seafood RestaurantShopping near The Glades:Bedok MallBedok PointEastpoint MallChangi City PointSchools and Education near The Glades:Bedok South Secondary SchoolAlps AcademiaBedok View Secondary SchoolBedok Green PrimaryHaig Girls’ SchoolAnglican HighAnthony’s Canossian PrimaryTemasek PrimaryThe Glades - Project informationThe Glades sets out to be an iconic development, with its 3 tree-like sky pods which light up at night. It is a large residential development, with 726 units in total. These are situated in 9 blocks, all north south facing, and between 10 and 12 storeys high. There is a large choice in terms of the units at The Glades, including 1 and 2 bed SoHo units, 4 bed double volume and dual key units and 16 penthouses. There are lifts and ramps throughout the development ensuring ease of access for disabled people. The Glades is very well endowed when it comes to facilities, with the highlights being a large swimming pool, that wends its way through the length of the development, gymnasium, tennis court, aqua gym, yoga deck, outdoor fitness station and children’s playground.Name: The GladesAddress: Tanah Merah (next to Tanah Merah MRT station)Type: CondominiumSite area: approx. 343,173 sqftTenure: 99 years leaseholdDistrict: 16Configuration: 726 units over 9 blocks (10 – 12 storeys)Unit types:160 x 1-bedroom & SOHO units (452 – 753 sqft)330 x 2-bedroom & SOHO units (570 – 914 sqft)190 x 3-bedroom units (840 – 1,248 sqft)20 x 4-bedroom & Double Volume units (1,281 – 1,680 sqft)10 x 4-bedroom Dual Key (DK) units (1,378 – 1,561 sqft)16 x Penthouse units (1,916 – 2,595 sqft)Parking lots: 734 including 5 handicapped lots (basement)Expected TOP: end 2017Legal TOP: 2020The Glades - Historical DataBy the end of October 2015, the number of caveated transactions at The Glades stood at 342, out of a total of 400 launched up to that point. Of those around 30 units had sold for $1.5M and above, with 5 of those coming in for $2M or more. Since its launch in 2014 there had been 95 1 and 2 bed units sold. The smallest units available, the 452 sqft 1 bedders, transacted between $1,458 and $1,649 psf which equates to approximately $659,000 and $746,000 respectively. The difference in psf is down to the block and orientation.The Glades - Related ProjectsThe following projects are by the same developer as The Glades:Highline ResidencesCorals at Keppel BayThe Glades - Nearby ProjectsThe following developments are in the same neighbourhood as The Glades:Urban VistaEast MeadowsOptima @ Tanah MerahGrandeur Park Residences
View project details





















