Suites @ Guillemard
70 Lim Ah Woo Road
S$ 1,280,000
Negotiable2
Beds
2
Baths
860
sqft (floor)
S$ 1,488
psf (floor)
670 m (8 mins) from EW8/CC9 Paya Lebar MRT
About this property
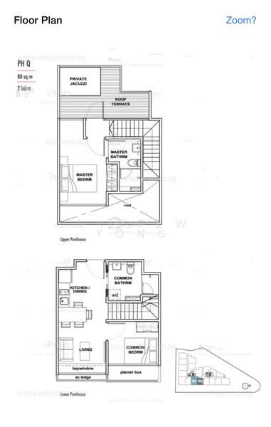
Converted to 3 Bedrooms, walk to Paya Lebar Square 750m. High Rental.
High rental yield at $3800 per mth.
Sell with Tenancy. ending 31 dec 2027.
Maintenance est. $300 per mth.
Paya Lebar Square only 10 mins walk.
Stunning 2 bedroom, 2 bathroom apartment for sale is available now and boasts a spacious layout of 860 sqft located at
70 Lim Ah Woo Road, Singapore.
Perfectly situated, you'll find Dakota MRT station just 1.1 km away and Paya Lebar MRT station a short 1.4 km distance, making your daily commute a breeze. Families will appreciate the proximity to esteemed schools like Tanjong Katong Secondary School (1.2 km) and Tanjong Katong Girls' School (1.3 km), ensuring quality education is just around the corner. For your daily shopping needs, FairPrice Geylang Lorong 38 is only 1.5 km away, while Grandlink Square, offering a variety of retail options, is just 1.4 km from your doorstep. Enjoy top-notch project amenities including a swimming pool, BBQ pits, and a gymnasium room that cater to your recreational needs. The unit features essential comforts such as air conditioning and a balcony for your relaxation. Don't miss out on this incredible opportunity to own a beautiful apartment in a vibrant neighborhood. Schedule a viewing today and make this your new home!
Amenities
Air conditioner
Balcony
Covered car parking
Common facilities
Barbeque pits
Gymnasium room
Jacuzzi
Swimming pool
Affordability
Tell us your monthly income and expenses to see if this home fits your budget.
Suites @ Guillemard

Suites @ Guillemard is a freehold apartment development located at 70, Lim Ah Woo Road, in District 15. Suites @ Guillemard is situated few minutes walk to from Paya Lebar MRT Station. Suites @ Guillemard is constructed by the famous developer of Singapore named Oxley Land Pte. Ltd. Suites @ Guillemard has different facilities such as swimming pool, jacuzzi, gym and BBQ pit. There are different MRT Stations avalible near Suites @ Guillemard.mMRT stations are available just 7 to 8 minutes walking distance from Suites @ Guillemard. Famous and well-known schools of the area are available just in the 5 to 9 minutes walking distance from Suites @ Guillemard. Suites @ Guillemard is also close to a stretch of eateries and restaurants located at Tanjong Katong Eateries such as Santos cafe and Greenland Vegetarian restaurant. Different supermarkets, restaurants, banks, and many more facilities are available in the few minutes distance to Suites @ Guillemard. The vehicle owner needs 10 to 15 minutes distance to reach business hub or the vibrant Orchard Road shopping distance from Suites @ Guillemard Suites @ Guillemard is 5 storeys tall and comprises of 72 units. All the facilities of life are just a few minutes away from Suites @ Guillemard. Different MRT Stations are just a few minutes walking distances from Suites @ Guillemard. It is also close toa number of local and international schools, such as Tanjong Katong Secondary School and Tanjong Katong Primary School. The unique selling points is its beautiful building from where the perfect people can see the perfect view of the city. The famous restaurant of the area such as Santos cafe and Greenland Vegetarian restaurant is available near Suites @ Guillemard. All these facilities of life make Suites @ Guillemard unique selling point. Suites @ Guillemard is close to the CBD and Sports Hub.Suites @ Guillemard is also close to the MRT Stations Paya Lebar MRT Station and Dakota MRT Station, these stations are 7 to 8 minutes walking distance to Suites @ Guillemard. Diffe different rent schools are also available near to Suites @ Guillemard such as Kong Hwa School, Northlight School, and Tanjong Katong Girls' School are just 5, 6 and 9 minutes walking distance to Suites @ Guillemard, respectively. Other facilities like super malls, supermarkets, entertainment places are just a few minutes riding distances to Suites @ Guillemard. Almost all the facilities of life are available near the Suites @ Guillemard. Stick To EatMerdandy Bar & CaféRochor Beancurd Giant SupermarketJulian and FriendsCold Storage Kong Hwa SchoolNorthlight SchoolTanjong Katong Girls' School Suites @ Guillemard 5 storeys tall and comprises of 72 units completed in 2015. There are different size of bedrooms and washrooms available according to the personal need of the people. There is 1 bedroom 1 washroom and 2 bedrooms and 2 washrooms facilities are available. It is constructed with a lot of facilities like swimming pool, Barbeque Area, Gymnasium room and Jacuzzi. Suites @ Guillemard is the perfect apartment in this area according to the different facilities, building, and location. Project Name: Suites @ GuillemardDistrict: 15Configuration: 72 residential units Unit types for Suites @ Guillemard:1 bedroom with 1 bathroom (431 sqft)2 bedrooms with 2 bathroom (527 sqft) The following developments are in the same neighbourhood as Suites @ Guillemard:The SoundOne AmberSuites @ East CoastParc EleganceCubik
View project details



















