Southbank
881 North Bridge Road
S$ 2,180,000
Negotiable2
Beds
2
Baths
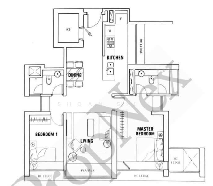
958
sqft (floor)
S$ 2,276
psf (floor)
450 m (5 mins) from EW11 Lavender MRT
About this property
Where everyday living meets a view like this
NE-facing unblocked Kallang Basin & waterfront views
Spacious & efficient 958 sqft layout for comfortable daily living
Mountain views on clear days & fireworks views on selected occasions
Amenities & dining at doorstep along North Bridge Road
Within the Kallang–Bugis transformation corridor for long-term value support
Ideal for own-stay buyers who value space, privacy, and premium views.
A quality-built home where comfort is a lifestyle — not a compromise.
Exclusive home tour by appointment
Shoan Siew | PropNex
9*****
Shoan Siew
9*****
Amenities
Balcony
Barbeque pits
City view
Covered car parking
Common facilities
24 hours security
Barbeque pits
Fun pool
Function room
Affordability
Tell us your monthly income and expenses to see if this home fits your budget.
Southbank

Southbank is a beautiful long towered building consists of a total 39 floors and 197 beautiful units. It is situated at North Bridge Road, 198784, City & South West (D01-08) in District 7. The tenure of the apartments is 99 years leasehold. The building was completed in 2009 by King & Queens Development Pte Ltd developers. These are condominium apartments situated at north bridge road and is very close to lavender MRT EW11. Well-designed modern apartment units are a feature of this project from one of the most highly regarded developers in Singapore. The vast majority of the units in Southbank are one or two bedrooms, with flats having a price range of S$ 988,000-2,280,000, making it affordable despite its proximity to the MRT. Southbank is developed and built by King & Queens Development Pte Ltd a Singapore-listed international property and hospitality conglomerate, and one of the biggest landlords on the island. Its extensive global network encompasses so many subsidiaries and associated companies, and owns and manages properties across Asia, Europe and the Middle East, company has won numerous awards both here in Singapore as well as internationally, and has earned itself a reputation for being a socially responsible corporation, championing green and environmentally aware initiatives and projects. Company has also produced various other amazing projects like this as well. There is a bar b q area, function room, lap pool, swimming pool, fun pool, gymnasium room, playground and spa pool available in the building. These all facilities makes the families enjoy a healthy life by availing these facilities all under one roof nearest to their living. Also 24 hour security system is available which means the residents of Southbank can have a safe and secure living in the building with children. The fact that Commonwealth Towers is so close to the MRT – it is across the road from Lavender MRT EW11 – is a huge plus point for this development and will be the reason most people buy. Other MRT stations include, Nicoll highway MRT station which is on 10 minutes walk from the building, Bendemeer MRT station which is just 14 minutes walk away and also, Kallang MRT station and Jalan MRT station which are just on 16 minutes walk from the building. So this building is accessible to so many MRT stations which means going around the city is not a problem for the residents. It is situated at North Bridge road so it is easily accessible to Victoria Street and Nicoll Highway. Hoe Hookien MeeCamp kilo charcoal clubGolden mile food centreBilly bombers licensing pte ltdSubway Singapore autism solutionBirmingham academy pte ltdArt & IIDY academyDistricts creative arts pte ltd Southbankshopsneedle heart tattoogolden mile complex Southbank is a beautiful long building, consists of 39 storeys. It has 197 units in total, most of those being one or two bedroom. The one bedroom units are some of the smallest on the market, certainly in this area, at between 592 - 614 sqft, the two bedroom flat consists of 904-969 sqft and the three bedroom flats consists of 1313 sqft respectively. Project Name: SouthbankType: CondominiumDistrict: 7 (Beach Road, Bugis, Rochorv) Unit types:1-bedroom (592 - 614 sqft)2-bedrooms (904-969 sqft)3-bedrooms (1313 sqft) Concourse SkylineSouth Beach ResidencesDUO ResidencesMidtown BayCity GateSouthbank
View project details



















