⭐️RARE BRAND NEW PAIR SEMI-Ds @ FERNHILL! 1KM TO SCGS (PRIMARY) & MINS WALK TO STEVENS MRT!⭐️
Fernhill Road Stevens Trevose Gentle Chancery Cluny Balmoral Robin Goldhill Harom Setangkai Dalkeith Berrima Harlyn Camborne Kheam Hock
S$ 14,680,000
Negotiable5
Beds
6
Baths
3,087
sqft (land)
S$ 4,755
psf (land)
480 m (6 mins) from TE11/DT10 Stevens MRT
About this property
TOP Obtained! Brand new, beautifully designed modern 3.5-Sty Semi-D!
• Highly sought-after vicinity
• Main door facing North to NW
• Swimming pool
• Can park up to 4 cars
• Plenty of street parking available
• Lift access to all levels
• Ensuite 5 bedrooms + Family Hall + Helper's rm
• Double volume ceiling in the Living
• 12 mins walk to Stevens MRT Station (647m)
• Located within a 3-sty mixed landed zone
• 1 km to Singapore Chinese Girls' Primary School
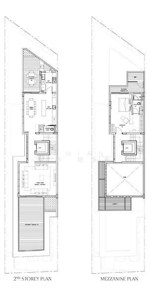
Level 1
- Pool
- Pool Bath
- Entertainment Rm
- Helper's Rm
- WC
- Yard
- Household Shelter
Level 2
- Living & Dining
- Dry & Wet Kitchen
- Powder Rm
- Outdoor Terraces
Mezzanie Level
- Ensuite Bedrm w/ Outdoor Terrace
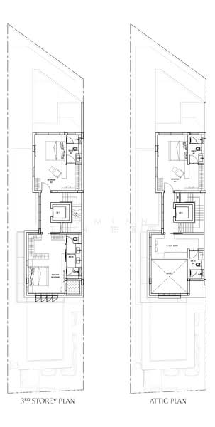
Level 3
- Master Bedrm
- Ensuite Bedrm
Attic Level
- Ensuite Bedrm
- Ensuite Study
+ Disclaimers +
All land and built-up area measurements are approximate and subject to a final survey. They do not form part of any offer or contract and do not constitute a warranty, representation, or statement by the salesperson. Prospective buyers should independently verify all measurements.
Jalan Jambu Ayer Batu Mawar Vanda Drive Road Naga Sari Ash Oriole Pandan Linden Pine Sunset Cassia Greenwood Lane Grove Place Greenpark Greenmead Greenview Hillcrest Watten Estate Terrace Heights Close Rise View Park Vale University Bahasa Seni Adat Asuhan Ilmu Unggas Sejarah Kheam Hock Tempua Trevose Tudor Camborne Merryn Narooma Dalkeith Harlyn Berrima Dunkirk Plymouth Capitol Dunearn Goldhill Barker Asimont Chancery Hill Gentle Gilstead Pasiran Evelyn Buckley Mount Rosie Bukit Tunggal Merlimau Tan Sim Boh Dyson Bo Seng Whitley Novena Utara Selatan Shrewsbury Holland Elm Fir Redwood Eden Maple Cypress Oak Garlick Lasia Lucky Lantana Lotus Lily Lemon Sixth Anamalai Laurel Wood Shamrock Namly Siantan Lim Tai See Regent Ampang Lady Dalvey Stevens Nassim White House Orange Harom Setangkai Cluny Balmoral Robin Margoliouth Lewis Gallop Woollerton Leedon Hua Guan Avenue Crescent Gardens Sian Tuan Elm Fir Oak Lim Tai See Allamanda Selby Haji Alias Duchess Coronation West Walk Prince
• Main door facing North to NW
• Swimming pool
• Can park up to 4 cars
• Plenty of street parking available
• Lift access to all levels
• Ensuite 5 bedrooms + Family Hall + Helper's rm
• Double volume ceiling in the Living
• 12 mins walk to Stevens MRT Station (647m)
• Located within a 3-sty mixed landed zone
• 1 km to Singapore Chinese Girls' Primary School
Level 1
- Pool
- Pool Bath
- Entertainment Rm
- Helper's Rm
- WC
- Yard
- Household Shelter
Level 2
- Living & Dining
- Dry & Wet Kitchen
- Powder Rm
- Outdoor Terraces
Mezzanie Level
- Ensuite Bedrm w/ Outdoor Terrace
Level 3
- Master Bedrm
- Ensuite Bedrm
Attic Level
- Ensuite Bedrm
- Ensuite Study
+ Disclaimers +
All land and built-up area measurements are approximate and subject to a final survey. They do not form part of any offer or contract and do not constitute a warranty, representation, or statement by the salesperson. Prospective buyers should independently verify all measurements.
Jalan Jambu Ayer Batu Mawar Vanda Drive Road Naga Sari Ash Oriole Pandan Linden Pine Sunset Cassia Greenwood Lane Grove Place Greenpark Greenmead Greenview Hillcrest Watten Estate Terrace Heights Close Rise View Park Vale University Bahasa Seni Adat Asuhan Ilmu Unggas Sejarah Kheam Hock Tempua Trevose Tudor Camborne Merryn Narooma Dalkeith Harlyn Berrima Dunkirk Plymouth Capitol Dunearn Goldhill Barker Asimont Chancery Hill Gentle Gilstead Pasiran Evelyn Buckley Mount Rosie Bukit Tunggal Merlimau Tan Sim Boh Dyson Bo Seng Whitley Novena Utara Selatan Shrewsbury Holland Elm Fir Redwood Eden Maple Cypress Oak Garlick Lasia Lucky Lantana Lotus Lily Lemon Sixth Anamalai Laurel Wood Shamrock Namly Siantan Lim Tai See Regent Ampang Lady Dalvey Stevens Nassim White House Orange Harom Setangkai Cluny Balmoral Robin Margoliouth Lewis Gallop Woollerton Leedon Hua Guan Avenue Crescent Gardens Sian Tuan Elm Fir Oak Lim Tai See Allamanda Selby Haji Alias Duchess Coronation West Walk Prince
Amenities
Air conditioner
Car parking outside
Covered car parking
False ceiling
Common facilities
Covered car park
Swimming pool
Affordability
Can I afford this property?
Tell us your monthly income and expenses to see if this home fits your budget.
Mortgage breakdown
Est. monthly repayment
S$ 0 / mo
S$ 0 Principal
S$ 0 Interest
Upfront costs
Total downpayment
S$ 0
Downpayment
S$ 0 Loan amount at 0% Loan-to-value
FAQs
The sale price of this unit at ⭐️RARE BRAND NEW PAIR SEMI-Ds @ FERNHILL! 1KM TO SCGS (PRIMARY) & MINS WALK TO STEVENS MRT!⭐️ is S$ 14,680,000.
Current PSF at ⭐️RARE BRAND NEW PAIR SEMI-Ds @ FERNHILL! 1KM TO SCGS (PRIMARY) & MINS WALK TO STEVENS MRT!⭐️ is about S$ 4,755.43 psf.
The estimated loan repayment is S$ 43,046 / mo.
⭐️RARE BRAND NEW PAIR SEMI-Ds @ FERNHILL! 1KM TO SCGS (PRIMARY) & MINS WALK TO STEVENS MRT!⭐️ is located at Fernhill Road Stevens Trevose Gentle Chancery Cluny Balmoral Robin Goldhill Harom Setangkai Dalkeith Berrima Harlyn Camborne Kheam Hock Tanglin / Holland / Bukit Timah Orchard / Holland (D09-10).
Floor size of this unit at ⭐️RARE BRAND NEW PAIR SEMI-Ds @ FERNHILL! 1KM TO SCGS (PRIMARY) & MINS WALK TO STEVENS MRT!⭐️ is 7,441 sqft.
Explore other options in and around Tanglin / Holland / Bukit Timah
Based on the property criteria, you might be interested on the following
Semi-Detached House For Sale
Nearest MRT Stations

























