12 Semi-Detached Houses for Sale near TE12 Napier MRT Station
Map View
We’ve shown you all the matches
Almost there!
Refining your recommendations.
This may take a few seconds...
Explore PropertyGuru
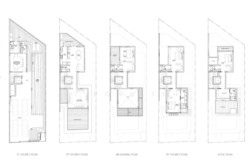
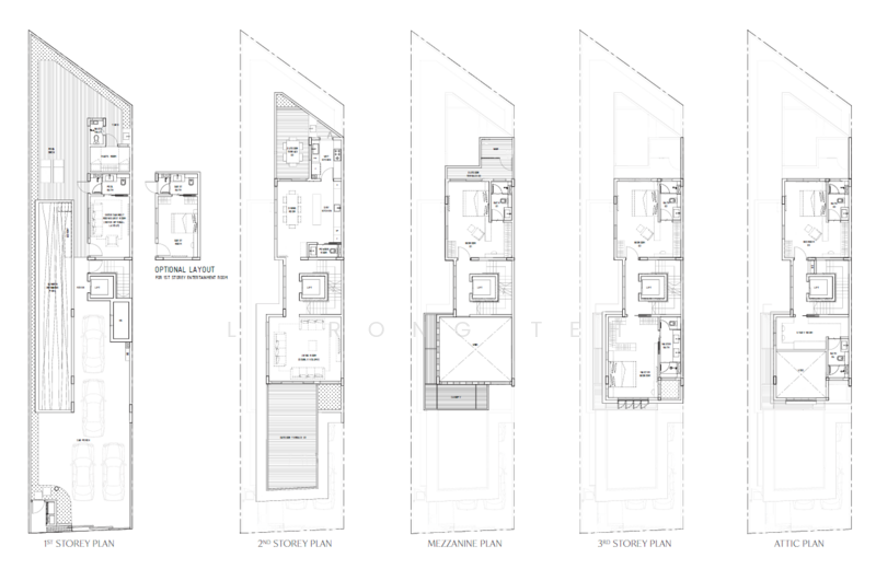
There are 15 Semi-Detached Houses for sale in TE12 Napier MRT Station. You can use our Elegant Property Search Tool to find the right New Semi-Detached Launch and other resale properties with detailed information, including maps and photos. The options in our database is limitless. Our Property Evaluation Tool makes the market transparent for you, so that you can make a confident decision to Buy your Property in Singapore. Start your Property Search above, or refine your search using these most popular searches on New Semi-Detached Launch for sale.
Show MoreProperties by ownership
Properties by floor level










