Perfect Ten
323 Bukit Timah Road
S$ 2,480,000
Starting From2
Beds
2
Baths
786
sqft
S$ 3,155
psf
1.1 km (14 mins) from DT10/TE11 Stevens MRT
About this property
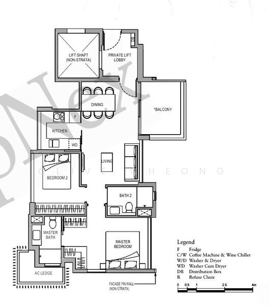
2 Bedroom With Private Lift Condominium For Sale at Perfect Ten
Genuine Subsale Unit.
Tenanted till May 2028
Luxury Freehold Living in Prime District 10 | Perfect Ten
Step into refined city living with this exclusive 2-bedroom, 786 sqft residence at Perfect Ten — a rare freehold gem in the prestigious Bukit Timah enclave.
Thoughtfully designed with efficient layout and premium finishes, this unit offers a seamless blend of comfort and sophistication. The spacious living and dining area flows effortlessly into a sleek, modern kitchen, perfect for both everyday living and entertaining. Floor-to-ceiling windows invite abundant natural light, enhancing the sense of space while offering tranquil views.
Both bedrooms are well-proportioned, with the master bedroom featuring an ensuite bath for added privacy and convenience.
Residents enjoy a full suite of luxury facilities, including a stunning lap pool, gym, clubhouse, and lush landscaped gardens — creating a serene sanctuary right in the heart of the city.
Unmatched Connectivity & Convenience
• Minutes to Stevens MRT Station (DTL & TEL interchange)
• Easy access to Orchard Road, CBD & major expressways
• Close proximity to renowned schools such as Singapore Chinese Girls’ School and Anglo-Chinese School (Primary)
Why This Unit?
• Freehold status — long-term value preservation
• Efficient 2-bedroom layout with no wasted space
• Prestigious District 10 address
• Ideal for both own stay and investment
Amenities
Barbeque pits
Cabinets
Covered car parking
Jacuzzi
Common facilities
Jacuzzi
Main entrance
Swimming pool
Affordability
Tell us your monthly income and expenses to see if this home fits your budget.
Perfect Ten

Perfect Ten is a freehold property development that is situated along Bukit Timah Road, Singapore. Nestled in District 10, the condominium building has a total of 230 units that present astonishing city views of Singapore. A brainchild of Japura Development Pte Ltd, the residential building is located in a predominately private enclave, suitable for those looking to buy a property for their own stay.Accessibility is a key selling point to the property as Bukit Timah Road is connected to expressways like Pan Island Expressway and Central Expressway. Furthermore, the condominium building can also be easily reachable via public transportation as there are a few bus stations along the main road. Besides bus stations, MRT stations are also around the corner. In fact, there are two MRT stations that are within walking distance — Newton MRT Station and Stevens MRT Station.Its location in District 10 allows Perfect Ten to offer its residents majestic city views and soothing scenic views of the Central Catchment Area.Just like any condominium buildings in Singapore, residents can expect standard facilities being part of the amenities offered by the development.Perfect Ten is an exclusive residential building that is surrounded by other similar residential properties, making this a location ideal for families. For pre-school children, there are a few options residents can choose from, namely the St. James’ Church Kindergarten and the House on the Hill Montessori Pre-School. Meanwhile, choices for those in primary schools are Anglo-Chinese School (Primary) along Barker Road and the Singapore Chinese Girls’ Primary School. Both schools also offer secondary education, which means the children do not have to switch to a different school. If international schools are something you are considering for your children, there is the Overseas Family School which is just a quick trip from the establishment.Perfect Ten has many clinics and medical centres that are in its vicinity. Some of these are KK Women’s and Children’s Hospital and Thomson Medical Centre. As for clinics, Outreach Clinic, Island Medical Clinic and Medical Clinic One are just a few minutes away.Residents can shop at United Square Shopping Mall, Far East Plaza and Goldhill Shopping Centre, the closest shopping malls to the development. Residents can do their grocery shopping at Cold Storage at United Square, Jason’s, The Gourmet Grocer, and Cold Storage Chancery Court. Another advantage of living at Perfect Ten is proximity to the best shopping district in Singapore, the fabulous Orchard Road Shopping District. Many popular shopping malls such as Takashimaya, Paragon Shopping Centre, Ngee Ann City, Ion Orchard and 313@ Somerset are located in the shopping district.Food is soul for every Singaporean, there are plenty of soulful restaurants and eateries to choose from in the district. Bukit Timah offers many food outlets. For those who like Italian cuisines, you can try it out at either In Piazza Italian Restaurant & Pizzeria or Capri Trattoria & Pizzeria. If you crave for Korean cuisine, Kim’s Family Food Korean Restaurant is a good option. For those who enjoy a good plate of hawker food such as chicken rice and noodle soup, head out to Bukit Timah Food Centre. Most of the hawker stalls here have their own loyal followers as they have been open for many years.Other than the facilities offered in the condominium building, there are a few recreation and leisure options nearby. Clubhouses and golf centres such as The American Club, Tanglin Community Club and Raffles Town Club are a short trip away. If you like to be one with nature, residents can head on to Singapore Botanic Garden, a UNESCO World Heritage Site.The developer for Perfect Ten is Japura Development Pte Ltd.Units of Perfect Ten are estimated to sell around the range of S$2,500,000 to S$4,000,000. For more properties of a similar price range, do click on this listing here.Perfect Ten is a residential condo located in Singapore that offers family-friendly accommodation. The building’s proximity to grocery stores, hospitals, and schools makes it the perfect home base while you explore this bustling city with your kids.
View project details






























