One Pearl Bank
1 Pearl Bank
S$ 1,300,000
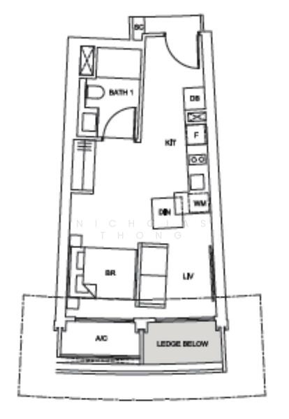
Studio
1
Bath
431
sqft (floor)
S$ 3,016
psf (floor)
480 m (6 mins) from NE3/EW16/TE17 Outram Park MRT
680 m (8 mins) from NE4/DT19 Chinatown MRT
About this property
Genuine Newly TOP unit for Sale at One Pearl Bank!
- Studio Unit
- 431 sqft
- City View
Experience convenience and connectivity:
- Outram Park MRT interchange station (EWL/NEL/Future TEL) is just 3 minutes' walk away!
- Convenient access to Raksha Beaute supermarket (0.3 km) and Glory Bee - People’s Park Centre supermarket (0.5 km)
- Enjoy shopping at Chinatown Point mall (0.2 km) and Clarke Quay Central mall (0.6 km), Pearl Centre, all within walkable distance
- Perfect for those seeking a vibrant lifestyle in the heart of the city.
- Don't miss this opportunity to own a prime property in a sought-after location!
Contact Nicholas @ 8***** to schedule a viewing now!
Amenities
Air-conditioning
City view
Cooker hob/hood
Dryer
Common facilities
Barbeque pits
Basement car park
Clubhouse
Fun pool
Affordability
Tell us your monthly income and expenses to see if this home fits your budget.
One Pearl Bank

One Pearl Bank stands as a distinguished 99-year leasehold project, a condominium situated at 1 Pearl Bank, within Singapore's highly sought-after District 03. Developed by Areca Investment Pte Ltd, a subsidiary of CapitaLand Limited, this landmark project reflects the developer's commitment to architectural innovation and quality living. Completed in 2024, it comprises 774 residential units, each designed with a refined balance of modern comfort and enduring elegance. Set within the lively Alexandra/Commonwealth region (169016), the development enjoys convenience. Its twin curved towers, rising 39 storeys above the skyline, form a striking silhouette that has quickly become an icon of urban sophistication. Beneath this elegant exterior lies a world of meticulously planned amenities, lush landscaped gardens, and thoughtfully designed communal spaces that redefine contemporary city living. Very few addresses manage to bring together location, connectivity, and design quite as effortlessly as One Pearl Bank. Set within the coveted District D03, it is situated close to Singapore's Central Business District and offers quick access to key expressways that span the island. Yet there's more to this development than convenience alone. Designed with a modern, future-focused mindset, the development features smart home innovations that enable residents to control lighting, temperature, and select appliances remotely. This thoughtful addition complements the pace of contemporary living. From the overarching concept to the smallest detail, every aspect has been thoughtfully crafted. The result is a quiet elegance that appeals to homeowners who value refined design, as well as investors seeking enduring quality in one of Singapore's most well-connected districts. Life at One Pearl Bank revolves around ease and accessibility. Set in the heart of Singapore's transportation grid, it is within easy reach of Outram Park MRT station (EW16, NE3 & TE17), Chinatown MRT station (NE4 & DT19), and Maxwell MRT station (TE18). Drivers, too, have it simple. The Ayer Rajah (AYE) and Pan-Island (PIE) expressways cut quick paths to Marina Bay, Orchard Road, and the Central Business District, making cross-city travel feel effortless. And when the pace slows, the surroundings offer a quieter side of city life. Pearl's Hill Park and Hill City Park provide shaded trails and pockets of greenery to unwind, while the Singapore River and Clarke Quay are only a short drive away, alive with waterfront restaurants, lively bars, and the easy charm of evenings by the water. Designed for balance and well-being, One Pearl Bank integrates relaxation, recreation, and community into a single, well-curated environment. The array of facilities includes: Infinity pool with panoramic skyline views 24-hour fully equipped gymnasium Clubhouse with co-working lounges and function spaces Indoor and outdoor children's play areas Sky gardens and allotment gardens BBQ pavilions and alfresco dining decks Round-the-clock concierge and security services Each space has been crafted to nurture both solitude and connection, whether it's an early morning swim overlooking the city or an evening gathering beneath the stars. The development's central location places several schools within easy reach, including: Cantonment Primary School Cantonment Secondary School River Valley Primary School These institutions ensure that families with school-aged children can enjoy short, convenient commutes without compromising on academic studies. Food enthusiasts have plenty to choose from, with a variety of dining spots surrounding the neighbourhood. Highlights include: Maxwell Food Centre Tanjong Pagar Market & Food Centre Keong Saik Road Chinatown Food Street Whether it's a hearty local breakfast or an elegant dinner setting, every craving finds a home nearby. Residents in the area enjoy convenient access to a range of medical centres and clinics, ensuring healthcare is always within easy reach. Notable options include: Singapore General Hospital Outram Polyclinic Raffles Medical Parkway Shenton Medical Clinic These institutions offer comprehensive medical support, ranging from everyday care to treatments. Everyday essentials are readily available with nearby supermarkets such as: FairPrice Chinatown Point FairPrice Tanjong Pagar Plaza Sheng Siong Supermarket Scarlett Supermarket @ Chinatown Trengganu Street These outlets ensure that grocery runs are quick and effortless, another example of how convenience is seamlessly integrated into daily life at One Pearl Bank. Commanding a prized position at 1 Pearl Bank, the twin towers rise with quiet confidence above the city. The architecture combines form and function, promoting community interaction through sky allotment gardens, rooftop terraces, and landscaped bridges. 1 Pearl Bank, Singapore 169016 (District 03) Twin curving 39-storey towers connected by a rooftop bridge Approx. 7,653 sqm (82,376 sq ft) 774 residential apartments 10 units (431 sq ft/40 sqm) 175 units (527-570 sq ft/50-53 sqm) 280 units (700-893 sq ft/65-83 sqm) 140 units (1,098-1,281 sq ft/102-119 sqm) 35 units (1,399-1,432 sq ft/130-133 sqm) 4 units (2,540-2,788 sq ft/236-259 sqm) CapitaLand Limited (via Areca Investment Pte Ltd) 99-year leasehold commencing from 1 March 2019 Each detail of the site has been thoughtfully planned to strike a balance between architectural distinction. At the heart of One Pearl Bank's creation is CapitaLand Limited through its subsidiary, Areca Investment Pte Ltd. From the building's graceful façade and sustainable construction choices to the finely considered interiors, the craftsmanship is unmistakable. Together, these elements reflect a clear vision: to shape spaces that not only serve but also elevate the experience of urban life. Set within Singapore's evolving skyline, several distinguished residential projects, including: Sky Habitat The Interlace Together, these developments showcase a shared vision of thoughtful design and enduring urban appeal. Surrounding One Pearl Bank is a collection of established residences and mixed-use developments, such as: Pearl Bank Apartments The Pearl @ Mount Faber Tanjong Pagar Plaza These nearby landmarks enrich the neighbourhood's distinctive character and reinforce its reputation as one of the city's most dynamic residential enclaves. One Pearl Bank is not merely an architectural landmark but a striking expression of modern urban sophistication. Combining design excellence with seamless connectivity and a visionary approach to city living, it stands proudly among Singapore's most sought-after residential addresses. Whether seen as a residence or a sound investment, it captures the perfect balance of ease, elegance, and modern sophistication, an address that embodies the very essence of city living. Explore current One Pearl Bank listings on PropertyGuru and uncover the opportunity to own a timeless icon within Singapore's skyline.
View project details


















