One Holland Village Residences
5 Holland Village Way
S$ 8,350,000
Negotiable4
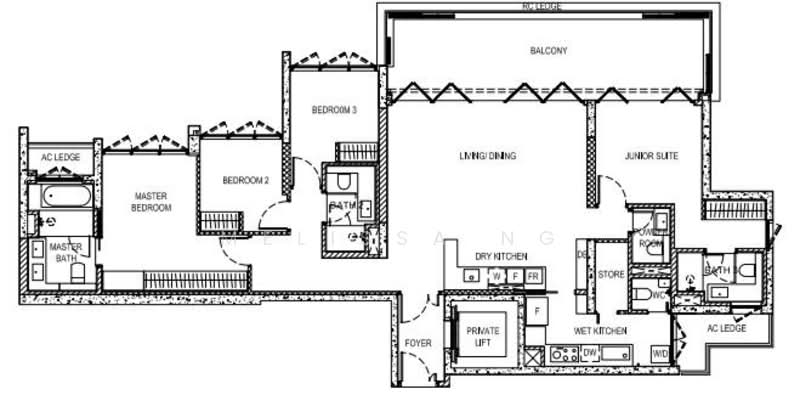
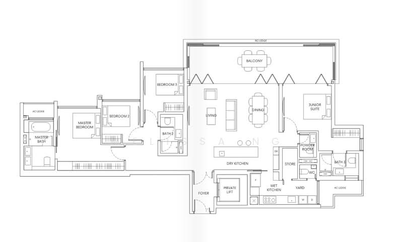
Beds
3
Baths
2,088
sqft
S$ 3,999
psf
570 m (7 mins) from CC21 Holland Village MRT
920 m (11 mins) from EW21/CC22 Buona Vista MRT
About this property
Luxury style living in the heart of District 10. A cut above the rest.
Perched at the very top tier of the development, the Quincy Private Residences at One Holland Village Residences represents the pinnacle of elevated luxury living in District 10.
Reserved for only a limited collection of expansive homes, the 4-bedroom residences offer rare, estate-style living in the sky.
Each home welcomes you via a private lift lobby, opening into a grand living and dining space framed by dramatic floor-to-ceiling windows. The elevated vantage point commands sweeping views across the Good Class Bungalow enclave and city skyline — a perspective few developments can rival.
This unit comes with access to Quincy House Serviced Residences' equipped gym, concierge service (for your parcels) and other facilities.
It offer both:
- Grand entertaining spaces
- A well-appointed kitchen fitted with premium appliances
- Luxurious bathrooms with elegant finishes
perfect for people who love hosting families and friends.
Enquire to find out more. Let this piece of luxury be a part of your assets today.
Amenities
Air conditioner
Balcony
Bed
City view
Common facilities
Barbeque pits
Lap pool
Multi-purpose hall
Tennis courts
Affordability
Tell us your monthly income and expenses to see if this home fits your budget.
One Holland Village Residences

One Holland Village Residences is a landmark mixed-use development located at 1 to 5 Holland Village Way (also known as 9A Holland Drive), Singapore 275752, within the prestigious District 10 (Tanglin/Holland/Bukit Timah). Completed in 2024 by a joint venture between Far East Organisation, Sekisui House, and Sino Group, the project represents one of the most transformative redevelopments in the Holland Village precinct. The 99-year leasehold comprises 296 units, housed within two residential towers rising approximately 28 and 34 storeys. One Holland Village Residences is a significant mixed-use development integrating numerous residential communities with the essential amenities for living. This unique location in Holland Village gives its residents the luxury of being in one of Singapore's most established neighbourhoods while maintaining high connectivity to the CBD, One North and Bukit Timah. Due to the buildings’ shape, units on higher floors enjoy unobstructed panoramic views over the surrounding landed estates. In addition, the area's conservation status enhances residential privacy, as future high-rise developments are restricted. Given the number of units, the scale allows many amenities to be located across numerous levels, creating a resort-like living experience. One Holland Village Residences is an appealing property for potential owner-occupiers and long-term investors, developed by 3 leading real estate development companies. Connectivity at One Holland Village Residences is a major plus factor. The development is directly linked to Holland Village MRT Station (CC21), giving residents rail access just 4 minutes from their front door. Rail access from One Holland Village Residences offers direct connections to Buona Vista, Paya Lebar, Marina Bay, and many other major interchange stations throughout the island. Drivers can reach the property easily via several major roadways: Holland Road, North Buona Vista Road, Lorong Liput and Lorong Mambong. Access to the Ayer Rajah Expressway (AYE) is quick and easy via these routes, which connect to major arterial roads throughout Singapore. Residential access to One North, Dempsey Hill, Orchard Road, and the City Centre will make commuting and daily travel easier. To better frame the residential component into the broader development, the following outlines how One Holland Village Residences is configured in terms of scale, unit mix, and vertical planning: One Holland Village Residences 99-year leasehold 2024 10 Mixed-use development with residential component Far East Organisation Residents at One Holland Village Residences are supported by a thoughtfully curated suite of lifestyle facilities designed to enhance everyday living, wellness, and community interaction: Clubhouse Function Room Indoor Gym Room Sky Terrence Garden Tennis Court at 34/F 50m Outdoor Swimming Pool Sundeck Grill Area Children Playground Spa Bath Pet Area, etc. The combination of these facilities allows the development to offer a holistic approach to modern urban living. One Holland Village Residences is located within an educational catchment, making it particularly appealing to families prioritising long-term schooling options: Henry Park Primary School Nanyang Primary School Anglo-Chinese School (Independent) Being close to several schools makes One Holland Village Residences a practical and attractive option for family living. Holland Village is renowned for its diverse cafés, from casual cafés to refined international dining. Notable nearby dining options include: Ginkyō by Kinki - Japanese Fusion @ One Holland Village TSUJIRI Premium Holland Village Frankie & Fern's La Nonna The concentration of dining options within walking distance ensures residents enjoy an active lifestyle without relying on personal travel. While Holland Village itself is lifestyle-focused, residents benefit from healthcare accessibility due to the project's central location and MRT connectivity: Oneness Medical (Holland Village) One Doctor's Family Clinic (HV) National University Hospital These nearby clinics and hospitals ensure residents have reliable access to care, supporting everyday health needs and long-term peace of mind. Daily necessities are well supported with multiple supermarkets and retail options located within and around Holland Village. Nearby options include: NTUC FairPrice Little Farms Market CS Fresh @ Holland Shopping Centre These provide residents with easy access to groceries, fresh produce, and household essentials within a short walk or drive. Total Residential Units: 296 units Residential Towers: 2 towers Approximate Heights: 28 and 34 storeys Sereen: One-Bedroom (484 sq ft) Sereen: Two-Bedroom (689 to 829 sq ft) Sereen: Three-Bedroom (1,098 sq ft) Quincy: Three-Bedroom (1,238 to 1,281 sq ft) Quincy: Three-Bedroom + Study (1,615 sq ft) Quincy: Four-Bedroom (2,088 sq ft) Quincy: Four-Bedroom + Study Duplex (3,358 sq ft) Quincy: Five-Bedroom Penthouse (3,455 sq ft) Leven: Two-Bedroom (807 to 947 sq ft) Leven: Two-Bedroom Duplex (1,087 sq ft) Facilities are distributed across multiple levels, including three sky facility decks that integrate lifestyle spaces within the vertical residential environment. The One Holland Village Residences have been created through a highly successful collaboration among three partners: Far East Organisation, Sekisui House, and Sino Group. The largest developer of private-sector real estate in Singapore, Far East Organisation, has extensive local knowledge, with over 700 properties and numerous awards worldwide. Sekiusi Houses' global expertise in Housing and the Sino Group's strong reputation in Asia Pacific Real Estate Investment come together to provide quality execution, design, and long-term value to the realised partnership of the three companies. Other notable residential developments by the developers include: The Scotts Tower Alana The Cairnhill These projects reflect a consistent focus on quality residential environments across different market segments. The surrounding Holland and Bukit Timah area features several established private developments, including: The Sierra Holland Residences Leedon Green These developments contribute to the area's strong residential character and long-term desirability. One Holland Village Residences offers a unique chance to purchase your own home in a fully integrated lifestyle. With direct MRT access, a comprehensive mix of residential and commercial components, extensive lifestyle facilities, and proximity to some of the best schools, this development offers a well-balanced urban living experience in one of Singapore's most famous neighbourhoods. This makes it an excellent choice for both homeowners and investors seeking long-term value in a prime location near the city. Explore the latest sales and rental listings at One Holland Village Residences to see available units and current market opportunities.
View project details
























