Forett at Bukit Timah
32B Toh Tuck Road
S$ 1,090,000
Negotiable2
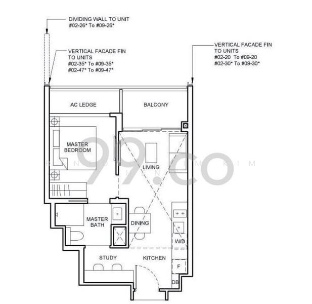
Beds
1
Bath
474
sqft
S$ 2,299.58
psf
910 m (11 mins) from DT5 Beauty World MRT
About this property
Forett At Bukit Timah
Newly TOP Project up for grab !
Walking distance to
Beauty World MRT
Beauty World Plaza
Bukit timah shopping centre
Bukit timah Plaza
Within 1 KM to
: Pei Hwa Presbyterian Pri School
: Bukit Timah Pri School
Attributes :
Full condo Facilities
Near hawkers, shops and amenities
Surrounded by NTUC, sheng shiong and cold storage .
Big, regular and functional layout .
One of the best facing unit -
Unblock
Windy
Bright
Quiet
Contact Benedict at 9***** !
Amenities
Air-conditioning
Balcony
Corner unit
Intercom
Common facilities
24 hours security
Cafes
Car park
Community garden
Affordability
Tell us your monthly income and expenses to see if this home fits your budget.
Forett at Bukit Timah

Forett at Bukit Timah is a distinguished freehold condominium located at Toh Tuck Road, Singapore 596110, in the highly desirable District 21. This condominium was completed in 2024 by Qingjian Perennial (Bukit Timah) Pte Ltd, a joint venture between Qingjian Realty (Changi) Investment Pte Ltd and Perennial Real Estate Holdings Limited, and comprises 633 residential units. The condominium offers a diverse selection of one - to five-bedroom units, including configurations from One-bedroom + study to Five-bedroom suite. The project is set across four blocks of nine storeys and nine blocks of five storeys, offering low-density living in a peaceful residential enclave. Residents benefit from a wide array of communal facilities, including swimming pools, a gym, and a clubhouse, which enhance the overall living experience. Forett at Bukit Timah is located in District 21, offering residents exceptional access to major expressways, including the Pan-Island Expressway (PIE), via Upper Bukit Timah. This enables smooth commutes to key destinations such as Orchard Road, the Jurong cluster, and the city centre. The project features modern amenities, including a pool, fitness centre, BBQ/Dining Pavilion, Karaoke Room, and Theatre, with state-of-the-art facilities that enhance quality of life. This condominium has outdoor amenities, surrounding nature conservation areas, and the development's park connectors. Such as Bukit Timah Nature Reserve and Bukit Batok Nature Park, offer residents a unique blend of convenience, luxury, and eco-friendly living. With its strategic location near both the Central Business Districts and lush greenery, Forett at Bukit Timah stands out as an unparalleled choice for residents. Forett at Bukit Timah is perfectly positioned for unmatched convenience, offering accessibility to both public transport and major roads. Residents enjoy quick access to Beauty World MRT station (DT5), which is within walking distance, making travel across Singapore easier. For those who drive, the development is seamlessly connected to the Pan-Island Expressway (PIE), ensuring smooth commutes to key destinations like Orchard and Jurong. The neighbourhood has lively surroundings and conveniently located attractions, such as the Bukit Timah Shopping Centre and Beauty World Centre, which are both less than a five -minute walk from here. These areas offer a wide mix of shops, restaurants, and entertainment, adding vibrancy and excitement to the development’s urban lifestyle. Forett at Bukit Timah occupies a prime site at Toh Tuck Road in District 21. The development, spread over a site area of approximately 360,130 sq ft, is architecturally distinguished and expected to rise to approximately nine storeys. Forett at Bukit Timah Condominium 21 633 residential units Forett at Bukit Timah is meticulously designed to offer a host of facilities that cater to various lifestyle needs, creating a holistic living environment. The development features: BBQ Fitness Corner Infinity Pool Karaoke Lounge Parking Playground Sky Terrace Tennis Court Water Feature Yoga Corner Clubhouse Gym Jet Pool Lap Pool Outdoor Dining Pavilion Pool Deck Steam Room Wading Pool Waterfall These amenities support relaxation, fitness, and socialising, creating a calm setting where modern living meets nature. Families residing in Forett at Bukit Timah benefit from proximity to several educational institutions, including: Saint Clare School for Special Education Keming Primary School Singapore University of Social Sciences (sUss) These institutions provide educational options from primary through tertiary levels, meeting the varied needs of families in the area. Forett at Bukit Timah is surrounded by a diverse range of culinary delights, including: Ajiya Okonomiyaki Restaurant Bukit Timah Wet Market & Food Centre (Interim) Living Wholesome Vegetarian (Thunder Tea Rice) These restaurants consist of fast, casual dining and mid-range restaurants. Residents have access to various medical facilities, such as: Healthway Medical (Bukit Timah) Physio And Sole Clinic (Bukit Timah) Bukit Timah Nam Seng Dental Surgery Pte Ltd These medical centres ensure that residents have access to essential healthcare services within a short distance from their homes. Convenience is further enhanced with supermarkets nearby, including: Beauty World Centre Giant Supermarket - Beauty World Centre Bukit Timah Shopping Centre These supermarkets give residents quick access to daily essentials, making everyday living more convenient. The wide unit mix supports a range of lifestyle needs, from singles and couples to larger families seeking space in a tranquil yet connected location. Offers a diverse range of unit types, including one - to five-bedroom units, catering to various residential preferences. One bedroom: 474 - 495 sqft Two bedroom: 570 - 764 sqft Three bedroom: 926 - 1,195 sqft Four bedroom: 1,281 - 1,582 sqft Five bedroom: 1,884 sqft Forett at Bukit Timah is developed by Qingjian Perennial (Bukit Timah) Pte Ltd, a collaboration that brings together the expertise of Qingjian Realty and Perennial Real Estate Holdings Limited. Qingjian Realty has received multiple awards for residential, industrial, and commercial developments; however, Perennial Real Estate Holdings Limited specialises in large-scale development, including healthcare projects. Together, they have created a development that combines quality living with modern conveniences. Forett at Bukit Timah is near several well-known developments, offering buyers more quality options in a mature and highly sought-after residential area. Jadescape The Arden The Visionaire These nearby projects strengthen the location’s appeal, giving homebuyers and investors diverse choices with strong lifestyle and long-term value potential. In Bukit Timah, Forett's location takes full advantage of its proximity to many other important residential projects, resulting in a lively, vibrant neighbourhood. Other nearby residential projects include: Dairy Farm Residences Midwood The Skywoods These neighbouring homes further highlight the strong residential appeal of the Bukit Timah area. Located in a prime area of Singapore, Forett at Bukit Timah is the perfect spot to find a place to call home while enjoying the perks of luxury living. This development has state-of-the-art amenities, a good transportation network, and plenty of room for future expansion. Therefore, it is an ideal choice for any person or family interested in living in the city. Explore the most recent sales and rental listings for Forett at Bukit Timah to check current availability and pricing.
View project details
















