Cube 8
376 Thomson Road
S$ 1,750,000
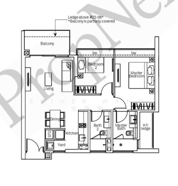
2
Beds
2
Baths
904
sqft
S$ 1,935.84
psf
890 m (11 mins) from TE10 Mount Pleasant MRT
1.1 km (13 mins) from NS20 Novena MRT
About this property
Renovated , Spacious
Renovated and spacious and well maintain
Pool view
Tenanted till nov 2026
Contact Esther 9867.5995 to book for viewing
Cube 8 is a freehold condominium development located at 376 Thomson Road, Singapore 298130, in District 11, minutes walk to Novena MRT Station. With an expected completion in 2014, it comprises of 177 units in a 36 storey tower. Cube 8 is close to MacRitchie Reservoir Park and Novena Square Shopping Mall.
Condo Facilities
Facilities at Cube 8 include function room, gymnasium, wellness studio, games arena, gourmet's domain, fitness area, party deck, outdoor dining deck, BBQ deck, garden deck, children's playground, family pool, infinity swimming pool, jet pool, sauna, sun deck, tennis court and 24-hour security.
Amenities
Several feeder bus services are available near Cube 8. It is also close to several international schools, such as SJI International School, Global Indian International School, the upcoming Curtin University and Queen Margaret University Asia Campus.
Cube 8 is also within walking distance to the stretch of eateries and restaurants located at Upper Thomson Road and Balestier Road. Residents can head down to the nearby shopping malls like Novena Square, Square 2 and United Square for amenities such as retail, supermarkets, restaurants, banks, and more. In addition, it is within reasonable driving distance to Newton Food Center and Thomson Plaza.
For vehicle owners, driving from Cube to Orchard Road and the CBD takes 5 - 10 minutes, via the Central Expressway.
Amenities
Air conditioner
Balcony
Covered car parking
Security guard
Common facilities
24 hours security
Barbeque pits
Fitness corner
Function room
Affordability
Tell us your monthly income and expenses to see if this home fits your budget.
Cube 8

Cube 8 is a freehold condominium located along 376 Thomson Road, 298130 in District 11. The residence consists of a single 35-storey condominium, hosting 177 residential units. Cube 8 was developed by City Developments Limited (CDL) in 2014. Located within a popular, vibrant neighbourhood, Cube 8 offers units in a variety of layouts, ranging between 1 to 4-bedroom designs and built-up areas starting from 560 up to 1,905 sqft. Founded in Singapore in 1963, City Developments Limited (CDL) is a large-scale real estate developer with projects spanning 29 countries and cities worldwide. Their diverse portfolio includes a long list of award-winning residential, commercial and hospitality projects ranging from luxury executive condominiums to The Millenium & Copthorne hotels found in key cities worldwide. Cube 8 specifically has been recognized with several awards, including the BCA Construction Excellence Award in 2015. Cube 8 is situated within northern Novena, a bustling neighbourhood located within the central region of Singapore and popular with residents of all lifestyles. The area is known for hosting several well-established medical and research institutions, including Tan Tock Seng Hospital and the National Neuroscience Institute. A wide array of hawker centres and restaurants can all be found in the vicinity. Various shopping centres and other attractions are easily located throughout the neighbourhood, many within walking distance of the apartment. Examples include Balestier Plaza and Velocity Mall. This, in addition to the abundance of nearby schools, serve to make this location a popular choice for families. Nearby neighbourhood parks such as Novena Rise Park and other facilities located in the area such as gyms, community centres, and other recreational facilities, create a sustainable and balanced environment containing a mixture of both residential suburbs and commercial centres. Additionally, Cube 8 comes equipped with a meticulously designed set of world-class facilities, separated by individual themed floors, such as a wellness studio, games arena, idea lab, gourmet’s domain, and state of serenity. These floors host facilities such as games rooms, tennis courts, gymnasium swimming pool, function rooms, and more. The compound is gated and monitored by 24-hour security. Cube 8 is located around a 15 minute walk from both Toa Payoh MRT and Novena MRT Station, along the North South Line. A line of bus stops can be found much closer by along Thomson Road, less than a 5-minute walk away. Located just off the Pan Island Expressway (PIE), Cube 8 is equally accessible via private transport. Residents heading to the business district can expect to arrive within 20 minutes via the PIE. Alternatively, those driving to the Orchard Road shopping district can take the Central Expressway (CTE) and expect to arrive within 10 - 15 minutes. Whampoa KengThai ExpressOopen Pasta & Grill Balestier Hill Primary SchoolCHIJ Primary (Toa Payoh)Balestier Hill Secondary School Thomson Medical CentreThomson 24-Hour Family ClinicTan Tock Seng Hospital Balestier Hill Shopping CentreRoyal SquareGoldhill Plaza Mall Cube 8 is a freehold condominium consisting of 177 residential units spread across 35 stories. Completed in 2014, units currently have an estimated sales value of around S$ 920,000 up to S$ 3,300,000, depending on unit size and layout. Rental prices range between S$ 1,300 up to S$ 5,000 per month. Project Name: Cube 8Type: Freehold CondominiumDistrict: 11 Unit Types:1-bedroom (560 - 560 sqft)2-bedroom (893 - 926 sqft)3-bedroom (1,335 - 1,475 sqft)4-bedroom (1,905 sqft) The following projects are by the same developer as Cube 8:Piermont GrandHaus on HandyAmber ParkSouth Beach ResidencesOne Shenton The following developments are in the same neighbourhood as Cube 8: Fyve DerbyshirePullman ResidencesNeu at Novena35 GilsteadThe Whitley Residences26 Newton
View project details















