Townerville
116 Towner Road
S$ 6,500 /mo
2
Beds
2
Baths
2,162
sqft (floor)
620 m (7 mins) from NE9 Boon Keng MRT
Available from 24 Feb 2026
About this property
Built in 1920s! Colonial conservation house, minutes to MRT
* Short walk to supermarket, wet market, Bendemeer Food Centre, Whampoa Food Centre, wide choices of restaurants and cafes at Boon Keng MRT
* Short drive to shopping malls; Balestier Point , Balestier, Plaza, The Poiz Centre, City Square Mall, Mustafa Centre, etc
* Near to international schools; Stamford American School, etc
* No designated parking lots, residents have to purchase season parking at Multi Storey Carpark
* Earliest commencement : 21 Jun
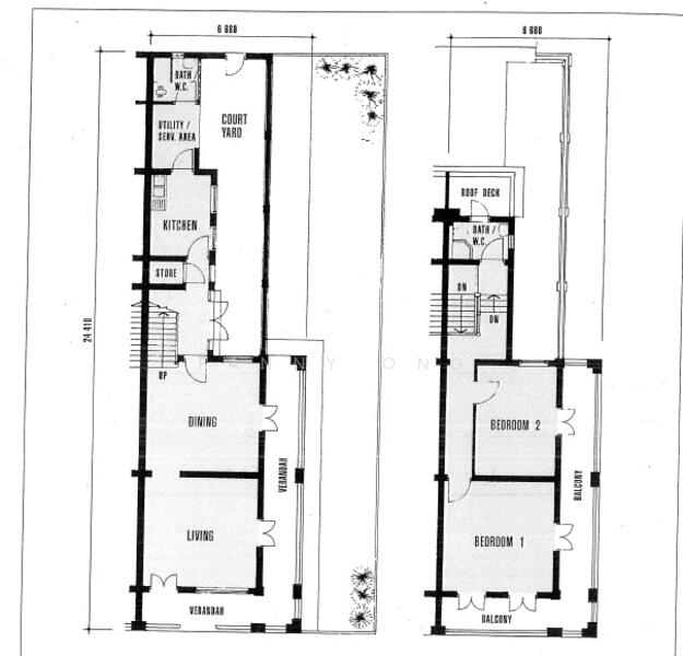
Layout Plan :
Level 1
Living Area
Dining Area
Front Patio
Kitchen
Utility area
Outdoor area
Common bathroom
Level 2
Common bedroom x 2
Master bedroom with balcony, no ensuite bathroom
Common bathroom
For more details, photos, floorplan or video, please feel free to contact me at 9*****
**Photos are for illustration only, and may not represent the actual unit
Amenities
Balcony
Colonial building
Cooker hob/hood
Ground floor
Common facilities
Car park
Townerville
Townerville is a conservation house. It is exquisitely conserved since 1920. Originally, it is developed by the Far East Organization. It is a 99-year leasehold development. It is located on 27 McNair Road Balestier / Toa Payoh, District 12. The house is currently available and ready to move in for S$5,300 a month. The unit area is 1552 sqft, making S$3.41 rent for each square foot. On foot, the nearest MRT Station is only 6 minutes away, making transportation inside the country very easy and safe. Also, there are many prestigious, established and elite schools around the corner. As the unit is elegantly conserved since 1920, the house itself gives off rustic yet modern vibes as the house is well renovated, well-furnished and is stuffed with all of the modern appliances needed. The area around is quite peaceful and serene, making it bearable for the residents to live in a busy city like Singapore. The unit itself is quite spacious and demands low maintenance. The unit also has a terrace and space for car parking. There are many popular food centers and a full range of amenities available in the vicinity of the area. The housing unit is near to 3 main MRT Stations; Boon Keng MRT Station which is 0.48 km away, Farrer Park MRT Station which is 0.88 km away and Bendemeer MRT Station which is also 0.88 km away. There are more than 16 bus stops near the conservation house. Huge malls like City Square Mall are not far away than 1 km! Apart from that, there are sports complexes and swimming centers nearby. Also, there are more than 4 post boxes in the neighborhood. To get to the business hub or the shopping district, vehicle owners may use Central Expressway, Pan Island Expressway or the Serangoon Road to reach their destination in less than 15 minutes! Success Education PlaceNorthlight SchoolLearning Tree Tuition CentreZhengfei Cultural Education Centre - Boon Keng RoadMY World @ Boon KengZigZag Learningsunflower schoolStar Learners @ Boon KengBestcare Montessori Kallang CCKhalsa KindergartenBendemeer Secondary SchoolTamaris Hairdressing & Beauty School(1987)LEAP SchoolHouseHeguruFuture Genius Learning Planet George ParkMy Centre @ MoulmeinSomme Road PlaygroundCity Green Khalsa Restaurant Pte LtdMAKAN HOUSE BY OLLELLABoon Tong KeeFo You YuanO.T - The Consignment BistroThe Yang's Hainanese Chicken RiceRobert Mee SiamCOLLIN'S GRILLE BENTO - 3 ST GEORGELotus Vegetarian RestaurantNG AH SIO Bak Kut TehShang De VegetarianChung Ping Chicken RiceLegendary Bak Kut TehCanadian 2 For 1 Pizza Pte. Ltd.McDonald’s Sheng Siong SupermarketBuzz Boon Keng MRTKumaran Stores Pte LtdYeo See Hui Medical CoKwong Chai Medical HallChop SingliFairPrice Lorong LimauHao MartBan Hin HoeU Stars Supermarket @ 211Kwong Choon Medical HallTime zoneSai Chitra’s Flower & Hindu prayersBendemeer MallBalestier PointARC 380GreasingThe Green PartyiStudioShaw PlazaCity SquareCity Square Mall This unit in Townerville is conserved for nearly a century! The land area is 1552 sqft whereas the floor area is 2424 sqft. The house is only available for rent. It's per square foot rent cost is S$3.41. The house is partially furnished with modern appliances and a little furniture. Project name: TownervilleType: Conservation HouseTenure: 99-years LeaseholdSite Area: 1552 sqftDistrict: District 12 Unit Type:3 Bedrooms and 2 Bathrooms (1552 sqft) The ArteThe Marque at IrrawandyTrevistaDomusVista Residences
View project details





















